立即预约
免费定制整装家居
一站置家 全程无忧 一省到底
近期正值新房的下房高峰期,很多新下房业主都想趁着装修公司年终收官的优惠,尽快定下装修来避免来年涨价。但是很多业主都是第一次装修,所以很多问题一时间无法做出决定,所以为了帮各位新房装修业主解决难题,今天小编分享的是沈北新区富力星月湾128㎡四室两厅装修分析。
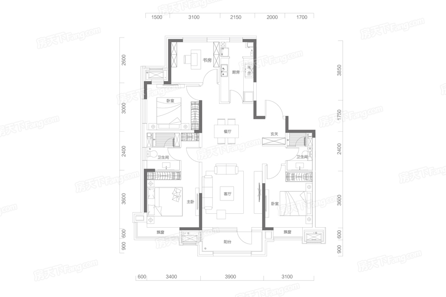
首先我们先分析一下这个户型:
本套户型的整体空间方正,规整程度一般,虽然整套户型采用全明的格局,对于整体的通风和采光都有良好的保证,但是很多部分的空间都有一些缺陷,在装修时需要格外设计和改造的空间较多,居住体验一般。
(户型图源自房天下)
接下来我们一起分析一下富力星月湾128㎡四室两厅各个空间如何装修:
本套户型的玄关区域空间一般,在开门的对侧有隔墙,可以选择整体收纳柜设计。
(图为富力星月湾128㎡玄关装修效果图)
本套户型的餐厅空间宽敞且邻近客厅厨房,由于厨房空间一般,所以餐厅只能单独设计。另外还要注意餐厅客厅的空间分隔尽量不要做硬隔断,吊顶或者波导线隔断效果会更好。
(图为富力星月湾128㎡美式风格餐厅装修效果图)
本套户型的厨房空间宽敞但是过于细长,另外在厨房的旁边还有阳台,所以在装修时只能选择二字型厨房设计,对于旁边的阳台建议作为洗衣空间使用,需要注意的是晾晒衣物需要防止油烟;再有就是厨房建议选择推拉门设计减少对厨房空间的侵占。
(图为富力星月湾128㎡二字型厨房装修效果图)
本套户型的客厅整体空间一般,不过有阳台相邻,在装修时如果觉得空间不足可以选择合并扩展空间。
(图为富力星月湾128㎡轻奢风格客厅装修效果图)
本套户型的卫生空间宽敞而且还有独立的洗衣空间,所以在装修时有很充分的设计空间可以利用。
(图为富力星月湾128㎡卫生间装修效果图)
本套户型中有四个居室空间,位于整个户型西南侧的主卧空间开门正对着厕所门比较尴尬,在设计时需要着重注意。另外对于东南角和北侧的居室需要注意相邻空间防水以免影响使用。
(图为富力星月湾128㎡主卧装修效果图)
以上就是关于沈北新区富力星月湾128㎡四室两厅装修分析,从整体来看本套户型有很多空间存在,需要适当调整,所以在装装修时要格外注意。由于每个人的喜好不同,所以具体的装修改造情况还要以各个业主的自身习惯为准,对于已经收房的业主想要尽快装修的的话,建议趁着各大装修公司的年终收官尽快选择。另外林凤装饰近期还有更大力的的压轴收官活动优惠多多,预约咨询热线:400-656-9909
2026-03-07 14:39:29 | 浏览次数:417
2026-02-28 17:10:52 | 浏览次数:443
2026-02-27 16:02:41 | 浏览次数:569
2026-02-26 17:06:34 | 浏览次数:500
2026-02-25 16:35:18 | 浏览次数:533
2026-02-24 17:28:55 | 浏览次数:511
2026-02-08 09:25:29 | 浏览次数:663
2026-02-05 16:57:20 | 浏览次数:695
2026-02-02 16:33:59 | 浏览次数:737
2026-02-01 10:26:50 | 浏览次数:747
2026-01-31 17:18:50 | 浏览次数:787
2026-01-29 16:47:07 | 浏览次数:786
2026-01-28 10:30:32 | 浏览次数:775
2026-01-27 16:06:55 | 浏览次数:783
2026-01-25 14:52:18 | 浏览次数:911
2026-01-24 15:28:45 | 浏览次数:836
2026-01-23 09:57:17 | 浏览次数:706
2026-01-22 09:45:51 | 浏览次数:784
2026-01-21 16:31:49 | 浏览次数:788
2026-01-20 16:48:01 | 浏览次数:735
2026-01-18 15:07:26 | 浏览次数:788
2026-01-17 16:49:29 | 浏览次数:758
2026-01-16 16:56:27 | 浏览次数:750
2026-01-14 15:32:43 | 浏览次数:723
2026-01-13 14:20:41 | 浏览次数:982
2026-01-11 13:59:36 | 浏览次数:920
2026-01-10 09:30:19 | 浏览次数:894
2026-01-09 10:21:59 | 浏览次数:1108
2026-01-08 16:20:41 | 浏览次数:862
2026-01-07 09:31:25 | 浏览次数:944
2026-01-06 16:34:08 | 浏览次数:936
2026-01-04 10:40:41 | 浏览次数:974
2026-01-03 15:03:20 | 浏览次数:1082
2026-01-02 16:58:37 | 浏览次数:988
2025-12-31 11:03:08 | 浏览次数:1189
2025-12-30 13:35:19 | 浏览次数:1038
2025-12-29 10:38:58 | 浏览次数:1070
2025-12-28 16:28:29 | 浏览次数:1130
2025-12-27 15:31:11 | 浏览次数:1085
2025-12-26 16:06:04 | 浏览次数:1163
2025-12-25 11:37:22 | 浏览次数:1289
2025-12-24 10:33:54 | 浏览次数:1190
2025-12-23 16:52:26 | 浏览次数:1147
2025-12-21 09:51:53 | 浏览次数:1151
2025-12-20 15:17:47 | 浏览次数:1116
2025-12-19 16:28:25 | 浏览次数:1224
2025-12-18 16:46:55 | 浏览次数:1160
2025-12-17 10:08:28 | 浏览次数:1474
2025-12-16 15:19:16 | 浏览次数:1248
2025-12-14 11:34:12 | 浏览次数:1190
2025-12-13 16:10:23 | 浏览次数:1248
2025-12-11 14:15:40 | 浏览次数:1193
2025-12-10 16:30:57 | 浏览次数:1280
2025-12-09 15:48:50 | 浏览次数:1339
2025-12-07 15:06:17 | 浏览次数:1235
2025-12-06 10:19:53 | 浏览次数:1115
2025-12-05 11:09:51 | 浏览次数:1101
2025-12-04 16:24:49 | 浏览次数:1248
2025-12-03 16:29:06 | 浏览次数:1039
2025-12-02 11:32:59 | 浏览次数:1163
2025-11-30 11:14:22 | 浏览次数:1100
2025-11-29 16:10:33 | 浏览次数:1084
2025-11-28 16:27:35 | 浏览次数:1403
2025-11-27 16:59:59 | 浏览次数:1136
2025-11-26 16:03:41 | 浏览次数:1081
2025-11-25 16:25:40 | 浏览次数:1160
2025-11-23 11:08:56 | 浏览次数:1253
2025-11-22 16:50:53 | 浏览次数:1265
2025-11-21 13:40:40 | 浏览次数:1241
2025-11-20 10:13:24 | 浏览次数:1378
2025-11-19 15:03:18 | 浏览次数:1264
2025-11-18 15:29:16 | 浏览次数:1276
2025-11-16 10:45:00 | 浏览次数:1318
2025-11-15 16:29:08 | 浏览次数:1469
2025-11-14 16:31:13 | 浏览次数:1306
2025-11-13 16:59:57 | 浏览次数:1341
2025-11-12 16:36:18 | 浏览次数:1398
2025-11-09 10:20:31 | 浏览次数:1486
2025-11-08 10:44:56 | 浏览次数:1304
2025-11-07 15:23:52 | 浏览次数:1361
2025-11-06 16:10:25 | 浏览次数:1360
2025-11-05 10:30:03 | 浏览次数:1396
2025-11-04 11:23:07 | 浏览次数:1456
2025-11-02 16:11:15 | 浏览次数:1366
2025-11-01 16:19:20 | 浏览次数:1386
2025-10-31 09:16:58 | 浏览次数:1403
2025-10-30 10:32:28 | 浏览次数:1369
2025-10-29 16:09:09 | 浏览次数:1318
2025-10-28 16:22:48 | 浏览次数:1333
2025-10-26 10:19:39 | 浏览次数:1415
2025-10-25 16:11:14 | 浏览次数:1471
2025-10-24 15:28:42 | 浏览次数:1464
2025-10-23 10:40:33 | 浏览次数:1439
2025-10-22 14:52:12 | 浏览次数:1269
2025-10-21 16:43:25 | 浏览次数:1353
2025-10-19 12:34:45 | 浏览次数:1319
2025-10-17 14:35:23 | 浏览次数:1408
2025-10-16 10:57:27 | 浏览次数:1374
2025-10-15 12:25:26 | 浏览次数:1334
2025-10-12 14:06:26 | 浏览次数:1508
2025-10-11 09:51:02 | 浏览次数:1574
2025-10-10 15:15:08 | 浏览次数:1609
2025-10-09 16:32:40 | 浏览次数:1735
2025-10-08 14:45:02 | 浏览次数:1591
2025-10-07 17:07:28 | 浏览次数:1604
2025-10-06 13:19:04 | 浏览次数:1568
2025-10-05 13:47:19 | 浏览次数:1617
2025-10-02 15:01:32 | 浏览次数:1618
2025-10-01 15:51:24 | 浏览次数:1675
2025-09-30 09:37:29 | 浏览次数:1715
2025-09-29 16:34:57 | 浏览次数:1749
2025-09-27 16:43:36 | 浏览次数:1774
2025-09-26 11:03:39 | 浏览次数:1885
2025-09-25 10:26:55 | 浏览次数:1698
2025-09-24 15:17:39 | 浏览次数:1844
2025-09-23 10:00:33 | 浏览次数:2017
2025-09-21 14:19:19 | 浏览次数:1985
2025-09-20 15:09:15 | 浏览次数:1912
2025-09-19 15:51:53 | 浏览次数:2019
2025-09-18 14:49:34 | 浏览次数:1808
2025-09-17 16:47:52 | 浏览次数:1807
2025-09-16 16:35:07 | 浏览次数:2205
2025-09-14 14:59:51 | 浏览次数:1997
2025-09-13 17:04:32 | 浏览次数:1920
2025-09-12 09:35:24 | 浏览次数:2092
2025-09-11 15:46:23 | 浏览次数:2048
2025-09-10 13:58:02 | 浏览次数:2131
2025-09-09 16:48:23 | 浏览次数:2144
2025-09-07 11:44:11 | 浏览次数:2184
2025-09-06 09:43:11 | 浏览次数:2137
2025-09-05 09:51:41 | 浏览次数:2065
2025-09-04 17:08:16 | 浏览次数:2350
2025-09-03 16:42:34 | 浏览次数:2253
2025-09-02 14:35:40 | 浏览次数:2145
2025-08-31 09:42:38 | 浏览次数:2169
2025-08-30 17:10:52 | 浏览次数:2146
2025-08-29 16:56:07 | 浏览次数:2392
2025-08-28 16:10:50 | 浏览次数:2092
2025-08-27 15:11:21 | 浏览次数:2183
2025-08-26 16:13:37 | 浏览次数:2144
2025-08-24 10:34:05 | 浏览次数:2250
2025-08-23 16:22:41 | 浏览次数:2132
2025-08-22 09:54:07 | 浏览次数:2042
2025-08-21 15:44:53 | 浏览次数:1879
2025-08-20 10:30:48 | 浏览次数:2002
2025-08-19 15:26:24 | 浏览次数:2001
2025-08-17 09:38:31 | 浏览次数:2087
2025-08-16 09:17:41 | 浏览次数:2093
2025-08-15 16:16:38 | 浏览次数:2027
2025-08-14 15:11:15 | 浏览次数:2106
2025-08-13 11:16:39 | 浏览次数:2043
2025-08-12 16:40:13 | 浏览次数:2015
2025-08-10 11:51:34 | 浏览次数:2383
2025-08-09 15:23:47 | 浏览次数:2509
2025-08-08 17:05:56 | 浏览次数:2397
2025-08-07 14:22:25 | 浏览次数:2352
2025-08-06 16:11:50 | 浏览次数:2346
2025-08-05 16:24:45 | 浏览次数:2303
2025-08-03 16:42:11 | 浏览次数:2269
2025-08-02 16:52:53 | 浏览次数:2299
2025-08-01 12:33:16 | 浏览次数:2257
2025-07-31 13:52:41 | 浏览次数:2313
2025-07-30 14:25:27 | 浏览次数:2443
2025-07-29 14:53:02 | 浏览次数:2355
2025-07-27 10:22:56 | 浏览次数:2150
2025-07-26 10:32:01 | 浏览次数:2230
2025-07-25 11:25:50 | 浏览次数:2474
2025-07-24 14:06:45 | 浏览次数:2318
2025-07-23 10:12:49 | 浏览次数:2165
2025-07-22 15:40:09 | 浏览次数:2106
2025-07-20 10:09:20 | 浏览次数:2117
2025-07-19 12:38:59 | 浏览次数:2084
2025-07-18 16:29:46 | 浏览次数:2070
2025-07-17 10:16:42 | 浏览次数:2265
2025-07-16 10:45:54 | 浏览次数:2500
2025-07-15 15:35:01 | 浏览次数:2228
2025-07-13 10:07:41 | 浏览次数:2018
2025-07-12 16:51:37 | 浏览次数:2304
2025-07-11 16:37:32 | 浏览次数:2276
2025-07-10 16:47:48 | 浏览次数:2312
2025-07-09 15:34:09 | 浏览次数:2238
2025-07-08 15:52:37 | 浏览次数:2337
2025-07-06 10:40:32 | 浏览次数:2541
2025-07-05 17:15:15 | 浏览次数:2339
2025-07-04 09:49:17 | 浏览次数:2245
2025-07-03 16:41:12 | 浏览次数:2420
2025-07-02 15:50:42 | 浏览次数:2291
2025-07-01 12:31:53 | 浏览次数:2125
2025-06-30 16:27:08 | 浏览次数:2166
2025-06-29 09:55:37 | 浏览次数:2339
2025-06-28 16:36:33 | 浏览次数:2374
2025-06-27 14:03:37 | 浏览次数:2480
2025-06-26 16:06:22 | 浏览次数:2241
2025-06-24 15:26:00 | 浏览次数:2477
2025-06-22 10:00:14 | 浏览次数:3100
2025-06-21 10:08:40 | 浏览次数:2655
2025-06-20 14:52:47 | 浏览次数:2523
2025-06-19 16:36:24 | 浏览次数:2713
2025-06-18 15:44:05 | 浏览次数:2517
2025-06-13 11:33:04 | 浏览次数:2453
2025-06-12 16:01:19 | 浏览次数:2616
2025-06-11 15:19:21 | 浏览次数:2514
2025-06-10 16:40:08 | 浏览次数:2619
2025-06-08 14:39:12 | 浏览次数:2484
2025-06-07 15:14:59 | 浏览次数:2664
2025-06-06 16:03:43 | 浏览次数:2394
2025-06-05 16:03:53 | 浏览次数:2440
2025-06-04 16:33:15 | 浏览次数:2644
2025-06-02 14:16:04 | 浏览次数:2411
2025-06-01 09:05:36 | 浏览次数:2636
2025-05-31 14:26:35 | 浏览次数:2641
2025-05-30 16:37:51 | 浏览次数:2258
2025-05-29 16:24:51 | 浏览次数:2490
2025-05-28 14:38:54 | 浏览次数:2348
2025-05-27 16:09:59 | 浏览次数:2444
2025-05-25 11:41:11 | 浏览次数:2549
2025-05-24 15:50:28 | 浏览次数:2386
2025-05-23 16:50:58 | 浏览次数:2366
2025-05-22 11:28:42 | 浏览次数:2517
2025-05-21 16:25:34 | 浏览次数:2353
2025-05-20 16:07:22 | 浏览次数:2352
2025-05-18 11:08:06 | 浏览次数:2438
2025-05-17 16:44:37 | 浏览次数:2521
2025-05-16 16:18:03 | 浏览次数:2584
2025-05-15 15:18:00 | 浏览次数:3129
2025-05-14 15:38:10 | 浏览次数:2458
2025-05-13 14:27:50 | 浏览次数:2264
2025-05-11 10:14:30 | 浏览次数:2565
2025-05-10 16:59:04 | 浏览次数:2520
2025-05-09 15:20:33 | 浏览次数:2500
2025-05-08 15:18:03 | 浏览次数:2920
2025-05-05 15:44:43 | 浏览次数:2717
2025-05-04 15:22:31 | 浏览次数:2962
2025-05-03 16:12:37 | 浏览次数:2530
2025-05-02 15:32:47 | 浏览次数:2805
2025-05-01 16:09:56 | 浏览次数:2691
2025-04-30 13:29:34 | 浏览次数:2647
2025-04-25 11:56:45 | 浏览次数:2721
2025-04-24 15:18:22 | 浏览次数:2668
2025-04-23 15:24:21 | 浏览次数:2681
2025-04-22 16:36:31 | 浏览次数:2530
2025-04-20 10:16:19 | 浏览次数:2895
2025-04-19 14:10:59 | 浏览次数:2555
2025-04-18 15:37:43 | 浏览次数:2932
2025-04-17 14:54:29 | 浏览次数:2604
2025-04-16 15:36:16 | 浏览次数:2641
2025-04-15 11:33:47 | 浏览次数:2566
2025-04-13 10:17:57 | 浏览次数:2626
2025-04-12 09:46:39 | 浏览次数:3114
2025-04-11 15:15:06 | 浏览次数:2666
2025-04-10 15:23:21 | 浏览次数:2839
2025-04-09 15:36:16 | 浏览次数:2594
2025-04-08 14:07:17 | 浏览次数:2596
2025-04-06 10:00:17 | 浏览次数:3053
2025-04-05 16:11:40 | 浏览次数:2858
2025-04-04 16:27:40 | 浏览次数:2875
2025-04-03 15:32:16 | 浏览次数:2634
2025-04-02 14:47:40 | 浏览次数:3378
2025-04-01 11:02:10 | 浏览次数:2873
2025-03-31 14:45:43 | 浏览次数:3032
2025-03-30 11:40:27 | 浏览次数:3051
2025-03-29 16:01:08 | 浏览次数:3122
2025-03-28 16:46:53 | 浏览次数:2967
2025-03-27 16:24:49 | 浏览次数:2915
2025-03-26 15:11:15 | 浏览次数:3027
2025-03-25 14:20:18 | 浏览次数:2890
2025-03-23 10:27:52 | 浏览次数:3279
2025-03-22 14:30:31 | 浏览次数:2982
2025-03-21 15:03:22 | 浏览次数:2775
2025-03-20 10:31:21 | 浏览次数:2989
2025-03-19 16:20:32 | 浏览次数:3107
2025-03-18 15:31:40 | 浏览次数:3100
2025-03-16 09:38:53 | 浏览次数:3038
2025-03-15 10:47:41 | 浏览次数:2964
2025-03-14 16:17:20 | 浏览次数:3057
2025-03-13 14:54:41 | 浏览次数:3054
2025-03-12 15:55:07 | 浏览次数:2833
2025-03-11 16:33:55 | 浏览次数:3074
2025-03-09 10:40:41 | 浏览次数:2987
2025-03-08 16:30:36 | 浏览次数:3131
2025-03-07 16:18:36 | 浏览次数:2977
2025-03-06 16:13:33 | 浏览次数:2950
2025-03-05 15:40:13 | 浏览次数:3245
2025-03-03 15:08:44 | 浏览次数:3066
2025-03-02 10:13:25 | 浏览次数:3293
2025-03-01 09:59:10 | 浏览次数:3154
2025-02-28 10:23:39 | 浏览次数:3187
2025-02-27 16:01:34 | 浏览次数:2978
2025-02-26 14:18:40 | 浏览次数:3212
2025-02-25 15:25:22 | 浏览次数:3162
2025-02-23 10:08:49 | 浏览次数:3082
2025-02-22 15:47:47 | 浏览次数:2998
2025-02-21 15:32:49 | 浏览次数:2953
2025-02-20 14:55:50 | 浏览次数:2976
2025-02-19 14:13:22 | 浏览次数:3064
2025-02-18 11:25:27 | 浏览次数:3184
2025-02-16 09:30:24 | 浏览次数:3050
2025-02-15 16:06:27 | 浏览次数:3089
2025-02-14 15:02:39 | 浏览次数:3220
2025-02-12 14:01:16 | 浏览次数:3220
2025-02-11 10:34:08 | 浏览次数:3468
2025-02-09 10:15:04 | 浏览次数:3106
2025-02-08 09:55:57 | 浏览次数:3326
2025-02-07 14:29:39 | 浏览次数:3258
2025-01-21 11:47:41 | 浏览次数:3426
2025-01-19 15:29:54 | 浏览次数:3276
2025-01-18 17:01:49 | 浏览次数:3478
2025-01-17 14:07:21 | 浏览次数:3412
2025-01-16 09:22:42 | 浏览次数:3199
2025-01-15 16:45:18 | 浏览次数:3334
2025-01-14 10:18:46 | 浏览次数:3322
2025-01-12 16:35:25 | 浏览次数:3501
2025-01-11 09:56:40 | 浏览次数:3205
2025-01-10 15:42:17 | 浏览次数:3655
2025-01-09 16:20:28 | 浏览次数:3085
2025-01-08 15:25:38 | 浏览次数:3012
2025-01-07 10:51:29 | 浏览次数:3059
2025-01-05 11:24:58 | 浏览次数:2957
2025-01-04 09:04:40 | 浏览次数:3100
2025-01-03 09:32:19 | 浏览次数:3332
2025-01-02 11:12:47 | 浏览次数:3093
2024-12-31 10:28:01 | 浏览次数:3068
2024-12-30 16:25:14 | 浏览次数:3871
2024-12-29 10:02:50 | 浏览次数:3266
2024-12-28 16:20:53 | 浏览次数:3156
2024-12-27 16:04:59 | 浏览次数:3104
2024-12-26 16:46:17 | 浏览次数:3570
2024-12-25 16:07:44 | 浏览次数:3167
2024-12-24 15:00:08 | 浏览次数:3233
2024-12-22 11:01:23 | 浏览次数:3305
2024-12-21 16:54:54 | 浏览次数:3124
2024-12-20 16:53:46 | 浏览次数:3464
2024-12-19 16:54:27 | 浏览次数:3338
2024-12-18 16:48:02 | 浏览次数:3559
2024-12-17 16:27:57 | 浏览次数:3530
2024-12-15 11:08:44 | 浏览次数:3521
2024-12-14 15:58:28 | 浏览次数:3160
2024-12-13 16:45:50 | 浏览次数:3270
2024-12-12 16:44:03 | 浏览次数:3301
2024-12-11 16:29:10 | 浏览次数:3405
2024-12-10 16:05:56 | 浏览次数:3587
2024-12-08 11:41:01 | 浏览次数:3459
2024-12-07 16:32:22 | 浏览次数:3576
2024-12-06 16:39:11 | 浏览次数:3374
2024-12-05 16:40:23 | 浏览次数:3361
2024-12-04 16:17:22 | 浏览次数:3288
2024-12-03 15:59:15 | 浏览次数:3300
2024-12-01 10:34:03 | 浏览次数:3555
2024-11-30 16:39:14 | 浏览次数:3481
2024-11-29 16:20:50 | 浏览次数:3481
2024-11-28 15:47:34 | 浏览次数:3262
2024-11-27 16:13:42 | 浏览次数:3288
2024-11-26 11:08:10 | 浏览次数:3392
2024-11-24 10:46:13 | 浏览次数:3243
2024-11-23 16:29:10 | 浏览次数:3225
2024-11-22 14:50:50 | 浏览次数:3347
2024-11-21 16:31:39 | 浏览次数:3351
2024-11-20 16:25:10 | 浏览次数:3083
2024-11-19 16:17:53 | 浏览次数:3194
2024-11-17 09:46:50 | 浏览次数:3181
2024-11-16 15:54:53 | 浏览次数:3199
2024-11-14 15:26:32 | 浏览次数:3055
2024-11-13 15:59:01 | 浏览次数:3093
2024-11-12 16:16:04 | 浏览次数:3325
2024-11-10 13:45:46 | 浏览次数:3168
2024-11-09 16:09:59 | 浏览次数:3010
2024-11-08 16:03:19 | 浏览次数:3046
2024-11-07 15:58:33 | 浏览次数:3050
2024-11-06 15:55:55 | 浏览次数:3132
2024-11-05 15:45:01 | 浏览次数:3009
2024-11-03 10:35:04 | 浏览次数:3238
2024-11-02 16:21:08 | 浏览次数:3059
2024-11-01 16:03:25 | 浏览次数:3645
2024-10-31 16:00:32 | 浏览次数:3390
2024-10-30 16:06:32 | 浏览次数:3469
2024-10-29 16:20:52 | 浏览次数:3583
2024-10-27 10:19:02 | 浏览次数:3727
2024-10-26 16:28:37 | 浏览次数:3426
2024-10-25 15:56:29 | 浏览次数:3578
2024-10-24 15:27:07 | 浏览次数:3485
2024-10-23 15:38:36 | 浏览次数:3423
2024-10-22 15:41:18 | 浏览次数:3413
2024-10-20 11:36:53 | 浏览次数:3450
2024-10-19 14:11:53 | 浏览次数:3428
2024-10-18 15:58:42 | 浏览次数:3502
2024-10-17 14:03:26 | 浏览次数:3461
2024-10-16 14:19:47 | 浏览次数:3215
2024-10-15 11:32:12 | 浏览次数:3191
2024-10-14 13:45:51 | 浏览次数:3306
2024-10-13 10:24:16 | 浏览次数:3327
2024-10-12 11:21:59 | 浏览次数:3303
2024-10-11 11:42:27 | 浏览次数:3428
2024-10-07 10:57:09 | 浏览次数:3310
2024-10-06 10:34:06 | 浏览次数:3369
2024-10-05 14:10:09 | 浏览次数:3581
2024-10-04 11:39:16 | 浏览次数:3772
2024-10-03 11:45:38 | 浏览次数:3333
2024-10-02 15:12:40 | 浏览次数:3698
2024-10-01 11:30:59 | 浏览次数:4610
2024-09-30 15:07:17 | 浏览次数:3424
2024-09-29 10:36:06 | 浏览次数:3598
2024-09-28 11:55:35 | 浏览次数:3429
2024-09-27 15:28:01 | 浏览次数:3497
2024-09-26 10:58:03 | 浏览次数:3718
2024-09-25 10:45:40 | 浏览次数:3552
2024-09-24 11:35:09 | 浏览次数:3609
2024-09-22 10:12:55 | 浏览次数:3455
2024-09-21 14:21:39 | 浏览次数:3771
2024-09-20 11:29:15 | 浏览次数:3660
2024-09-19 11:36:30 | 浏览次数:3584
2024-09-17 09:56:25 | 浏览次数:3980
2024-09-16 14:52:59 | 浏览次数:3956
2024-09-15 12:33:17 | 浏览次数:3886
2024-09-14 09:55:50 | 浏览次数:3935
2024-08-30 09:05:32 | 浏览次数:3879
2024-08-29 11:32:37 | 浏览次数:3755
2024-08-28 09:37:14 | 浏览次数:3691
2024-08-27 09:47:42 | 浏览次数:3663
2024-08-25 09:56:04 | 浏览次数:3689
2024-08-24 10:42:02 | 浏览次数:3763
2024-08-23 10:02:59 | 浏览次数:3466
2024-08-22 09:12:26 | 浏览次数:3552
2024-08-21 11:44:08 | 浏览次数:3443
2024-08-20 11:47:37 | 浏览次数:3552
2024-08-18 10:27:14 | 浏览次数:3404
2024-08-17 14:09:04 | 浏览次数:3741
2024-08-16 10:59:49 | 浏览次数:3479
2024-08-15 10:03:34 | 浏览次数:3520
2024-08-14 11:24:34 | 浏览次数:3483
2024-08-13 10:29:36 | 浏览次数:3430
2024-08-11 10:46:16 | 浏览次数:3450
2024-08-10 10:44:38 | 浏览次数:3782
2024-08-09 13:56:48 | 浏览次数:3735
2024-08-08 15:17:48 | 浏览次数:3877
2024-08-07 09:25:26 | 浏览次数:3715
2024-08-06 10:17:54 | 浏览次数:3661
2024-08-04 10:34:24 | 浏览次数:3785
2024-08-03 10:28:01 | 浏览次数:3766
2024-08-02 11:17:41 | 浏览次数:3794
2024-08-01 10:04:18 | 浏览次数:3731
2024-07-31 10:05:06 | 浏览次数:3558
2024-07-30 09:43:26 | 浏览次数:3595
2024-07-29 10:02:10 | 浏览次数:3914
2024-07-28 09:55:21 | 浏览次数:3853
2024-07-27 09:48:22 | 浏览次数:3615
2024-07-26 11:18:34 | 浏览次数:3844
2024-07-25 10:35:58 | 浏览次数:4000
2024-07-24 11:12:04 | 浏览次数:3841
2024-07-23 11:56:32 | 浏览次数:3881
2024-07-21 10:28:22 | 浏览次数:3799
2024-07-20 10:41:29 | 浏览次数:3952
2024-07-19 11:44:53 | 浏览次数:3971
2024-07-18 10:52:42 | 浏览次数:3939
2024-07-17 09:55:42 | 浏览次数:3821
2024-07-16 09:03:17 | 浏览次数:3875
2024-07-14 10:54:25 | 浏览次数:4041
2024-07-13 11:46:15 | 浏览次数:3968
2024-07-12 11:03:04 | 浏览次数:4055
2024-07-11 11:27:28 | 浏览次数:3862
2024-07-10 10:19:24 | 浏览次数:4004
2024-07-09 10:08:46 | 浏览次数:4017
2024-07-07 10:41:01 | 浏览次数:4083
2024-07-06 10:02:59 | 浏览次数:4135
2024-07-05 10:10:42 | 浏览次数:4075
2024-07-04 10:18:29 | 浏览次数:3947
2024-07-03 09:43:04 | 浏览次数:4083
2024-07-02 10:39:08 | 浏览次数:4078
2024-06-30 10:51:37 | 浏览次数:4058
2024-06-29 11:27:09 | 浏览次数:4033
2024-06-28 11:43:26 | 浏览次数:3957
2024-06-27 11:08:26 | 浏览次数:4011
2024-06-26 09:23:44 | 浏览次数:4104
2024-06-25 10:22:45 | 浏览次数:4069
2024-06-22 13:23:34 | 浏览次数:4106
2024-06-21 09:50:34 | 浏览次数:4173
2024-06-20 09:57:13 | 浏览次数:3997
2024-06-19 09:43:58 | 浏览次数:3821
2024-06-18 10:36:35 | 浏览次数:3743
2024-06-16 09:38:39 | 浏览次数:3866
2024-06-15 11:13:53 | 浏览次数:4026
2024-06-14 10:00:46 | 浏览次数:3904
2024-06-13 11:14:21 | 浏览次数:3927
2024-06-12 13:50:40 | 浏览次数:3999
2024-06-12 10:54:04 | 浏览次数:3940
2024-06-11 10:10:52 | 浏览次数:3988
2024-06-09 10:19:45 | 浏览次数:4106
2024-06-08 11:02:22 | 浏览次数:4154
2024-06-07 09:43:42 | 浏览次数:4214
2024-06-06 11:53:58 | 浏览次数:4150
2024-06-05 09:04:43 | 浏览次数:4195
2024-06-04 10:05:19 | 浏览次数:4184
2024-06-02 09:29:14 | 浏览次数:4202
2024-06-01 11:40:17 | 浏览次数:4100
2024-05-31 11:56:29 | 浏览次数:4318
2024-05-30 10:40:05 | 浏览次数:4127
2024-05-29 11:58:12 | 浏览次数:4345
2024-05-29 11:04:56 | 浏览次数:4133
2024-05-28 10:02:35 | 浏览次数:4073
2024-05-26 09:26:04 | 浏览次数:4018
2024-05-25 10:49:20 | 浏览次数:4342
2024-05-24 10:57:10 | 浏览次数:4135
2024-05-23 11:28:52 | 浏览次数:4196
2024-05-22 11:34:43 | 浏览次数:4028
2024-05-21 10:18:17 | 浏览次数:4160
2024-05-19 09:48:31 | 浏览次数:4162
2024-05-18 10:00:27 | 浏览次数:4260
2024-05-17 11:16:23 | 浏览次数:3964
2024-05-16 09:17:01 | 浏览次数:4119
2024-05-15 09:41:22 | 浏览次数:3938
2024-05-14 09:40:06 | 浏览次数:4070
2024-05-13 10:14:34 | 浏览次数:4148
2024-05-12 09:30:28 | 浏览次数:4046
2024-05-11 09:55:02 | 浏览次数:4108
2024-05-10 10:21:22 | 浏览次数:4326
2024-05-09 11:13:03 | 浏览次数:4228
2024-05-05 10:33:09 | 浏览次数:4260
2024-05-03 09:40:35 | 浏览次数:4295
2024-05-02 09:38:06 | 浏览次数:4369
2024-05-01 09:19:44 | 浏览次数:4194
2024-04-30 10:25:45 | 浏览次数:4281
2024-04-29 09:28:47 | 浏览次数:4118
2024-04-28 09:48:24 | 浏览次数:4983
2024-04-27 10:08:17 | 浏览次数:4255
2024-04-26 10:06:29 | 浏览次数:4258
2024-04-25 11:36:13 | 浏览次数:4121
2024-04-24 09:49:00 | 浏览次数:4254
2024-04-23 10:21:12 | 浏览次数:4101
2024-04-21 11:36:25 | 浏览次数:4149
2024-04-20 11:04:03 | 浏览次数:4073
2024-04-19 09:30:17 | 浏览次数:4096
2024-04-18 09:06:15 | 浏览次数:4049
2024-04-17 09:19:40 | 浏览次数:4136
2024-04-16 09:26:39 | 浏览次数:4067
2024-04-14 10:27:39 | 浏览次数:4293
2024-04-13 09:50:52 | 浏览次数:4386
2024-04-12 09:00:57 | 浏览次数:4512
2024-04-11 09:22:52 | 浏览次数:4467
2024-04-10 08:54:01 | 浏览次数:4528
2024-04-09 13:45:07 | 浏览次数:4428
2024-04-07 10:57:42 | 浏览次数:4370
2024-04-06 11:03:10 | 浏览次数:4581
2024-04-05 11:54:46 | 浏览次数:4410
2024-04-04 14:16:50 | 浏览次数:4383
2024-04-03 11:18:34 | 浏览次数:4743
2024-04-02 10:59:09 | 浏览次数:4385
2024-03-31 13:08:07 | 浏览次数:4605
2024-03-30 16:17:41 | 浏览次数:4557
2024-03-29 11:19:27 | 浏览次数:4457
2024-03-28 11:00:52 | 浏览次数:4393
2024-03-27 10:22:00 | 浏览次数:4488
2024-03-26 10:33:06 | 浏览次数:4539
2024-03-24 09:34:19 | 浏览次数:4397
2024-03-23 10:21:54 | 浏览次数:5014
2024-03-22 09:24:35 | 浏览次数:4495
2024-03-21 09:13:57 | 浏览次数:4760
2024-03-20 09:55:01 | 浏览次数:4583
2024-03-19 10:15:02 | 浏览次数:4472
2024-03-17 10:14:12 | 浏览次数:4356
2024-03-16 09:10:03 | 浏览次数:4815
2024-03-15 09:36:33 | 浏览次数:4661
2024-03-14 09:34:09 | 浏览次数:4672
2024-03-13 14:02:21 | 浏览次数:4577
2024-03-12 11:39:51 | 浏览次数:4760
2024-03-10 09:33:04 | 浏览次数:4628
2024-03-09 10:17:30 | 浏览次数:4754
2024-03-08 11:23:44 | 浏览次数:4734
2024-03-07 09:50:17 | 浏览次数:4542
2024-03-06 14:14:07 | 浏览次数:4631
2024-03-05 11:50:06 | 浏览次数:4697
2024-03-03 10:27:26 | 浏览次数:4766
2024-03-02 09:58:29 | 浏览次数:4590
2024-03-01 10:22:55 | 浏览次数:4506
2024-02-29 12:16:03 | 浏览次数:4692
2024-02-28 09:04:32 | 浏览次数:4854
2024-02-27 10:47:09 | 浏览次数:4804
2024-02-25 10:26:32 | 浏览次数:4793
2024-02-24 11:28:07 | 浏览次数:4788
2024-02-23 09:15:58 | 浏览次数:5009
2024-02-22 09:50:35 | 浏览次数:4762
2024-02-21 09:52:03 | 浏览次数:4770
2024-02-20 09:44:47 | 浏览次数:4809
2024-02-19 10:30:18 | 浏览次数:4725
2024-02-18 13:37:57 | 浏览次数:4786
2024-01-10 09:06:30 | 浏览次数:5306
2024-01-09 11:37:29 | 浏览次数:5140
2024-01-07 10:57:31 | 浏览次数:5426
2024-01-06 11:07:28 | 浏览次数:5393
2024-01-05 14:56:45 | 浏览次数:5403
2024-01-04 14:52:23 | 浏览次数:5498
2024-01-03 09:23:23 | 浏览次数:5545
2024-01-02 09:43:09 | 浏览次数:5347
2023-12-31 09:51:00 | 浏览次数:5501
2023-12-30 11:33:24 | 浏览次数:5301
2023-12-29 09:18:51 | 浏览次数:5413
2023-12-28 09:50:10 | 浏览次数:5547
2023-12-27 11:20:39 | 浏览次数:5646
2023-12-26 08:54:38 | 浏览次数:5723
2023-12-24 11:01:27 | 浏览次数:5360
2023-12-23 11:09:04 | 浏览次数:5414
2023-12-22 08:59:40 | 浏览次数:5272
2023-12-21 09:30:10 | 浏览次数:5264
2023-12-20 10:26:16 | 浏览次数:5974
2023-12-19 10:28:29 | 浏览次数:5622
2023-12-17 09:54:08 | 浏览次数:5557
2023-12-16 10:19:04 | 浏览次数:5381
2023-12-14 09:22:54 | 浏览次数:5503
2023-12-13 11:06:28 | 浏览次数:5584
2023-12-12 09:33:56 | 浏览次数:5571
2023-12-10 09:37:18 | 浏览次数:5619
2023-12-09 10:42:03 | 浏览次数:5735
2023-12-08 09:35:06 | 浏览次数:5554
2023-12-07 09:22:40 | 浏览次数:5693
2023-12-06 09:55:11 | 浏览次数:5546
2023-12-05 10:00:25 | 浏览次数:5462
2023-12-03 10:35:31 | 浏览次数:5542
2023-12-02 10:49:43 | 浏览次数:5599
2023-12-01 10:12:34 | 浏览次数:5720
2023-11-30 10:12:03 | 浏览次数:5442
2023-11-29 10:29:51 | 浏览次数:5689
2023-11-28 09:44:42 | 浏览次数:5614
2023-11-26 09:24:27 | 浏览次数:5659
2023-11-25 10:36:55 | 浏览次数:5750
2023-11-24 09:43:58 | 浏览次数:5711
2023-11-23 09:54:45 | 浏览次数:5701
2023-11-22 10:52:53 | 浏览次数:5616
2023-11-21 10:33:45 | 浏览次数:5678
2023-11-19 10:41:42 | 浏览次数:5715
2023-11-17 09:59:35 | 浏览次数:5722
2023-11-16 09:22:27 | 浏览次数:5696
2023-11-15 09:20:56 | 浏览次数:5805
2023-11-14 09:39:10 | 浏览次数:5752
2023-11-12 09:33:58 | 浏览次数:5869
2023-11-11 10:02:50 | 浏览次数:5902
2023-11-10 10:25:30 | 浏览次数:5819
2023-11-09 14:28:21 | 浏览次数:6392
2023-11-08 10:21:14 | 浏览次数:5853
2023-11-07 09:36:24 | 浏览次数:5775
2023-11-05 10:05:27 | 浏览次数:5845
2023-11-04 10:13:06 | 浏览次数:5696
2023-11-03 09:49:02 | 浏览次数:5467
2023-11-02 10:16:48 | 浏览次数:5594
2023-11-01 09:26:21 | 浏览次数:5942
2023-10-31 09:21:55 | 浏览次数:5841
2023-10-30 10:29:22 | 浏览次数:5698
2023-10-29 09:51:10 | 浏览次数:5827
2023-10-28 10:19:45 | 浏览次数:5814
2023-10-27 10:17:50 | 浏览次数:5588
2023-10-26 10:52:26 | 浏览次数:5905
2023-10-25 09:54:51 | 浏览次数:5588
2023-10-24 09:32:35 | 浏览次数:5932
2023-10-22 10:17:22 | 浏览次数:5679
2023-10-21 11:09:08 | 浏览次数:6015
2023-10-19 10:15:02 | 浏览次数:6092
2023-10-18 11:12:40 | 浏览次数:5841
2023-10-17 16:03:41 | 浏览次数:5934
2023-10-15 09:56:39 | 浏览次数:5976
2023-10-13 10:02:39 | 浏览次数:5928
2023-10-12 09:47:07 | 浏览次数:6105
2023-10-08 10:57:06 | 浏览次数:6085
2023-10-07 11:24:37 | 浏览次数:6563
2023-10-06 09:45:31 | 浏览次数:6210
2023-10-04 09:39:33 | 浏览次数:6652
2023-10-03 09:56:05 | 浏览次数:6197
2023-10-02 10:39:02 | 浏览次数:5957
2023-10-01 10:58:01 | 浏览次数:6057
2023-09-29 09:53:57 | 浏览次数:6040
2023-09-28 10:17:27 | 浏览次数:6240
2023-09-27 10:01:58 | 浏览次数:5975
2023-09-26 09:45:49 | 浏览次数:5992
2023-09-24 10:47:48 | 浏览次数:6179
2023-09-23 10:33:39 | 浏览次数:6050
2023-09-22 09:45:23 | 浏览次数:6108
2023-09-21 10:22:06 | 浏览次数:6312
2023-09-20 09:50:18 | 浏览次数:6216
2023-09-19 10:40:45 | 浏览次数:6092
2023-09-17 10:58:05 | 浏览次数:6103
2023-09-16 10:08:45 | 浏览次数:7342
2023-09-15 09:25:18 | 浏览次数:6646
2023-09-14 09:21:02 | 浏览次数:6919
2023-09-13 09:16:04 | 浏览次数:6978
2023-09-12 09:20:02 | 浏览次数:6544
2023-09-10 09:54:45 | 浏览次数:6451
2023-09-09 09:44:24 | 浏览次数:7514
2023-09-08 10:14:42 | 浏览次数:6542
2023-09-07 10:47:08 | 浏览次数:7678
2023-09-06 14:55:38 | 浏览次数:6438
2023-09-05 09:11:33 | 浏览次数:6948
2023-09-03 09:47:22 | 浏览次数:6336
2023-09-02 09:40:35 | 浏览次数:7591
2023-08-31 09:16:47 | 浏览次数:6556
2023-08-30 09:26:20 | 浏览次数:7548
2023-08-29 09:26:28 | 浏览次数:7466
2023-08-26 10:22:19 | 浏览次数:7186
2023-08-25 11:01:35 | 浏览次数:7665
2023-08-24 09:23:46 | 浏览次数:6769
2023-08-22 09:41:58 | 浏览次数:6339
2023-08-19 09:32:57 | 浏览次数:6465
2023-08-17 10:23:57 | 浏览次数:7817
2023-08-13 10:22:35 | 浏览次数:6215
2023-08-12 10:43:31 | 浏览次数:6296
2023-08-10 09:37:04 | 浏览次数:7275
2023-08-09 16:50:53 | 浏览次数:6836
2023-08-08 09:23:49 | 浏览次数:6755
2023-08-05 09:50:43 | 浏览次数:7182
2023-08-04 09:52:37 | 浏览次数:10740
2023-08-02 09:43:47 | 浏览次数:6530
2023-08-01 09:38:06 | 浏览次数:7939
2023-07-31 10:52:46 | 浏览次数:6959
2023-07-30 09:56:26 | 浏览次数:7744
2023-07-29 10:41:05 | 浏览次数:7110
2023-07-27 09:46:00 | 浏览次数:7740
2023-07-26 10:03:14 | 浏览次数:6499
2023-07-25 09:24:34 | 浏览次数:7027
2023-07-23 09:58:19 | 浏览次数:7137
2023-07-22 10:24:35 | 浏览次数:7836
2023-07-21 09:26:36 | 浏览次数:7804
2023-07-20 09:20:24 | 浏览次数:7964
2023-07-19 09:08:55 | 浏览次数:7754
2023-07-18 09:29:34 | 浏览次数:7700
2023-07-14 09:41:41 | 浏览次数:7861
2023-07-13 10:56:39 | 浏览次数:7258
2023-07-11 10:06:46 | 浏览次数:7233
2023-07-09 10:22:05 | 浏览次数:7389
2023-07-07 09:30:18 | 浏览次数:7280
2023-07-06 09:42:15 | 浏览次数:6909
2023-07-01 10:02:28 | 浏览次数:7332
2023-06-30 09:40:23 | 浏览次数:7783
2023-06-29 10:09:54 | 浏览次数:8633
2023-06-28 10:01:42 | 浏览次数:8190
2023-06-27 09:52:00 | 浏览次数:7974
2023-06-25 11:07:20 | 浏览次数:7913
2023-06-24 10:06:31 | 浏览次数:7664
2023-06-23 09:53:43 | 浏览次数:8323
2023-06-18 11:12:08 | 浏览次数:8454
2023-06-17 10:28:55 | 浏览次数:8598
2023-06-16 09:07:45 | 浏览次数:7720
2023-06-15 09:08:54 | 浏览次数:8204
2023-06-13 11:49:03 | 浏览次数:8048
2023-06-11 10:10:07 | 浏览次数:8294
2023-06-08 09:18:40 | 浏览次数:8330
2023-06-07 16:26:36 | 浏览次数:8188
2023-06-06 10:03:35 | 浏览次数:7620
2023-06-04 09:44:19 | 浏览次数:8261
2023-06-03 10:08:29 | 浏览次数:7988
2023-06-02 09:34:56 | 浏览次数:7502
2023-06-01 09:11:27 | 浏览次数:7831
2023-05-31 09:31:05 | 浏览次数:8229
2023-05-30 10:04:18 | 浏览次数:7040
2023-05-28 10:07:21 | 浏览次数:7336
2023-05-27 10:07:12 | 浏览次数:7129
2023-05-26 11:08:06 | 浏览次数:7756
2023-05-23 09:58:25 | 浏览次数:7808
2023-05-21 09:35:12 | 浏览次数:8115
2023-05-20 10:20:39 | 浏览次数:7860
2023-05-19 09:45:17 | 浏览次数:7150
2023-05-18 13:26:28 | 浏览次数:7414
2023-05-17 09:10:46 | 浏览次数:7455
2023-05-16 08:57:00 | 浏览次数:7815
2023-05-14 09:30:21 | 浏览次数:8631
2023-05-13 09:23:39 | 浏览次数:7878
2023-05-12 09:39:17 | 浏览次数:7164
2023-05-11 08:43:37 | 浏览次数:7116
2023-05-10 15:03:36 | 浏览次数:7678
2023-05-10 09:17:53 | 浏览次数:8258
2023-05-09 09:09:41 | 浏览次数:7772
2023-05-08 15:28:04 | 浏览次数:7171
2023-05-07 09:31:17 | 浏览次数:7731
2023-05-06 09:29:59 | 浏览次数:7395
2021-03-23 14:10:00 | 浏览次数:10342
2021-03-23 13:23:09 | 浏览次数:10068
2021-03-20 14:51:01 | 浏览次数:10998
2021-03-18 15:21:51 | 浏览次数:9985
2021-03-16 11:52:08 | 浏览次数:9619
2021-03-16 10:32:31 | 浏览次数:9675
2021-03-13 16:56:25 | 浏览次数:9879
2021-03-11 16:39:18 | 浏览次数:9833
2021-03-11 14:20:28 | 浏览次数:9605
2021-03-07 14:23:46 | 浏览次数:9753
2021-03-06 14:58:00 | 浏览次数:9776
2020-11-27 10:25:11 | 浏览次数:10613
2020-11-25 16:04:28 | 浏览次数:10289
2020-11-17 15:49:08 | 浏览次数:10229
2020-11-17 15:11:53 | 浏览次数:10241
2020-11-17 14:55:08 | 浏览次数:10546
2020-10-31 00:11:25 | 浏览次数:10548
2020-09-20 14:06:54 | 浏览次数:10434
2019-12-04 10:24:17 | 浏览次数:15766
2019-11-20 16:30:56 | 浏览次数:11358
2019-10-07 17:26:12 | 浏览次数:14574
2019-10-06 13:28:44 | 浏览次数:11403
2019-09-10 15:34:35 | 浏览次数:11313
2019-06-07 14:43:20 | 浏览次数:11899
2019-05-31 15:01:23 | 浏览次数:11635
2019-05-18 15:47:29 | 浏览次数:13111
2019-03-28 11:24:29 | 浏览次数:11711
2018-12-01 11:02:07 | 浏览次数:12556
2018-11-08 13:56:32 | 浏览次数:18637
2018-10-21 08:48:23 | 浏览次数:15769