立即预约 立即预约
免费定制整装家居

免费定制整装家居

一站置家 全程无忧 一省到底
hide.png

当前位置: 首页 > 装修案例效果图 > 绿城全运村留香苑

绿城全运村留香苑 170平 现代简约风格效果图

收藏
案例风格 现代简约 案例户型 三居 案例面积 170平米
楼盘名称 绿城全运村留香苑 设计师 林凤装饰设计师 案例类型 改善性住宅

设计理念:客户是一名成功人士,对于家的执念就是简单干净,客户衣服比较多,所以把每个空间都做了大衣柜,并且融入到设计里

客厅
第1张
第2张
第3张
餐厅
第1张
卧室
第1张
第2张
第3张
第4张
卫生间
第1张
厨房
第1张
衣帽间
第1张
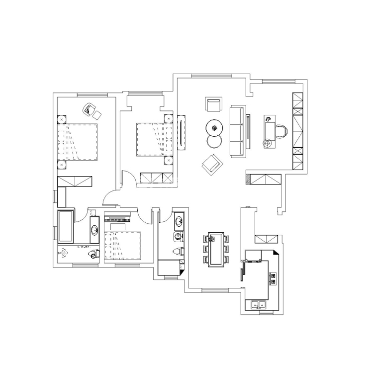
户型图
第1张
  • 案例详情

绿城全运村留香苑-170平-现代简约-客厅1.jpg 绿城全运村留香苑-170平-现代简约-客厅2.jpg 绿城全运村留香苑-170平-现代简约-客厅3.jpg

绿城全运村留香苑170平三室两厅现代风格林凤装饰的客厅以时尚大气沉稳为主,搭配上木饰面与黑色线条,再加上金属线条点缀也不失时尚感和年轻的活力

绿城全运村留香苑-170平-现代简约-餐厅.jpg

绿城全运村留香苑170平三室两厅现代风格林凤装饰的餐厅

绿城全运村留香苑-170平-现代简约-北卧.jpg 绿城全运村留香苑-170平-现代简约-主卧1.jpg 绿城全运村留香苑-170平-现代简约-次卧.jpg 绿城全运村留香苑-170平-现代简约-主卧2.jpg

绿城全运村留香苑170平三室两厅现代风格林凤装饰的主卧的色调相对较暖有利于休息和睡眠,床头的吊灯突出了整体风格,亮色的装饰画提升空间的立体感

绿城全运村留香苑-170平-现代简约-主卫.jpg

绿城全运村留香苑170平三室两厅现代风格林凤装饰的主卫面积很大,做了四分离设计,为业主设计了浴缸以及淋浴区,能提高整体的舒适性

绿城全运村留香苑-170平-现代简约-厨房.jpg

绿城全运村留香苑170平三室两厅现代风格林凤装饰的厨房是烟火之地,橱柜用纯白色搭配上纯白色墙砖让整理空间更加明亮干净

绿城全运村留香苑-170平-现代简约-衣帽间.jpg

绿城全运村留香苑170平三室两厅现代风格林凤装饰的衣帽间

绿城全运村留香苑-170平-现代简约-平面图.jpg

户型图

案例设计师

林凤装饰设计师

设计师:林凤装饰设计师

从业时间:4年

设计理念:在有限的空间做无限的设计,每一个作品都承载着一个家庭对美好生活的向往

预约设计师

算算你家装修多少钱

报名即享丰厚赠品,享半价装修

免费报价
咨询热线:400-656-9909
20190221103704574636.jpg

精品设计案例

20180612134930523248.jpg 服务号二维码.jpg