立即预约
免费定制整装家居
一站置家 全程无忧 一省到底
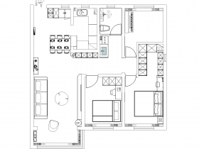
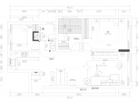
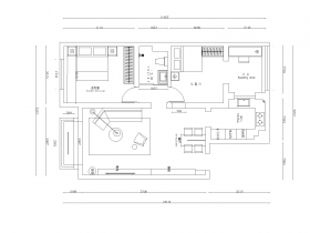
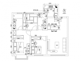
当前位置: 首页 > 装修案例效果图 > 其他,三居,91㎡ - 120㎡,户型图
设计说明:
这是一套意式轻奢风的装修案例。作为一套105㎡的意式轻奢暖咖洋房,室内设计简约美观。客厅采用现代轻奢风格的布局,白色沙发与咖啡色墙板相映成趣,展现出不同材质间的完美碰撞。棚面上刷着白色乳胶漆,米白色地砖为地面增添一份柔软与温暖。透过窗户,室外园林景色尽收眼底。
设计说明:
设计师整体设计理念: 本案的主要设计核心是以生活文本,回归改善的生活品质又不失华丽,颜色以暖色调为主,更加温馨,整个房间让人感觉温暖舒适,很想让人有归家感。
设计说明:
设计理念:奶油风格奶油风以奶咖色,打底,整体采用,低饱和度]的色彩,空间整体呈现出被细腻的奶油包裹着的氛围感
设计说明:
设计理念:客户年轻小两口,刚去住房,喜欢温馨柔和的感觉,所以在室内空间中融入木色和奶油色调,带来一种温暖舒适的感觉。
设计说明:
设计师整体设计理念: 因生活而设计,因设计而完美。
设计说明:
设计师整体设计理念:奶油风装修以柔和、温馨、舒适为特点,这种风格通常采用柔和的色调,如米白色、淡黄色等,让整个空间更加柔和,营造出温暖舒适的氛围。此外,奶油风装修还注重细节和舒适性,常常使用柔软的家具和织物,让整个空间更具亲和力和舒适感。
设计说明:
设计师整体设计理念:本案以法式风格为主,耐看显空间开阔,优雅浪漫的理想之宅
设计说明:
设计师整体设计理念:本设计风格为当下比较流行的奶油风,整体色调以奶油色为主,线条简洁,整体设计干净利落,在这个浮躁的时代,在奶油风的居家空间中,能使业主得以获得精神上的放松。