立即预约
免费定制整装家居
一站置家 全程无忧 一省到底
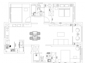
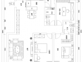
当前位置: 首页 > 装修案例效果图 > 中式,121㎡ - 150㎡,户型图
设计说明:
本案的主要设计核心是以生活文本,回归改善的生活品质又不失华丽,颜色以暖色调为主,更加温馨,整个房间让人感觉温暖舒适,很想让人有归家感。
设计说明:
设计师整体设计理念:中古风,改善型住房 ,五口之家,根据客户需求对房屋收纳空间和厨房空间加以优化。
设计说明:
设计说明:中式风格的房屋设计给人一种典雅庄重的感觉,中式风格的装修带给我们另一种视觉上的盛宴,在中式风格的设计中感受到中国古典艺术气息,得到一个富有中国传统文化的设计。
设计说明:
设计理念:现代风格,注重实用性,强调室内空间的充分使用,家具布置与空间密切配合,不添加繁琐多余的附加装饰,家具上线条简单,强调功能型设计,色彩对比强烈。现代风格是所有风格中最不拘一格表现时尚。
设计说明:
房子为客户自住、改善性住房,业主追求干净、传统、古朴的生活环境,同时对格局有很大期望,所以,本案已实用及合理性做布局,定义为新中式风格。
设计说明:
设计源于生活,生活因设计而改变,用有限的空间。做无限的设计,成就梦想之家。
设计说明:
设计整体沉稳 大气;男主 喜欢一些厚重的家具 整体要看起来大气 有档次 中式气息要浓烈一些
设计说明:
中式风格大而不空,厚而不重,有格调又不显压抑。巧妙地组合给人以强烈的视觉意志力,成为时尚与古典的的柔美结合。