立即预约
免费定制整装家居
一站置家 全程无忧 一省到底
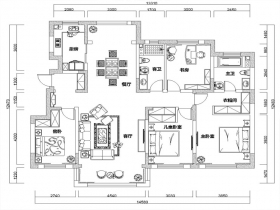
当前位置: 首页 > 装修案例效果图 > 欧式,151㎡ - 300㎡,户型图
设计说明:
本案例整体是以轻法风格为主,主打温馨浪漫的格调,整个空间线条感清晰,空间明确,PU线条的装饰,将整个空间的连贯性得以持续。
设计说明:
意式极简,改善型住房 ,五口之家,根据客户需求对房屋收纳空间和厨房空间加以优化。
设计说明:
设计理念:意式轻奢,一种有态度的设计风格,带有理性和温度的生活美学,在简约的基础上揉进高档有质感的软装。满足了现代年轻人对于品质、设计的多重需求,自我个性的真实表达。
设计说明:
业主很喜欢简欧的符号弱化表现形式,能很好的体现出风格倾向又不失庸俗,欧式对理石及线条的体现非常充分,室内大气明快,与现代风格的略微结合 不失现代感
设计说明:
业主很喜欢简欧的符号弱化表现形式,能很好的体现出风格倾向又不失庸俗,欧式对理石及线条的体现非常充分,室内大气明快,与现代风格的略微结合 不失现代感。
设计说明:
此案设计中采用的是欧式风格,欧式风格豪华大气,惬意舒适,浪漫的气息围绕整个空间,满足男主人女主人对风格的要求,且能带给家人不尽的舒服感触。
设计说明:
本案以欧式元素为主,用对比的颜色为空间营造了另一种美,选用现代感较强烈的家具和配饰,使空间抽象明快,增加了千姿百态的生活乐趣。
设计说明:
本案涉及以欧式为主,整个空间弥漫着奢华与浪漫的气氛,硬朗的材质,明快的色彩、柔美的家具、雅致的配饰,赋予空间素净、明亮的神采。空间一方面保留了材质,色彩的大致风格,仍然可以很强烈的表现传统的历史痕迹与浑厚的文化底蕴,同时又摒弃了过于复杂的肌理和装饰,简化了线条。
组合家具的颜色选用白色和流行色,仿佛为主人编织了一个明快美丽的梦想。在整个空间里,在墙上抽象画,以营造浓郁的艺术氛围,表现主人的文化素养。运用简单的线条来营造整个效,客厅顶部吊灯营造气氛。灯自然不可或缺,它被安置在空间的交汇处,又与色彩鲜艳的油画相呼应,提供了一个新的亮点。
室内则有壁灯造型。客厅家具采用白色皮艺沙发组合有着深色的抱枕的质感,墨绿色的抱枕以及同色的脚蹬来营造整体效果,色彩鲜艳的整体搭配都是本案欧式客厅里的主角。本案强调表面装饰,多运用细密绘画的手法,具有丰富华丽的效果。