立即预约 立即预约
免费定制整装家居

免费定制整装家居

一站置家 全程无忧 一省到底
hide.png

当前位置: 首页 > 装修案例效果图 > 万恒东方俪城

万恒东方俪城 78平 北欧风格效果图

收藏
案例风格 北欧 案例户型 二居 案例面积 78平米
楼盘名称 万恒东方俪城 设计师 林凤装饰设计师 案例类型 改善性住宅

设计理念:本案是一个两居室的房子,此户型装修风格属于北欧风格,北欧风格的家居主张人性化简约不简单又十分有温暖元素的风格,此风格深受客户群体的热捧,秉承功能至上、以人为本的设计理念。这个户型比较中规中矩,在造型方面比较简洁,没有繁琐的设计元素,而且大面积的暖色调和灰色调,非常的温馨人性化。

客厅
第1张
第2张
第3张
餐厅
第1张
第2张
卧室
第1张
第2张
卫生间
第1张
厨房
第1张
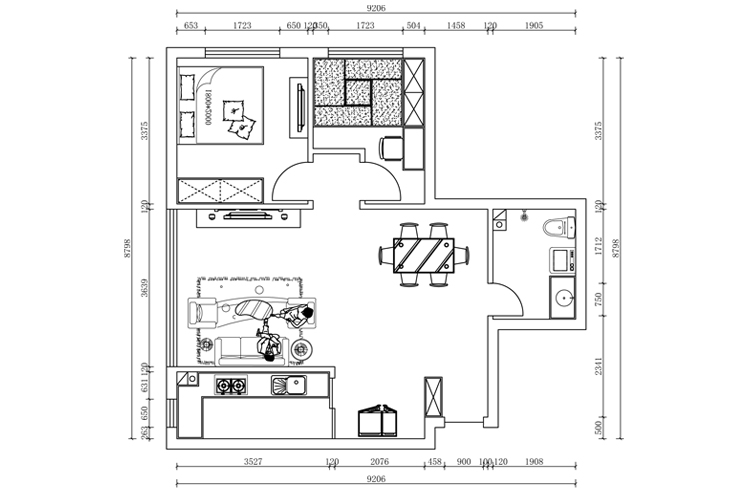
户型图
第1张
  • 案例详情

万恒东方俪城-78平-北欧风格-客厅1.jpg 万恒东方俪城-78平-北欧风格-客厅2.jpg 万恒东方俪城-78平-北欧风格-首图.JPG

本案户型客厅主要作用是满足客户生活起居,客厅的沙发背景墙以大白墙为主,墙面用挂画做装饰,使原本单调的墙面丰富起来。整体吊顶采用石膏板边棚做造型,很好的利用建筑本身的结构,弥补了原始顶棚的不完美空间。

万恒东方俪城-78平-北欧风格-餐厅1.jpg 万恒东方俪城-78平-北欧风格-餐厅2.jpg

本案餐厅的空间较大,所以放置了一个六人餐桌,满足多人用餐的同时还充分得到利用空间,餐桌的背景墙放置了一个酒柜,可以存放一些餐具和酒水,使单调的生活充满高尚的情调。

万恒东方俪城-78平-北欧风格-卧室1.jpg 万恒东方俪城-78平-北欧风格-卧室2.jpg

卧室的色彩搭配采用黑白灰三色,和北欧的风格相互应,另一间卧室作为男孩房,因为房间面积较小,所以全屋采用榻榻米,弥补了面积小的缺点,整体的色调比较清新,充满活力。

万恒东方俪城-78平-北欧风格-卫生间.jpg

卫生间的地砖采用六边形拼砖,整体设计比较精简,但实用性很高。

万恒东方俪城-78平-北欧风格-厨房.jpg

本案例的厨房面积较小,设计选用北欧风格再合适不过了,更显得大气和时尚,橱柜的材质采用白色木质,与整体的色调相呼应。使原本面积很小的厨房也变得大气,亮堂。

万恒东方俪城-78平-北欧风格-户型图.jpg

案例设计师

林凤装饰设计师

设计师:林凤装饰设计师

从业时间:9年

设计理念:用最自由,浪漫的元素来表达灵感。

预约设计师

算算你家装修多少钱

报名即享丰厚赠品,享半价装修

免费报价
咨询热线:400-656-9909
20190221103704574636.jpg

精品设计案例

20180612134930523248.jpg 服务号二维码.jpg