立即预约 立即预约
免费定制整装家居

免费定制整装家居

一站置家 全程无忧 一省到底
hide.png

当前位置: 首页 > 装修案例效果图 > 新加坡花园

新加坡花园 80平 现代简约风格效果图

收藏
案例风格 现代简约 案例户型 二居 案例面积 80平米
楼盘名称 新加坡花园 设计师 林凤装饰设计师 案例类型 婚房

设计理念:本案为清新、素雅的现代简约风格,通过黑、白、灰色调的和谐搭配,营造一种舒适清爽的家具环境,整体色彩设计比较柔和,运用了许多清淡的色调和少许的对比色,使得区域更具有空间感和艺术效果。

客厅
第1张
第2张
第3张
餐厅
第1张
卧室
第1张
第2张
第3张
卫生间
第1张
厨房
第1张
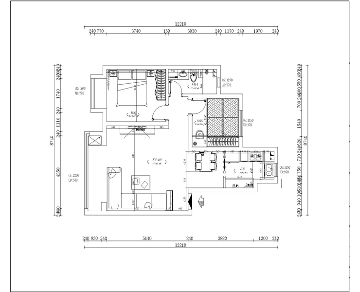
户型图
第1张
  • 案例详情

新加坡花园-80平-现代风格-客厅2 .jpg 新加坡花园-80平-现代风格-客厅1 .jpg 新加坡花园-80平-现代风格-首图 .JPG

客厅整体简洁舒适,黑色的皮质沙发加上黑胡桃木质电视柜为空间增加一种稳重感,加之沙发背景采用大幅的装饰画,搭配明亮的黄色,为空间添了一份清新与活跃。

新加坡花园-80平-现代风格-餐厅 .jpg

餐厅采用了镜面黑色金属质感的餐桌,显得尊贵又大方,餐边柜与挂画彰显了主人的品味,同时也增加了空间的使用功能。

新加坡花园-80平-现代风格-卧室1 .jpg 新加坡花园-80平-现代风格-卧室2 .jpg 新加坡花园-80平-现代风格-榻榻米1 .jpg

卧室为了营造舒适安静的休息空间,设计上比较简洁,顶面采用的石膏线修饰,大方简洁,暖灰色的色调辉映浅咖色的地板加之素色窗帘。

新加坡花园-80平-现代风格-卫生间 .jpg

卫生间采用暖色格子砖,增加了空间的延伸感,洗衣机与洗手盆连在一起,使得空间根据整体性并可以充分利用有限空间,蓝色花瓶黄色花朵作为跳色,增加了一些生机,金色镜框镜子增加了空间的层次感。

新加坡花园-80平-现代风格-厨房 .jpg

厨房采用灰色砖与白色橱柜,通过深浅色搭配打破了局促空间的限制增加了空间感,整体色调与客厅相呼应,遮光卷帘的应用,也让空间活跃起来。

新加坡花园-80平-现代风格-平面图.jpg

案例设计师

林凤装饰设计师

设计师:林凤装饰设计师

从业时间:4年

设计理念:设计以人为本

预约设计师

算算你家装修多少钱

报名即享丰厚赠品,享半价装修

免费报价
咨询热线:400-656-9909
20190221103704574636.jpg

精品设计案例

20180612134930523248.jpg 服务号二维码.jpg