立即预约 立即预约
免费定制整装家居

免费定制整装家居

一站置家 全程无忧 一省到底
hide.png

当前位置: 首页 > 装修案例效果图 > 雅宾利花园

雅宾利花园 135平 现代简约风格效果图

收藏
案例风格 现代简约 案例户型 三居 案例面积 135平米
楼盘名称 雅宾利花园 设计师 王禹厶 案例类型 改善性住宅

设计理念:温馨之美,简而不凡。
男主人性格开朗、幽默,爱好广泛。对本案的唯一要求就是主卫生间一定要有浴缸。作为改善性住房,温馨、浪漫为设计重点。

客厅
第1张
餐厅
第1张
卧室
第1张
第2张
卫生间
第1张
厨房
第1张
书房
第1张
过廊
第1张
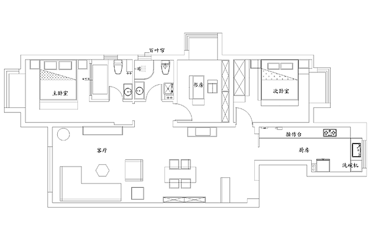
户型图
第1张
  • 案例详情

雅宾利花园-135平-现代风格-客厅全景.jpg

电视背景墙选用爵士白大理石砖饰面,手感细腻、光感柔和、纹理清晰,犹如鱼儿嬉戏,意境十足。多层次的跌级造型设计,更是打破了空间的沉闷,给电视背景赋予了生命的律动。

雅宾利花园-135平-现代风格-餐厅.jpg

餐厅的餐桌摆放以及大面积的组合式酒柜设计是本空间的一大亮点,餐桌摆放打破了传统的靠墙而放的传统思想束缚,大胆的放到了空间的中心,这样一来不但避免了餐桌位置经常受到人员的需要经常移动位置的问题,而且大大的激活了左右两边墙面的使用率,一面放钢琴,一面放酒柜,一举两得、两全其美的事何乐而不为啊!

雅宾利花园-135平-现代风格-副卧室.jpg 雅宾利花园-135平-现代风格-主卧室.jpg

主卧室由于空间长度所限,无法实现传统摆放,设计时索性就大胆的拆除了主卧与卫生间之间的隔墙,不必多说效果一目了然,通透、明亮,增加了空间的视觉效果,此空间在床的选择上选用了床箱式的床来增加换季物品的储放,当然斗柜才是日常收纳的不二自选,内衣、袜子分开收纳,好拿好找,不在混乱。当然对面的书房必定是定制家具,书籍、衣物收纳两不误。副卧室的榻榻米设计,在增加了储物空间的同时也避免了卫生死角,收拾起来更方便,书桌与墙面的书格设计大大提升了空间的实用性,休闲、娱乐两不误!

雅宾利花园-135平-现代风格-主卫生间.jpg

卫生间的墙砖颜色与主卧室墙面壁纸颜色统一呼应,视觉更协调,浴缸设计大大提升了房主的生活品质,在这个生活节奏越来越快的城市里,找到属于自己的那一片宁静而惬意的港湾。

雅宾利花园-135平-现代风格-厨房.jpg 雅宾利花园-135平-现代风格-书房.jpg 雅宾利花园-135平-现代风格-餐厅过廊.jpg 雅宾利花园-135平-现代风格-平面图.jpg

案例设计师

王禹厶

设计师:王禹厶

从业时间:10年

设计理念:坚持原创,坚持一切美好

预约设计师

算算你家装修多少钱

报名即享丰厚赠品,享半价装修

免费报价
咨询热线:400-656-9909
20190221103704574636.jpg

精品设计案例

20180612134930523248.jpg 服务号二维码.jpg