立即预约 立即预约
免费定制整装家居

免费定制整装家居

一站置家 全程无忧 一省到底
hide.png

当前位置: 首页 > 装修案例效果图 > 碧桂园繁华里

碧桂园繁华里 105平 混搭风格效果图

收藏
案例风格 混搭 案例户型 三居 案例面积 105平米
楼盘名称 碧桂园繁华里 设计师 林凤设计师 案例类型 改善性住宅

设计理念:家庭空间对于每个人来说,都有着不同的形式,年龄的不同,诠释的概念也是不同的,每个空间都有着自己的故事。

客厅
第1张
第2张
第3张
卧室
第1张
第2张
卫生间
第1张
厨房
第1张
休闲区
第1张
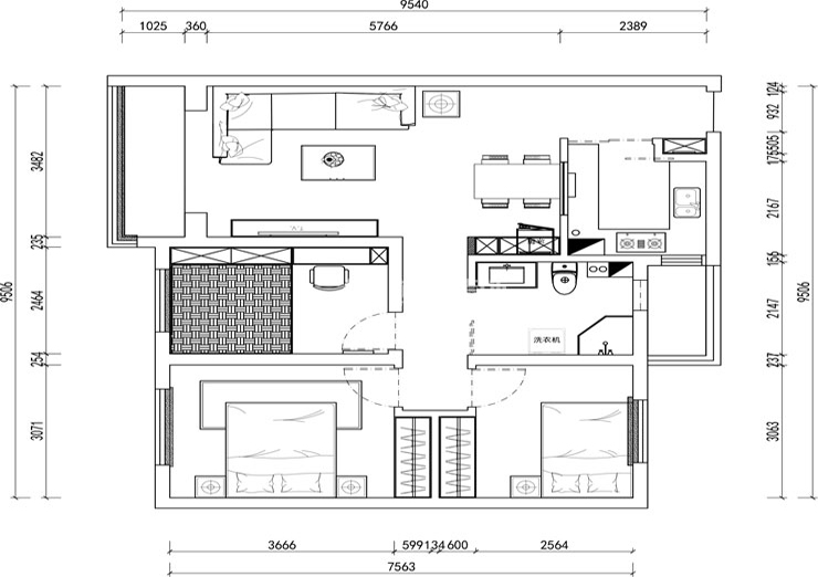
户型图
第1张
  • 案例详情

碧桂园繁华里-105平-混搭风格-客厅沙发墙部分.jpg 碧桂园繁华里-105平-混搭风格-客厅电视墙部分.jpg 碧桂园繁华里-105平-混搭风格-客厅1.jpg

客厅没有吊棚,利用简单的棚线做了墙面与顶部的分隔,这样即有了效果,又不会印象房屋的高度,背景墙和餐厅墙面运用了同一色彩的壁纸,使两个空间贯通在一起,又起到一定的效果。电视上的装饰格起到装饰的作用,电视墙不在孤单。

碧桂园繁华里-105平-混搭风格-主卧室1.jpg 碧桂园繁华里-105平-混搭风格-主卧室2.jpg

卧室墙面运用浅灰,为主题墙,在挂画上运用了有跳跃色的画心,这样的表现使卧室又温馨,又不失典雅。改变了一个风格,运用了简美风格,衣柜属于嵌入式的,储藏功能性也大大的提升的很多,风格的改变代表着在这个卧室有着孩子自己的梦想。

碧桂园繁华里-105平-混搭风格-卫生间.jpg

由于卫生间空间很窄,因此在瓷砖的选择上采用白色理石纹理的瓷砖,简单明了的设计,使卫生间有一定的延伸感,很明亮很舒服。

碧桂园繁华里-105平-混搭风格-厨房.jpg

U型厨房,封闭式设计,有足够额储藏功能,橱柜门板的颜色和墙砖的颜色搭配到一起,是比较时尚的,并且比较好打理。

碧桂园繁华里-105平-混搭风格-客房.jpg

做了全屋定制,可以休息,可以学习,可以打游戏,还有了更多的储藏空间,每个空间都能利用。

碧桂园繁华里-105平-混搭风格-平面图.jpg

案例设计师

林凤设计师

设计师:林凤设计师

从业时间:10年

设计理念:一个愉悦的空间、一种尊贵的生活、一方独享的天地,都在这里寻求最合适的表达。

预约设计师

算算你家装修多少钱

报名即享丰厚赠品,享半价装修

免费报价
咨询热线:400-656-9909
20190221103704574636.jpg

精品设计案例

20180612134930523248.jpg 服务号二维码.jpg