立即预约 立即预约
免费定制整装家居

免费定制整装家居

一站置家 全程无忧 一省到底
hide.png

当前位置: 首页 > 装修案例效果图 > 城建北尚

城建北尚 143平 现代简约风格效果图

收藏
案例风格 现代简约 案例户型 三居 案例面积 143平米
楼盘名称 城建北尚 设计师 林凤装饰全案设计师 案例类型 婚房

设计理念:色彩上,灰蓝、高级黑的主色调,奠定了空间沉稳内敛的底色,虽然整体看起来灰扑扑的,既没有亮色那样华丽,也没有黑白那样分明,却总是给人一种朦胧的美感,气质高级、脱俗,硬朗中又带有一丝温和,堪称所有色彩中最具大师格调的色彩。

客厅
第1张
第2张
餐厅
第1张
卧室
第1张
卫生间
第1张
厨房
第1张
门厅
第1张
过廊
第1张
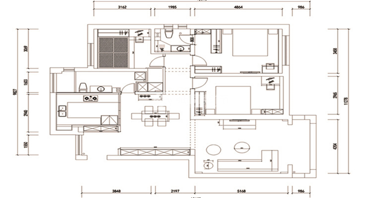
户型图
第1张
  • 案例详情

城建-143平-现代简约风格-客厅2.jpg 城建-143平-现代简约风格-客厅.jpg

客厅,做了一圈边棚,增加棚面的层次感,灰色的沙发组合,显得大气。

城建-143平-现代简约风格-餐厅.jpg

餐厅用金属隔断和过廊分割,让空间有立体感。餐桌采用理石的餐桌,和客厅的茶几呼应。

城建-143平-现代简约风格-卧室.jpg

主卧是忙碌一天终于可以好好休息的空间,没有做过亮和刺激的颜色,营造轻松惬意的睡眠环境。衣帽间满足业主存放衣物的需求。

城建-143平-现代简约风格-卫生间.jpg

灰色的墙砖让空间更时尚,墙砖用马赛克分割,让空间更有灵动感。

城建-143平-现代简约风格-厨房.jpg

米白是厨房的主题色调,错落有致的操作台面,配马赛克的砖,更有大气的感觉。

城建-143平-现代简约风格-过廊.jpg 城建-143平-现代简约风格-过廊.jpg 城建-143平-现代简约风格-平面图.jpg

案例设计师

林凤装饰全案设计师

设计师:林凤装饰全案设计师

从业时间:10年

设计理念:设计源于生活

预约设计师

算算你家装修多少钱

报名即享丰厚赠品,享半价装修

免费报价
咨询热线:400-656-9909
20190221103704574636.jpg

精品设计案例

20180612134930523248.jpg 服务号二维码.jpg