立即预约 立即预约
免费定制整装家居

免费定制整装家居

一站置家 全程无忧 一省到底
hide.png

当前位置: 首页 > 装修案例效果图 > 碧桂园繁华里

碧桂园繁华里 105平 现代简约风格效果图

收藏
案例风格 现代简约 案例户型 三居 案例面积 105平米
楼盘名称 碧桂园繁华里 设计师 张景新 案例类型 改善性住宅

设计理念:业主家庭情况及要求: 在与业主沟通的过程中得知,本案业主是是刚结婚的小两口,属于蜜月期间,而且还有一条 金毛犬,喜欢的就是现代风格的明亮舒适 所以最后定义为现代风格。设计师整体设计理念: 本案是一种以现代风格为主,首先强调其实用的功能 追求的就是功能与审美的完美结合,一方面让心情得到放松,一方面让心脑的得到愉悦。

客厅
第1张
餐厅
第1张
第2张
卧室
第1张
第2张
卫生间
第1张
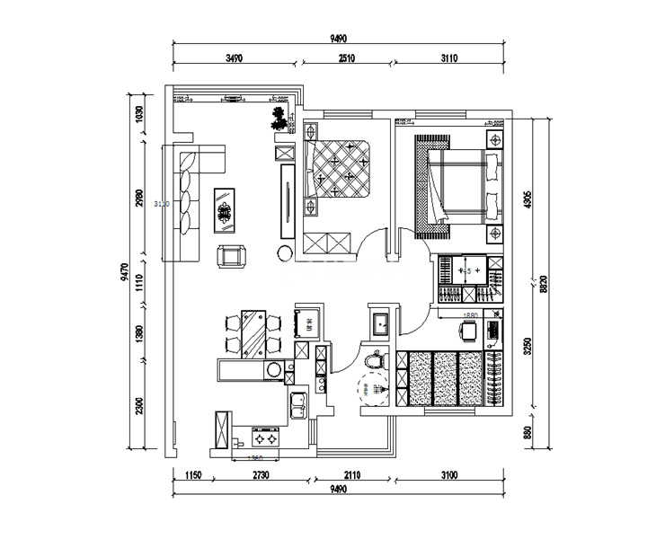
户型图
第1张
碧桂园繁华里-105平 现代风格-客厅1.jpg

客厅是整个空间的重点,而背景墙更占据客厅的主导亮点,所以在背景墙的选材和设计的时候,就需要慎重考虑,地砖作为空间的底色决定了空间的主体,选材为高级灰,背景墙就和地面做一个对比 采用当下最流行的鱼肚白 横条的造型 再配以上下的木纹 在视觉的效果上拉伸了整个背景的长度。

碧桂园繁华里-105平 现代风格-餐厅1.jpg 碧桂园繁华里-105平 现代风格-餐厅2.jpg

衣 食 住 行 而厨房和餐厅直接关系到食这一块 在一个家里 厨房的功能区 合理的排放对一个家来说是非常重要的 厨房因为考虑到效果 所以用开放式厨房呈现出来 整体U型的橱柜大大增加了厨房的操作台 把洗 切 炒 形成了一个三角形的动线。

碧桂园繁华里-105平 现代风格-卧室.jpg 碧桂园繁华里-105平 现代风格-主卧室.jpg

卧室是休息的地方、所以不需要太多杂乱的颜色 以及造型 家具配以花梨木的纹理 给人一种清新的感觉 加上业主想要实用的装饰,就放置了摆件,也让人看起来放松舒适又大气。

碧桂园繁华里-105平 现代风格-卫生间手盆.jpg

卫生间是每个家庭的重中之重,因为是干湿分离 所以在墙面瓷砖的选择上大胆的选用花片,突出干区的个性特点 再加上悬空台上盆 更是延续了风格的特点,把简结的卫生间提升到高贵的顶点。

平面布局图.jpg

案例设计师

张景新

设计师:张景新

从业时间:6年

设计理念:合理的划分空间,让设计融入生活,营造自然,品味,格调

预约设计师

算算你家装修多少钱

报名即享丰厚赠品,享半价装修

免费报价
咨询热线:400-656-9909
20190221103704574636.jpg

精品设计案例

20180612134930523248.jpg 服务号二维码.jpg