立即预约 立即预约
免费定制整装家居

免费定制整装家居

一站置家 全程无忧 一省到底
hide.png

当前位置: 首页 > 装修案例效果图 > 城建璞邸

城建璞邸 97平 现代简约风格效果图

收藏
案例风格 现代简约 案例户型 二居 案例面积 97平米
楼盘名称 城建璞邸 设计师 林凤装饰设计师 案例类型 婚房

设计理念:现代两居室。整体大面积采用灰色调,搭配诱人的祖母绿,使人产生神秘又不失柔和的视觉感受。

客厅
第1张
第2张
餐厅
第1张
卧室
第1张
第2张
卫生间
第1张
厨房
第1张
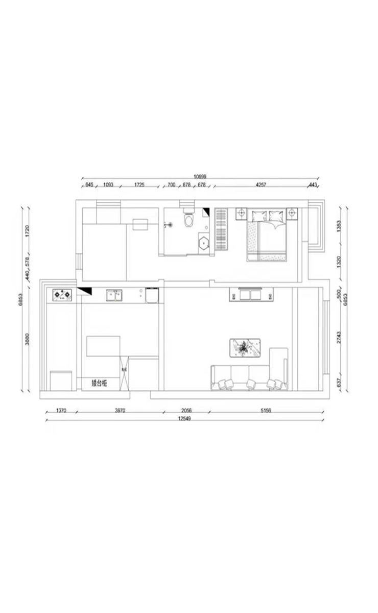
户型图
第1张
  • 案例详情

城建璞邸-97平-现代风格-客厅 (2).jpg 城建璞邸-97平-现代风格-客厅.jpg

特别的设计,不同寻常的客厅空间。L型沙发搭配皮质金属腿的偏椅,电视用了一个非常简单的板材台面,墙面搭配两个储蓄格,使空间看起来非常简单又不失大气。

城建璞邸-97平-现代风格-餐厅.jpg 城建璞邸-97平-现代风格-次卧.jpg 城建璞邸-97平-现代风格-主卧.jpg

卧室空间最大的亮点就是没有主灯,床头采用了长吊灯作为主卧室的主要光源,提高了睡眠质量。

城建璞邸-97平-现代风格-卫生间.jpg

墙地面整体灰调,搭配白色的洁具和吊顶,使空间看起来宽敞明亮。白色的洁具也与灰色的瓷砖形成鲜明的对比

城建璞邸-97平-现代风格-厨房.jpg

厨房采用了西厨的形式,整个厨房完全开放,整体采用岩石板橱柜,中间一个岛台,放弃了餐桌,好朋友来做客的时候可以在厨房看到客厅,和朋友有更好的交流。

城建璞邸-97平-现代风格-平面图.png

案例设计师

林凤装饰设计师

设计师:林凤装饰设计师

从业时间:11年

设计理念:用艺术的心去生活,用生活的智慧去完善升华艺术!

预约设计师

算算你家装修多少钱

报名即享丰厚赠品,享半价装修

免费报价
咨询热线:400-656-9909
20190221103704574636.jpg

精品设计案例

20180612134930523248.jpg 服务号二维码.jpg