立即预约 立即预约
免费定制整装家居

免费定制整装家居

一站置家 全程无忧 一省到底
hide.png

当前位置: 首页 > 装修案例效果图 > 融创城

融创城 78平 现代简约风格效果图

收藏
案例风格 现代简约 案例户型 二居 案例面积 78平米
楼盘名称 融创城 设计师 林凤装饰设计师 案例类型 婚房

设计理念:现代手法处理细节上的精致,使空间更加生动,颜色暖色对空间的渴望。

客厅
第1张
第2张
第3张
餐厅
第1张
卧室
第1张
卫生间
第1张
厨房
第1张
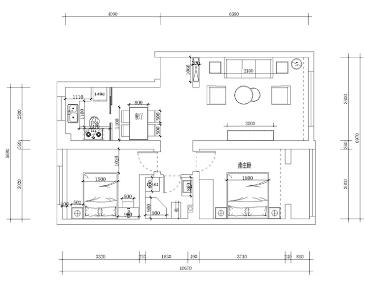
户型图
第1张
  • 案例详情

融创城-78平米-现代风格-沙发背景.jpg 融创城-78平米-现代风格-客厅.jpg 融创城-78平米-现代风格-电视背景.jpg

棚顶回字型使客厅方正,虚光暖色和壁纸相呼应,背景墙简单的设计使用石膏板框体收边,中间卷草形式壁纸更加使空间突出。

融创城-78平米-现代风格-餐厅.jpg

餐厅的空间比较小一些,所以餐桌靠墙一侧,棚顶U型边棚,把通往过道的空间给分离开,更加的满足空间上的效果。

融创城-78平米-现代风格-卧室.jpg

浅绿色的墙面和白色的衣柜更加的清新的空间感,有一种想休息的欲望所在,也是房主的用意,也是设计的手法,棚顶的设计也是凸显空间的方正。

融创城-78平米-现代风格-卫生间.jpg

没有窗户的卫生间,选择砖用浅色的,能使空间更加明亮,原木色的洗漱柜,黑色框体的浴屏,整体的效果更加现代。

融创城-78平米-现代风格-厨房.jpg

浅色的墙面砖,橱柜选择的材质是吸塑门板,下柜橘黄色的上柜是白色的,更加有鲜明的对比,使空间更加了食欲的欲望感。

融创城-78平米-现代风格-平面图.jpg

案例设计师

林凤装饰设计师

设计师:林凤装饰设计师

从业时间:10年

设计理念:感受生活品质,设计空间生活。

预约设计师

算算你家装修多少钱

报名即享丰厚赠品,享半价装修

免费报价
咨询热线:400-656-9909
20190221103704574636.jpg

精品设计案例

20180612134930523248.jpg 服务号二维码.jpg