立即预约 立即预约
免费定制整装家居

免费定制整装家居

一站置家 全程无忧 一省到底
hide.png

当前位置: 首页 > 装修案例效果图 > 华润二十四城

华润二十四城 84平 北欧风格效果图

收藏
案例风格 北欧 案例户型 二居 案例面积 84平米
楼盘名称 华润二十四城 设计师 仲崇彤 案例类型 婚房

设计理念:设计师整体设计理念:北欧工业给人们的感觉是舒适自然,简约大方,充分体现了绿色环保的设计理念,很受年轻人的喜爱,是现在比较受欢迎的装修风格之一。
业主家庭情况及要求:业主年龄在28岁左右,在设计过程中,以整体舒适、简约作为设计重点。

客厅
第1张
餐厅
第1张
卧室
第1张
卫生间
第1张
厨房
第1张
过廊
第1张
第2张
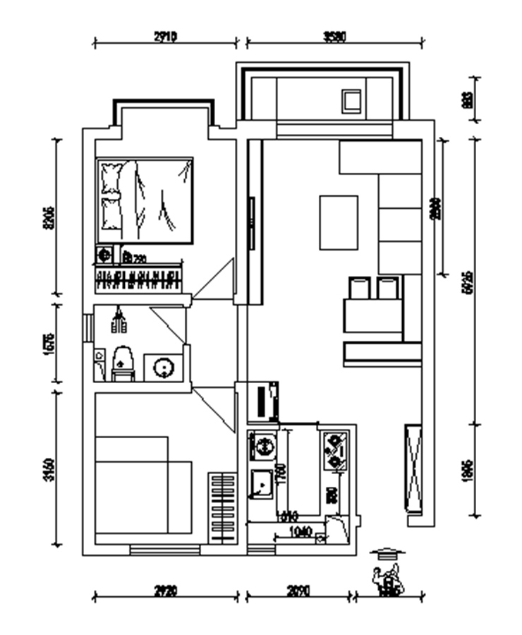
户型图
第1张
  • 案例详情

华润二十四层-84-北欧工业-客厅.jpg

简洁、干练,让家中呈现一种自然的舒适、干净之美。白色的茶几与深蓝色的沙发相结合,更显得温馨。沙发背景墙的色彩对业主述说着客厅的自然美感,同时又与家具的原木色形成了一种清新自然的感觉。

华润二十四层-84-北欧工业-餐厅2.jpg

餐桌为一张木质长桌,配着白色的餐椅,更显清新亮丽。将北欧风格所特有的清新自然描述的更加鲜明。简单的造型和色彩亮丽的家具的搭配,让一股浓烈的生活气息和温馨之感扑面而来。

华润二十四层-84-北欧工业-卧室.jpg 华润二十四层-84-北欧工业-卫生间.jpg

卫生间作为一个比较隐私的空间,因此在设计时要考虑关于隐私性的问题。灰色理石纹瓷砖让卫生间提升了整体的档次。白色吊柜让人觉得干净,清爽。在布局上也是更多的考虑了家庭中的实用性。

华润二十四层-84-北欧工业-厨房.jpg

厨房是一个相对来说油烟较大的空间,所以在设计时更多要考虑到对于油污的处理。白色灰理石纹墙砖最能体现厨房的干净整洁。时尚的橱柜搭配白色的台面,让厨房更显得干净整洁,在后期打理方面也是比较方便。

华润二十四层-84-北欧工业-过廊.jpg 华润二十四层-84-北欧工业-过廊2.jpg 华润二十四层-84-北欧工业-户型图.jpg

案例设计师

仲崇彤

设计师:仲崇彤

从业时间:15年

设计理念:设计就是着重于点、线、面的灵活运用,把整个环境营造出家的温馨。

预约设计师

算算你家装修多少钱

报名即享丰厚赠品,享半价装修

免费报价
咨询热线:400-656-9909
20190221103704574636.jpg

精品设计案例

20180612134930523248.jpg 服务号二维码.jpg