立即预约 立即预约
免费定制整装家居

免费定制整装家居

一站置家 全程无忧 一省到底
hide.png

当前位置: 首页 > 装修案例效果图 > 江南甲第

江南甲第 122平 北欧风格效果图

收藏
案例风格 北欧 案例户型 三居 案例面积 122平米
楼盘名称 江南甲第 设计师 林凤设计师 案例类型 改善性住宅

设计理念:设计理念:本案例定位为北欧风格,家具主要采用浅色色实木家具和白色的柜体搭配,利用彩色的色彩使空间丰富多彩,
业主家庭情况及要求:业主是一对年轻的夫妻,喜欢简单室内空间,喜欢小清新的风格,尽量好打理些,注重实用性和储藏空间。

客厅
第1张
第2张
第3张
第4张
卧室
第1张
第2张
卫生间
第1张
厨房
第1张
门厅
第1张
过廊
第1张
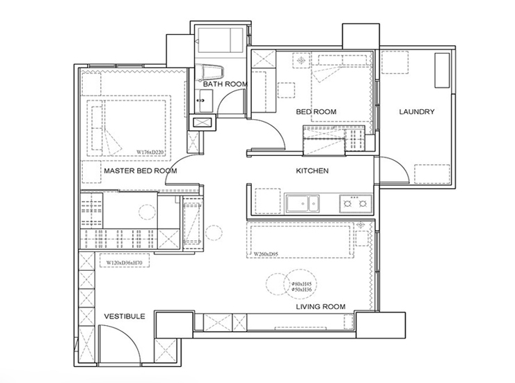
户型图
第1张
  • 案例详情

江南甲第-122平-北欧风格-客厅.jpg 江南甲第-122平-北欧风格-首图.jpg 江南甲第-122平-北欧风格-客厅2.jpg 江南甲第-122平-北欧风格-客厅3.jpg

客厅我们采用米色色系亚光瓷砖,在棚面并没有太多造型,在墙面上多下一些功夫。利用马卡龙色,是空间更有特点,

江南甲第-122平-北欧风格-卧室.jpg 江南甲第-122平-北欧风格-卧室 (2).jpg

卧室重点在于灯光,明居暗室,主卧室可采用深色的背景墙,即又神秘又高档,呼应整体空间,看上去即活泼又温馨。

江南甲第-122平-北欧风格-卫生间.jpg

卫生间以实用为主 ,考虑卫生间的动线。使空间更大化,墙面搭配灰色的砖,使空间更加有层次感。从而使空间变的丰富多彩。

江南甲第-122平-北欧风格-厨房.jpg

开放式的厨房,整个厨房设计成西厨,做了一个大的岛台,因为业主不喜欢固定的餐桌,岛台也可以当餐桌。

江南甲第-122平-北欧风格-门厅.jpg

门厅位置有独立衣帽柜,这里我们将原有墙体拆除后向外侧移动一部分,可以加大衣帽柜的尺寸,既能储物而且还能坐着换鞋,实用方便。

江南甲第-122平-北欧风格-走廊.jpg 江南甲第-122平-北欧风格-户型图.jpg

案例设计师

林凤设计师

设计师:林凤设计师

从业时间:8年

设计理念:合理划分空间,让设计融入生活,营造自然,品味,格调。

预约设计师

算算你家装修多少钱

报名即享丰厚赠品,享半价装修

免费报价
咨询热线:400-656-9909
20190221103704574636.jpg

精品设计案例

20180612134930523248.jpg 服务号二维码.jpg