立即预约 立即预约
免费定制整装家居

免费定制整装家居

一站置家 全程无忧 一省到底
hide.png

当前位置: 首页 > 装修案例效果图 > 万锦香樟树

万锦香樟树 99平 北欧风格效果图

收藏
案例风格 北欧 案例户型 三居 案例面积 99平米
楼盘名称 万锦香樟树 设计师 林凤设计师 案例类型 婚房

设计理念:设计师整体设计理念:一个家,一段梦,一种心境,一种生活方式,发现最美的家,过诗一般的生活。
业主家庭情况及要求:业主是年轻人,目前两口之家,孩子即将诞生,要求空间宽敞温馨,采光性好,储物空间充足。

客厅
第1张
第2张
第3张
第4张
第5张
餐厅
第1张
卧室
第1张
第2张
第3张
第4张
卫生间
第1张
厨房
第1张
第2张
儿童房
第1张
第2张
第3张
衣帽间
第1张
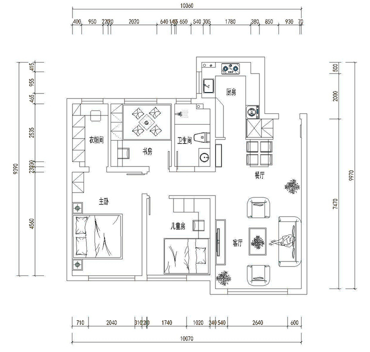
户型图
第1张
  • 案例详情

万锦香樟树-99平-北欧风格-客厅.jpg 万锦香樟树-99平-北欧风格-客厅3.jpg 万锦香樟树-99平-北欧风格-客厅2.jpg 万锦香樟树-99平-北欧风格-客厅4.jpg 万锦香樟树-99平-北欧风格-首图.jpg

沙发背景以米黄色为主而背景墙运用了比较有色彩感的淡绿色,布艺的三人位沙发搭配蓝色的单人位沙发舒适的同时不缺乏美感与设计感,客厅整体非常的舒适,舒适的同时也不缺乏色彩感。

万锦香樟树-99平-北欧风格-餐厅.jpg

餐厅家具采用原木色的餐桌与餐椅,搭配有色彩感的挂画,非常的温馨与舒适。

万锦香樟树-99平-北欧风格-榻榻米.jpg 万锦香樟树-99平-北欧风格-主卧.jpg 万锦香樟树-99平-北欧风格-榻榻米2.jpg 万锦香樟树-99平-北欧风格-主卧2.jpg

主卧整体以淡蓝色为主搭配原木色的家具,搭配上黄色的窗帘让整体颜色有一种非常强的冲击感,温馨的同时不缺乏舒适度与设计感。室内墙体以淡灰色为主,搭配白色的柜门,原木色的柜体,还有一个很大的电脑桌,以后也可以为孩子辅导功课,非常大的榻榻米偶尔来个客人也够住,同时也可以在榻榻米上喝茶聊天非常的惬意。

万锦香樟树-99平-北欧风格-卫生间.jpg 万锦香樟树-99平-北欧风格-厨房2.jpg 万锦香樟树-99平-北欧风格-厨房.jpg 万锦香樟树-99平-北欧风格-儿童房2.jpg 万锦香樟树-99平-北欧风格-儿童房.jpg 万锦香樟树-99平-北欧风格-儿童房3.jpg

因为客户孩子还没诞生所以儿童房整体以温馨为主,淡黄色的墙体搭配深蓝色的床体与白色的衣柜书桌,可以让孩子诞生之后有一个非常温馨舒适而又有趣的童年。

万锦香樟树-99平-北欧风格-衣帽间2.jpg 万锦香樟树-99平-北欧风格-户型图.jpg

案例设计师

林凤设计师

设计师:林凤设计师

从业时间:12年

设计理念:让设计成为艺术,让艺术进入生活。

预约设计师

算算你家装修多少钱

报名即享丰厚赠品,享半价装修

免费报价
咨询热线:400-656-9909
20190221103704574636.jpg

精品设计案例

20180612134930523248.jpg 服务号二维码.jpg