立即预约 立即预约
免费定制整装家居

免费定制整装家居

一站置家 全程无忧 一省到底
hide.png

当前位置: 首页 > 装修案例效果图 > 远洋大河宸章

远洋大河宸章 168平 现代简约风格效果图

收藏
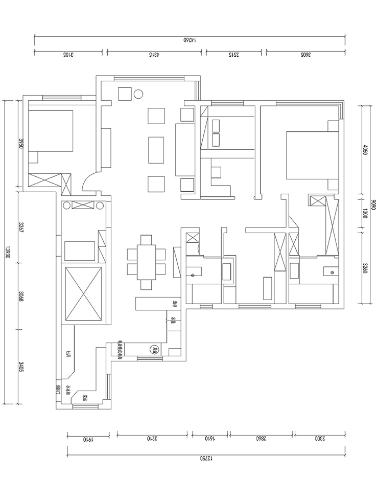
案例风格 现代简约 案例户型 三居 案例面积 168平米
楼盘名称 远洋大河宸章 设计师 白涵琦 案例类型 改善性住宅

设计理念:设计师整体设计理念:设计源于生活,细节成就品质。
业主家庭情况及要求:客户比较时尚,追求个性化,喜欢与众不同的感觉,因此设计时在棚面的吊顶、背景墙的运用、家具软装色彩的搭配上采用了别具一格的风格。

远洋大河宸章-168平-现代风格-客餐厅(7).jpg 远洋大河宸章-168平-现代风格-客餐厅(1).jpg 远洋大河宸章-168平-现代风格-客厅(4).jpg 远洋大河宸章-168平-现代风格-客厅(首图).jpg 远洋大河宸章-168平-现代风格-客厅(6).jpg 远洋大河宸章-168平-现代风格-客厅.jpg

2.充满线条感的造型棚与沙发背景墙相呼应,搭配直线感爆棚的家具,整体给人一种层次鲜明的立体感。电视背景墙采用大理石的材质搭配木纹理的饰面板与隐形门,给人一种浑然天成的感觉。

远洋大河宸章-168平-现代风格-餐厅.jpg 远洋大河宸章-168平-现代风格-餐厅(2).jpg 远洋大河宸章-168平-现代风格-餐厅(1).jpg

宽敞的就餐区,发挥度极大的岛台,搭配造型感极强的背景墙,极大的增添了人们的就餐体验,使人心情愉悦。餐厅区域造型棚与整体空间相呼应。

远洋大河宸章-168平-现代风格-主卧室(1).jpg 远洋大河宸章-168平-现代风格-主卧室.jpg 远洋大河宸章-168平-现代风格-次卧室.jpg 远洋大河宸章-168平-现代风格-次卧室(1).jpg 远洋大河宸章-168平-现代风格-榻榻米(1).jpg 远洋大河宸章-168平-现代风格-榻榻米.jpg

卧室空间背景墙位置采用的独特的拼接形式,繁而不乱,使人感觉眼前一亮。阳台区域采用弧形吊棚的形式,给人一种眼前一亮的感觉,独特又不是温度。次卧室空间采用量身定制的转角型衣柜,搭配上同等材质的实木床,通过材质的质感、挂画的搭配、墙面的配色、简洁的吊顶,整体为其营造出一种温馨、舒适的氛围。

远洋大河宸章-168平-现代风格-次卫.jpg 远洋大河宸章-168平-现代风格-次卫(1).jpg 远洋大河宸章-168平-现代风格-主卫(1).jpg 远洋大河宸章-168平-现代风格-主卫.jpg

厨房的橱柜采用木色的材质与整体家具风格想协调,完全按照其户型特点来定制,充分满足了客户功能性与美观的要求。

远洋大河宸章-168平-现代风格-厨房(1).jpg 远洋大河宸章-168平-现代风格-厨房.jpg 远洋大河宸章-168平-现代风格-岛台.jpg 远洋大河宸章-168平-现代风格-岛台(1).jpg 远洋大河宸章-168平-现代风格-书房(1).jpg 远洋大河宸章-168平-现代风格-书房.jpg 远洋大河宸章-168平-现代风格-衣帽间(1).jpg 远洋大河宸章-168平-现代风格-衣帽间(2).jpg 远洋大河宸章-168平-现代风格-衣帽间.jpg 远洋大河宸章-168平-现代风格-走廊(3).jpg 远洋大河宸章-168平-现代风格-走廊.jpg 远洋大河宸章-168平-现代风格-户型图.jpg

案例设计师

白涵琦

设计师:白涵琦

从业时间:10年

设计理念:设计实现客户家居梦想

预约设计师

算算你家装修多少钱

报名即享丰厚赠品,享半价装修

免费报价
咨询热线:400-656-9909
20190221103704574636.jpg

精品设计案例

20180612134930523248.jpg 服务号二维码.jpg