立即预约 立即预约
免费定制整装家居

免费定制整装家居

一站置家 全程无忧 一省到底
hide.png

当前位置: 首页 > 装修案例效果图 > 天坛小区

天坛小区 88平 现代简约风格效果图

收藏
案例风格 现代简约 案例户型 二居 案例面积 88平米
楼盘名称 天坛小区 设计师 林凤设计师 案例类型 改善性住宅

设计理念:本案设计整体以暖色系为主线,为业主打造一个时尚温馨的家。相信每个人心中都有自己对时尚的定义。家,舒适,这就是我认为的时尚,舒适,惬意,轻松,实用的“爱巢”。

客厅
第1张
第2张
餐厅
第1张
第2张
卧室
第1张
卫生间
第1张
第2张
厨房
第1张
过廊
第1张
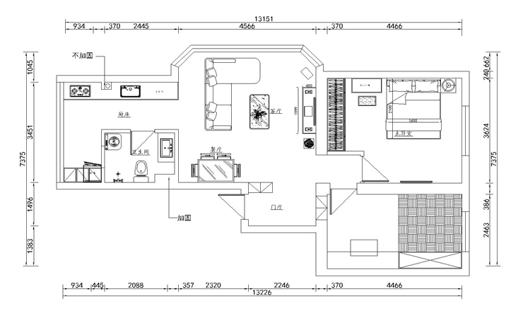
户型图
第1张
  • 案例详情

天坛小区-88㎡-现代风格-客厅1.jpg 天坛小区-88㎡-现代风格-客厅2.jpg

简洁明快的客厅让人心情愉悦,棚面采用直线条装饰,既干净整洁又互相呼应,搭上暖色系的地砖,灰色的沙发和套色电视柜,米黄色的电视背景墙,使得整个空间暖意十足。

天坛小区-88㎡-现代风格-餐厅.jpg 天坛小区-88㎡-现代风格-餐厅2.jpg

灰色和白色组成的餐桌与客厅的灰色沙发相互呼应,照片背景墙主色以黑色为主,显示客户的文化底蕴之深厚。

天坛小区-88㎡-现代风格-卧室1.jpg

卧室主要以灰白色为主,点缀暖色窗帘,整个空间给人以温馨舒适的感觉。

天坛小区-88㎡-现代风格-卫生间1.jpg 天坛小区-88㎡-现代风格-卫生间2.jpg

卫生间仍然采用暖黄色为主,白色洗手盆与理石纹理的台面,整体简洁大气,我舒服我实用。

天坛小区-88㎡-现代风格-厨房.jpg

本案是开放式厨房,上柜为白色门板为主,下柜以灰色为主,互相搭色仍以温馨为主,白色的墙砖,让整个厨房空间显示出通透明亮。

天坛小区-88㎡-现代风格-过廊1.jpg 天坛小区-88㎡-现代风格-平面图.jpg

案例设计师

林凤设计师

设计师:林凤设计师

从业时间:7年

设计理念:设计源于生活,生活映与本性

预约设计师

算算你家装修多少钱

报名即享丰厚赠品,享半价装修

免费报价
咨询热线:400-656-9909
20190221103704574636.jpg

精品设计案例

20180612134930523248.jpg 服务号二维码.jpg