立即预约 立即预约
免费定制整装家居

免费定制整装家居

一站置家 全程无忧 一省到底
hide.png

当前位置: 首页 > 装修案例效果图 > 雨润中央宫园

雨润中央宫园 108平 北欧风格效果图

收藏
案例风格 北欧 案例户型 二居 案例面积 108平米
楼盘名称 雨润中央宫园 设计师 林凤装饰设计师 案例类型 婚房

设计理念:本案是以北欧风格为主的设计。北欧风格以其简洁、自然、人性化的特点而闻名于世,拒绝使用一切纹样和图案装饰空间,仅仅用线条、色块来区分点缀,便创造了一份宁静、自然、实用的北欧风情

客厅
第1张
第2张
第3张
第4张
餐厅
第1张
卧室
第1张
厨房
第1张
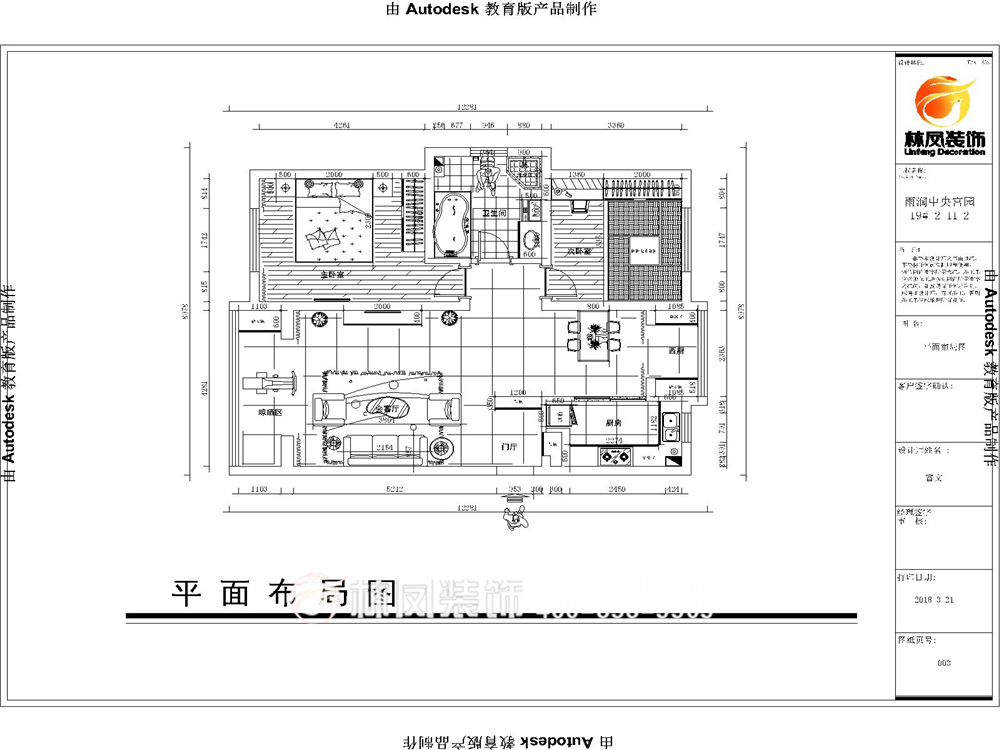
户型图
第1张
  • 案例详情

雨润中央宫园-北欧风格-108-客厅.jpg 雨润中央宫园-北欧风格-108-客厅4.jpg 雨润中央宫园-北欧风格-108-客厅 3.jpg 雨润中央宫园-北欧风格-108-客厅 2.jpg

客厅走的是北欧风,电视背景墙采用硅藻泥材质,既环保,又有纹理,颜色还可以随意调。搭配原木色电视柜,旁边点缀几盆绿植,错落有致,富有层次感。整个空间浅色调为主,奠定了干净的基调。灰色的布艺沙发搭配实木茶几,绿色的单植物给整体简洁素静的客厅加入活泼热情的氛围,清新的格调给人一种美好的感觉。

雨润中央宫园-北欧风格-108-餐厅.jpg

简单的铁艺吊灯内敛质朴,搭配胡桃木的餐桌,米色的皮质餐椅,雅致性感,从此每一次就餐都是一次轻松愉悦的体验。背景墙是 地板上墙绝对是颜值担当。

雨润中央宫园-北欧风格-108-卧室.jpg

卧室风格简单,色调和谐,并没有过多的装饰物和过于明艳的色彩,实木地板和床柜的搭配也使整体风格达到统一。灰色冷静又有安全感,有助于安心睡眠,一张简约的双人床,配上白色的窗帘,整个卧室显得温和朴素。

雨润中央宫园-北欧风格-108-厨房.jpg

为了减轻空间的视觉厚重感,在整体橱柜的色系选择上偏轻暖色,隐于墙的文艺白墙砖与正铺的浅灰大块地砖也不占据过多的视觉空间,整个厨房线条明朗、简化流通。

雨润中央宫园-北欧风格-108-户型图.jpg

案例设计师

林凤装饰设计师

设计师:林凤装饰设计师

从业时间:6年

设计理念:源于生活,生活因设计而改变!

预约设计师

算算你家装修多少钱

报名即享丰厚赠品,享半价装修

免费报价
咨询热线:400-656-9909
20190221103704574636.jpg

精品设计案例

20180612134930523248.jpg 服务号二维码.jpg