立即预约 立即预约
免费定制整装家居

免费定制整装家居

一站置家 全程无忧 一省到底
hide.png

当前位置: 首页 > 装修案例效果图 > 中体国际花园

中体国际花园 145平 现代简约风格效果图

收藏
案例风格 现代简约 案例户型 三居 案例面积 145平米
楼盘名称 中体国际花园 设计师 林凤设计师 案例类型 改善性住宅

设计理念:中体国际花园145平3居室林凤装饰的后现代风格是现在装修市场比较流行的一种家居风格,追求时尚与潮流,非常注重居室空间的布局与使用功能的完美结合。

客厅
第1张
第2张
餐厅
第1张
卧室
第1张
第2张
卫生间
第1张
厨房
第1张
户型图
第1张
  • 案例详情

中体国际花园-145平-后现代-客厅01.jpg 中体国际花园-145平-后现代-客厅02.jpg

中体国际花园145平2居室后现代风格的女主是一个特别爱干净的女人,喜欢浅色调的家具,同时要有一定的档次。故设计师挑选了现在流行的后现代家具,围绕家具的款式设计了吊顶及背景墙,营造了一个温馨大气的氛围。软装饰品的搭配,彰显精致得体。

中体国际花园-145平-后现代-餐厅.jpg

男主女主都热情好客,家里经常会有朋友过来吃饭,故有一个大大的餐厅是必要的。入户门正对餐厅,在设计上,在这对面的墙上设计了一组定制酒柜,增加了空间设计感。同时在另一面的墙上,设计了倒棱镜造型,增加空间感的同时,又在符合了风水上有招财的这种说法。

中体国际花园-145平-后现代-次卧室.jpg 中体国际花园-145平-后现代-主卧室.jpg

卧房设计说明:卧室的设计以浅色调为主,高档的家具,配以简洁的造型。为业主营造一个温馨感十足的空间。

中体国际花园-145平-后现代-卫生间.jpg

卫生间设计了干湿分离,功能合理划分,浅灰色墙地砖,整体干净大气。

中体国际花园-145平-后现代-厨房.jpg

原建筑厨房空间赠送一个阳台,阳台外扩之后,合并到厨房的空间里。两面的橱柜满足平时的操作需求,中间大大的岛台,可做于家里人多一起在厨房忙活的时候的一个过渡空间,同时增加了操作需求。

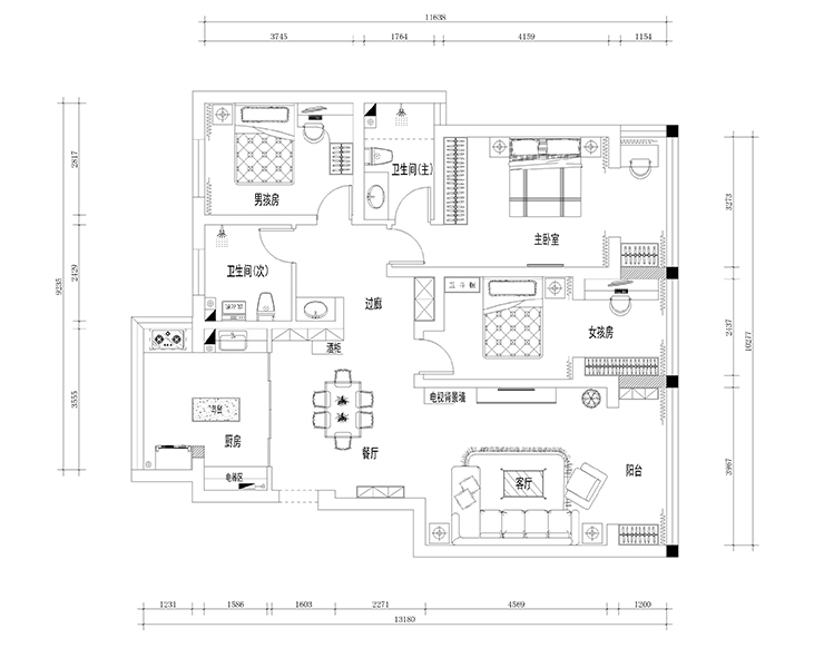
中体国际花园-145平-后现代-平面布置图.jpg

案例设计师

林凤设计师

设计师:林凤设计师

从业时间:5年

设计理念:设计不但要有整体性,更要突出实用性和舒适度,注重人体工程学。简单、实用、美观才是王道!

预约设计师

算算你家装修多少钱

报名即享丰厚赠品,享半价装修

免费报价
咨询热线:400-656-9909
20190221103704574636.jpg

精品设计案例

20180612134930523248.jpg 服务号二维码.jpg