立即预约 立即预约
免费定制整装家居

免费定制整装家居

一站置家 全程无忧 一省到底
hide.png

当前位置: 首页 > 装修案例效果图 > 浦江御景湾

浦江御景湾 105平 北欧风格效果图

收藏
案例风格 北欧 案例户型 二居 案例面积 105平米
楼盘名称 浦江御景湾 设计师 林凤装饰设计师 案例类型 改善性住宅

设计理念:北欧风格的装修现在也成为简洁风格装修的一种典型代表,北欧风格的装修没有过多冗杂的装饰和花纹,用一种最简单、直接、功能化且贴近自然的线条来表现其宁静的北欧风情,是一种后现代的极简风格。
此次设计师没有做过多的造型,空间大量留白,家具融入了一点原木色的调子,展现出一种朴素、清新的原始之美,代表着独特的北欧风格

客厅
第1张
第2张
第3张
第4张
餐厅
第1张
卧室
第1张
卫生间
第1张
厨房
第1张
书房
第1张
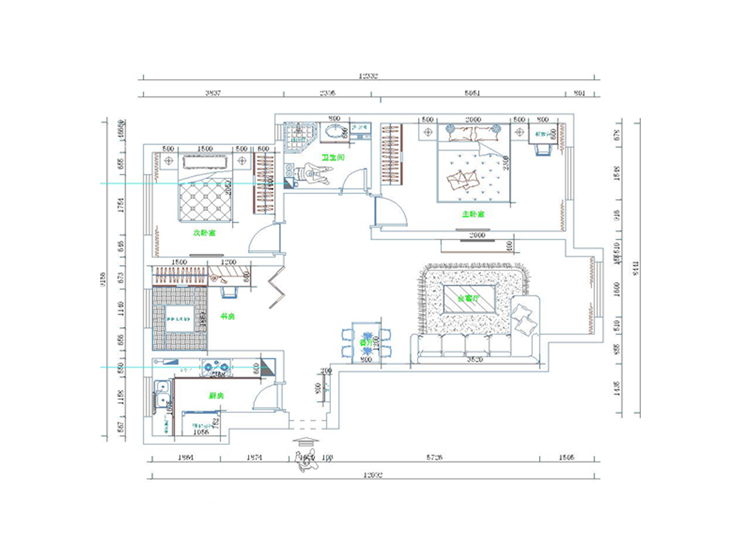
户型图
第1张
  • 案例详情

富文-浦江御景湾 105㎡ -北欧风格-客厅1.jpg 富文-浦江御景湾 105㎡ -北欧风格-客厅2.jpg 富文-浦江御景湾 105㎡ -北欧风格-客厅3.jpg 富文-浦江御景湾 105㎡ -北欧风格-背景墙.jpg

设计师在被简意包裹的客厅空间里,客厅采用了以文化石做电视背景墙,两种不同材质的视觉碰撞。搭配浅色布艺软装,整体给人安静沉稳的感觉,还带有一些文艺范。从灰色布艺沙发的优美轮廓、纯白茶几的三角型、黄色边几底座的直线,再到背景墙上四幅方正的挂画,完整地凸显了空间美感。

富文-浦江御景湾 105㎡ -北欧风格-餐厅.jpg

设计师以淡黄色为墙面打底,再以文艺白和原木色作为空间主导,清爽简洁又颇具生活质感。餐厅格局方正,以淡黄色作为打底呈现一种静雅之感,而与客厅想通的,则成了提升空间灵动性、增加互动感与神秘感的点睛之笔。在处理餐厅空间时,着重强调室内的宽敞与通透感,所以采取一体化空间设计手法。

富文-浦江御景湾 105㎡ -北欧风格-卧室.jpg

设计师以温和的软装配色将卧室打磨得更为温婉柔和在极简主义的主卧里,电视柜上面的绿色花瓶,恰如其分地点缀了空间。当然,收纳也是主卧的重中之重,定制的整面衣柜,完全满足主人的储物需求,而且还能够将不同季节、不同款式的衣物进行分类,十分便利省心。

富文-浦江御景湾 105㎡ -北欧风格-卫生间.jpg

浅灰墙面、白色瓷砖与原木浴室柜将空间分割成三部分,空间内的浴室柜、镜子、洗手盆与挂饰框却以各自的几何线条,在简约中绽放。淋雨区和洗手盆区域的划分又将空间美感表达得淋漓尽致。

富文-浦江御景湾 105㎡ -北欧风格-橱柜.jpg

厨房就在入户左侧,从这个角度,便能更清晰地一览入户的格局布置,简洁、直接、功能化且贴近自然。U型橱柜的延展性就得到了拓展,女主人进行烹饪作业时,操作面就更广了。 即便家里来上一两个客人,需要一同烹饪,大大的厨房操作台也完全能够满足需求。 值得一提的是,厨房的其封窗设计巧妙地使洗手间的窗户得以保留;让整个厨房空间温馨备至。

富文-浦江御景湾 105㎡ -北欧风格-书房.jpg 富文-浦江御景湾 105㎡ -北欧风格-平面图.jpg

案例设计师

林凤装饰设计师

设计师:林凤装饰设计师

从业时间:6年

设计理念:源于生活,生活因设计而改变!

预约设计师

算算你家装修多少钱

报名即享丰厚赠品,享半价装修

免费报价
咨询热线:400-656-9909
20190221103704574636.jpg

精品设计案例

20180612134930523248.jpg 服务号二维码.jpg