立即预约 立即预约
免费定制整装家居

免费定制整装家居

一站置家 全程无忧 一省到底
hide.png

当前位置: 首页 > 装修案例效果图 > 中海和平之门

中海和平之门 87平 现代简约风格效果图

收藏
案例风格 现代简约 案例户型 二居 案例面积 87平米
楼盘名称 中海和平之门 设计师 林凤装饰设计师 案例类型 婚房

设计理念:本案是现代风格,以干净简洁的灰白色为主色调,以简洁的质感和小面积的鲜艳彩色点缀,提高了空间的层次感。

客厅
第1张
第2张
第3张
第4张
餐厅
第1张
第2张
第3张
卧室
第1张
卫生间
第1张
厨房
第1张
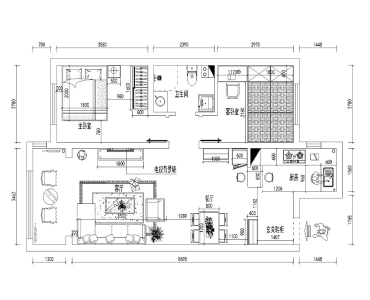
户型图
第1张
  • 案例详情

中海和平之门-87平-现代风格-客厅 (1).jpg 中海和平之门-87平-现代风格-客厅 (2).jpg 中海和平之门-87平-现代风格-客厅 (3).jpg 中海和平之门-87平-现代风格-客厅 (4).jpg

客厅的电视背景墙采用了双层石膏板装饰线做造型框的形式中间搭配黑色镜片,中心满铺纯色做旧效果壁纸,灰色的主体墙面与同一平面上的电视背景墙造型产生明暗对比。黑白灰的搭配使得同一平面在深浅明暗与空间上产生差异,拉伸整个空间的视觉效果。

中海和平之门-87平-现代风格-餐厅 (1).jpg 中海和平之门-87平-现代风格-餐厅 (2).jpg 中海和平之门-87平-现代风格-餐厅 (3).jpg

餐桌采用了原木质感的方形四人餐桌,灰白色的绒布餐椅搭配木质餐桌给人质朴纯洁的感觉。

中海和平之门-87平-现代风格-卧室.jpg

整体墙面淡蓝色乳胶漆,棚顶加宽石膏线,抬高整个空间的视觉效果,柠檬黄色铁艺床头柜搭配白色与灰色床品布艺,提高了整个卧室的质感。

中海和平之门-87平-现代风格-卫生间.jpg

采用了深灰色大理石纹理瓷砖,搭配白色洁具与原木色浴室柜,淋浴区做的干湿分离玻璃浴屏。

中海和平之门-87平-现代风格-厨房.jpg

整体瓷砖选用了灰白色理石纹理横向铺贴的方式,橱柜选用了纯白哑光材质,与灰白色墙面对比明显,整个空间给人一种干净整洁的感觉。

中海和平之门-87平-现代风格-平面图.jpg

案例设计师

林凤装饰设计师

设计师:林凤装饰设计师

从业时间:8年

设计理念:在确保满足使用功能的前提下,达到审美效果的最大化。

预约设计师

算算你家装修多少钱

报名即享丰厚赠品,享半价装修

免费报价
咨询热线:400-656-9909
20190221103704574636.jpg

精品设计案例

20180612134930523248.jpg 服务号二维码.jpg