立即预约 立即预约
免费定制整装家居

免费定制整装家居

一站置家 全程无忧 一省到底
hide.png

当前位置: 首页 > 装修案例效果图 > 华润幸福里

华润幸福里 135平 现代简约风格效果图

收藏
案例风格 现代简约 案例户型 三居 案例面积 135平米
楼盘名称 华润幸福里 设计师 林凤装饰设计师 案例类型 改善性住宅

设计理念:本案以简美风格设计,温洁而不失典雅,端庄又温馨。整体色调一暖色为主,蓝色元素不时点缀这空间,让空间也有了更多活力。

客厅
第1张
第2张
第3张
餐厅
第1张
卧室
第1张
卫生间
第1张
厨房
第1张
门厅
第1张
第2张
过廊
第1张
第2张
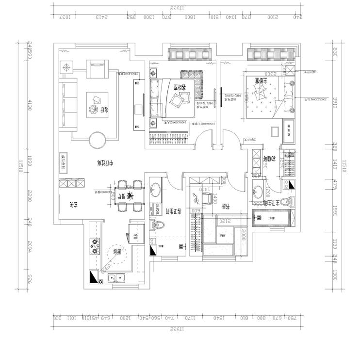
户型图
第1张
  • 案例详情

华润幸福里-135平-简美风格-客厅1.jpg 华润幸福里-135平-简美风格-客厅2.jpg 华润幸福里-135平-简美风格-客厅3.jpg

我们采用暖色系的地板地面,与背景墙的温暖灯光遥相呼应。更好的衬托了客厅空间的宽敞明亮。沙发我们选择的是布艺纯灰色简约风格,浅蓝色地毯,淡绿色窗帘,灰黄色吊灯,颜色层次渐进,和谐一体,浑然天成。给您一个优质的待客会友体验。

华润幸福里-135平-简美风格-餐厅.jpg

餐厅是家居生活的心脏,经过与客户沟通。保持了实用性,另外餐厅灯光我们也做了调光处理,以温馨的柔黄色为基调,在餐厅与客厅之间放了个屏风,既保持了空间的完整性,又不失通透性。

华润幸福里-135平-简美风格-卧室.jpg

由于整体户型原因,厨房面积不是很大,但是我们将油烟机以上位置及案台下面一圈都做了柜子,保证整体的整洁性,又满足了房主要求的多储存空间,在厨房进口也安置了无挡板置物架,可以展示女主人喜欢的厨房用具。

华润幸福里-135平-简美风格-卫生间.jpg

卫生间就是采用极简的黑白灰三种色,整体就是干净整洁为主。

华润幸福里-135平-简美风格-厨房.jpg

由于整体户型原因,厨房面积不是很大,但是我们将油烟机以上位置及案台下面一圈都做了柜子,保证整体的整洁性,又满足了房主要求的多储存空间,在厨房进口也安置了无挡板置物架,可以展示女主人喜欢的厨房用具。

华润幸福里-135平-简美风格-门厅1.jpg 华润幸福里-135平-简美风格-门厅2.jpg 华润幸福里-135平-简美风格-走廊1.jpg 华润幸福里-135平-简美风格-走廊2.jpg 华润幸福里-135平-简美风格-布局图.jpg

案例设计师

林凤装饰设计师

设计师:林凤装饰设计师

从业时间:8年

设计理念:设计源于生活,细节成就品质

预约设计师

算算你家装修多少钱

报名即享丰厚赠品,享半价装修

免费报价
咨询热线:400-656-9909
20190221103704574636.jpg

精品设计案例

20180612134930523248.jpg 服务号二维码.jpg