立即预约 立即预约
免费定制整装家居

免费定制整装家居

一站置家 全程无忧 一省到底
hide.png

当前位置: 首页 > 装修案例效果图 > 上海西山雅居

上海西山雅居 67平 现代简约风格效果图

收藏
案例风格 现代简约 案例户型 一居 案例面积 67平米
楼盘名称 上海西山雅居 设计师 林凤装饰精英设计师 案例类型 婚房

设计理念:本案整体色调延续现代轻奢黑.白.灰三大对比色。大面积灰色以及白色与黑色的局部点缀使得整体空间科技奢华感十足。由于本案户型空间较局促因此在客厅空间采取双组合柜体结构,这样的搭配使得空间使用率更高且不会对整体空间产生影响。

客厅
第1张
第2张
餐厅
第1张
卧室
第1张
第2张
卫生间
第1张
厨房
第1张
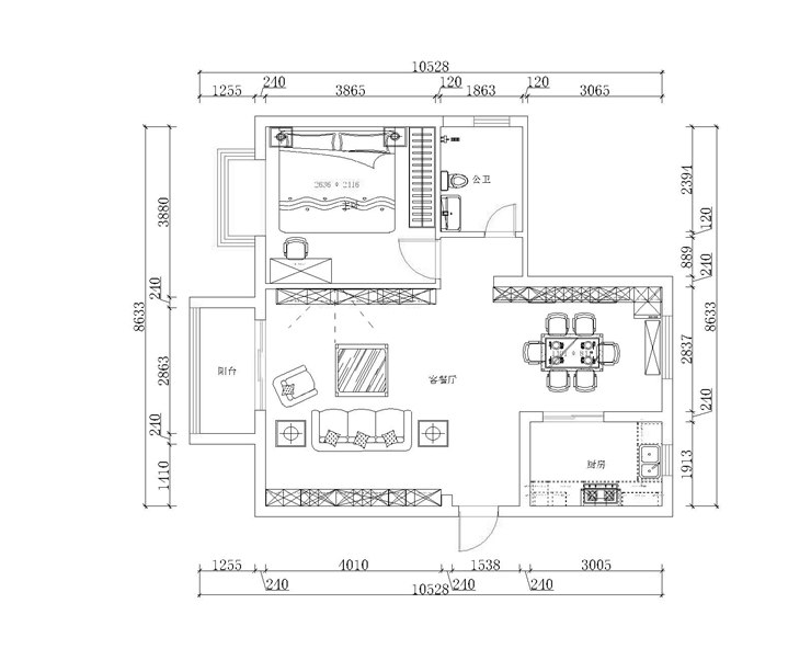
户型图
第1张
  • 案例详情

A主图-客厅.jpg 客厅.jpg

本案整体色调延续现代轻奢黑.白.灰三大对比色。大面积灰色以及白色与黑色的局部点缀使得整体空间科技奢华感十足。由于本案户型空间较局促因此在客厅空间采取双组合柜体结构,这样的搭配使得空间使用率更高且不会对整体空间产生影响。

餐厅.jpg

餐厅同样延续客厅的设计结构主线。高效分割空间利用柜体结构增加储物能力。不仅奢华而且实用。

卧室.jpg 卧室2.jpg

卧室采用黑白灰三色为主体基调,充分体现出现代轻奢风的空间质感

卫生间.jpg

卫生间色调使用卡宾色为整体环境色,既高档又不失材质空间质感。

厨房.jpg

厨房使用白色橱柜为主体元素配合灰色系纵向纹路墙体材质使得整个空间既充满质感又不失空间设计弹性。

施工图(平面图)20190220005614-模型.jpg

案例设计师

林凤装饰精英设计师

设计师:林凤装饰精英设计师

从业时间:9年

设计理念:设计是一种手段,通过它们可以表达并且随时更新自己的灵感和方向

预约设计师

算算你家装修多少钱

报名即享丰厚赠品,享半价装修

免费报价
咨询热线:400-656-9909
20190221103704574636.jpg

精品设计案例

20180612134930523248.jpg 服务号二维码.jpg