立即预约 立即预约
免费定制整装家居

免费定制整装家居

一站置家 全程无忧 一省到底
hide.png

当前位置: 首页 > 装修案例效果图 > 龙湖唐宁one

龙湖唐宁one 156平 美式风格效果图

收藏
案例风格 美式 案例户型 四居 案例面积 156平米
楼盘名称 龙湖唐宁one 设计师 魏东超 案例类型 婚房

设计理念:内敛的质感,圆润温暖的色调和装饰,简美风格传达了那种非常质朴又很充实的感觉。简美风格舍弃传统美式不必要的装饰元素追求简洁大方同时又不失质感与愉悦色彩。与传统风格相比,简美风格直白的装饰语言更体现空间和家具营造的氛围。

客厅
第1张
第2张
第3张
餐厅
第1张
卧室
第1张
第2张
第3张
卫生间
第1张
第2张
第3张
厨房
第1张
阳台
第1张
衣帽间
第1张
过廊
第1张
第2张
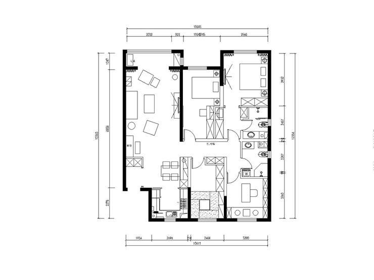
户型图
第1张
龙湖唐宁one-156平-简美风格-客厅.jpg 龙湖唐宁one-156平-简美风格-客厅2.jpg 龙湖唐宁one-156平-简美风格-客厅3.jpg

客厅家具采用了最新款皮质3+2类型沙发,浅灰色的大理石纹理地砖搭配高级浅米色乳胶漆背景墙,挂画的点缀也至关重要,搭配了金属拉丝质感的挂画边框来烘托整体的质感需求,与电视柜上饰品相互响应,沙发背景墙采用的乳白护墙板是客厅的点睛之处,不仅增添了档次也具有实用性。

龙湖唐宁one-156平-简美风格-餐厅.jpg

餐厅选择了具有传统美式特点的餐桌,侧面定制了储物以及展示功能强的酒柜,搭配的电器柜巧妙的融入了整体风格,嵌入式的蒸烤箱既满足了实用性也达到了美观性,餐吊与客厅吊灯样式相呼应烘托了气氛。

龙湖唐宁one-156平-简美风格-次卧.jpg 龙湖唐宁one-156平-简美风格-主卧.jpg 龙湖唐宁one-156平-简美风格-榻榻米.jpg

主卧室说明:.主卧背景墙采用了高级灰式乳胶漆,采用藏蓝与帝黄撞色窗帘点缀红胡桃实木床,木纹理凹凸较明显的实木地板突出美式风格的特点,卧室的设计是对居住者来说是至关重要的一项,设计改善的不仅仅是格局问题,也关乎审美以及生活方式,以此为初衷打造了温馨舒心贴心的卧室。

龙湖唐宁one-156平-简美风格-卫生间.jpg 龙湖唐宁one-156平-简美风格-卫生间2.jpg 龙湖唐宁one-156平-简美风格-卫生间3.jpg

卫生间的拆改不是特别大,钻石型浴屏使空间干湿分离,符合整体风格的洗手盆彰显出了细节的处理,考虑通风,动线明确,墙砖设计的腰线增添了别一番美式韵味。

龙湖唐宁one-156平-简美风格-厨房.jpg 龙湖唐宁one-156平-简美风格-阳台.jpg 龙湖唐宁one-156平-简美风格-衣帽间.jpg 龙湖唐宁one-156平-简美风格-过廊 (2).jpg 龙湖唐宁one-156平-简美风格-过廊.jpg 龙湖唐宁one-156平-简美风格-户型图.jpg

案例设计师

魏东超

设计师:魏东超

从业时间:14年

设计理念:在有限的空间里创造无限的可能

预约设计师

算算你家装修多少钱

报名即享丰厚赠品,享半价装修

免费报价
咨询热线:400-656-9909
20190221103704574636.jpg

精品设计案例

20180612134930523248.jpg 服务号二维码.jpg