立即预约 立即预约
免费定制整装家居

免费定制整装家居

一站置家 全程无忧 一省到底
hide.png

当前位置: 首页 > 装修案例效果图 > 金水花城

金水花城 108平 现代简约风格效果图

收藏
案例风格 现代简约 案例户型 二居 案例面积 108平米
楼盘名称 金水花城 设计师 林凤设计师 案例类型 改善性住宅

设计理念:金水花城108平2居室现代简约风格林凤装饰的设计整体以简洁,干练为主导,为业主打造一个自然舒适,干净之美的家。

客厅
第1张
第2张
第3张
餐厅
第1张
卧室
第1张
第2张
卫生间
第1张
第2张
厨房
第1张
第2张
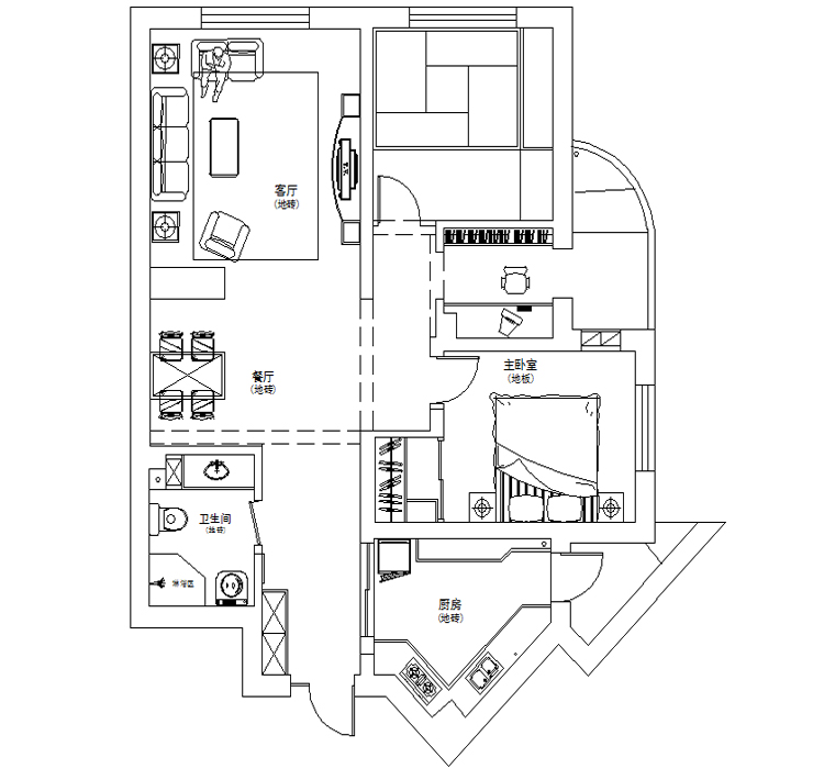
户型图
第1张
  • 案例详情

金水花城-108平-现代风格-客厅2图.jpg 金水花城-108平-现代风格-客厅图.jpg 金水花城-108平-现代风格-首图.jpg

金水花城108平2居室现代简约林凤装饰以简洁明快的客厅让人心情愉悦,棚面采用简约边棚配以黄色虚光装饰,既干净整洁又氛围柔和,搭上暖黄色的地砖,淡黄色的布艺沙发和白色电视柜,石膏线造型制作的壁纸和茶镜的电视背景墙,使得整个空间简洁,细节完美,时尚前卫。

金水花城-108平-现代风格-餐厅图.jpg

金水花城108平2居室现代简约林凤装饰以白色和木色组成的餐桌和吧台与客厅的淡黄色沙发相互呼应,照片背景墙主色以黑色和白色为主,显示客户的年轻及时尚。

金水花城-108平-现代风格-次卧室2图.jpg 金水花城-108平-现代风格-次卧室图.jpg

金水花城108平2居室现代简约林凤装饰的卧室主要以淡黄色为主,与棕色窗帘温暖搭配,整个空间给人以温馨舒适的感觉。

金水花城-108平-现代风格-卫生间2图.jpg 金水花城-108平-现代风格-卫生间图.jpg

金水花城108平2居室现代简约林凤装的卫生间采用黄色为主,浅咖色洗手盆与理石纹理的台面结合,简约大气。

金水花城-108平-现代风格-厨房2图.jpg 金水花城-108平-现代风格-厨房图.jpg

金水花城108平2居室现代简约林凤装饰的案例是封闭式厨房,厨柜采用浅咖色门板,米黄色的墙砖,让整个厨房空间简洁,干净。

金水花城-108平-现代风格-户型图.jpg

案例设计师

林凤设计师

设计师:林凤设计师

从业时间:10年

设计理念:以人为本

预约设计师

算算你家装修多少钱

报名即享丰厚赠品,享半价装修

免费报价
咨询热线:400-656-9909
20190221103704574636.jpg

精品设计案例

20180612134930523248.jpg 服务号二维码.jpg