立即预约 立即预约
免费定制整装家居

免费定制整装家居

一站置家 全程无忧 一省到底
hide.png

当前位置: 首页 > 装修案例效果图 > 中铁香湖

中铁香湖 85平 北欧风格效果图

收藏
案例风格 北欧 案例户型 二居 案例面积 85平米
楼盘名称 中铁香湖 设计师 林凤设计师 案例类型 改善性住宅

设计理念:中铁香湖85平2居室北欧风格林凤装饰设计整体以简洁,干练为主导,为业主打造一个自然舒适,干净之美的家。

客厅
第1张
第2张
餐厅
第1张
第2张
卧室
第1张
第2张
卫生间
第1张
厨房
第1张
第2张
门厅
第1张
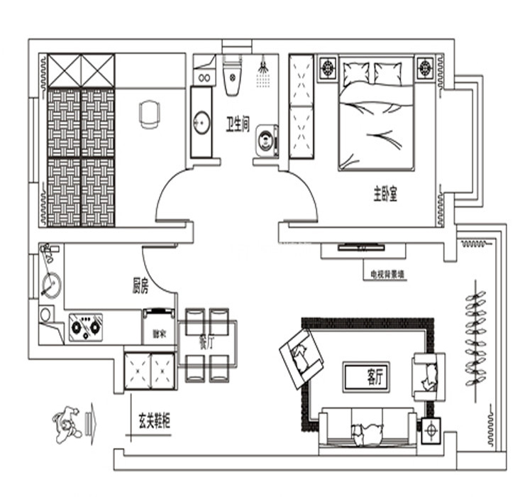
户型图
第1张
  • 案例详情

中铁香湖-85平-北欧风格-客厅图.jpg 中铁香湖-85平-北欧风格-客厅2图.jpg

中铁香湖85平2居室北欧风格林凤装饰以简洁明快的客厅让人心情愉悦,棚面采用直线条装饰,既干净整洁又互相呼应,搭上淡灰色的地砖,墨绿色的布艺沙发和胡桃色电视柜,白色的电视背景墙,使得整个空间简洁明朗,干净时尚。

中铁香湖-85平-北欧风格-餐厅2图.jpg 中铁香湖-85平-北欧风格-餐厅图.jpg

中铁香湖85平2居室北欧风格林凤装饰的餐厅以胡桃色和墨绿色组成的餐桌与客厅的墨绿色沙发相互呼应,照片背景墙主色以黑色为主,显示客户的年轻及时尚。

中铁香湖-85平-北欧风格-次卧室图.jpg 中铁香湖-85平-北欧风格-主卧室图.jpg

中铁香湖85平2居室北欧风格林凤装饰的主卧室主要以淡灰色为主,与粉色窗帘温暖搭配,整个空间给人以温馨舒适的感觉。次卧室主要以白色为主,点缀白色窗帘,整个空间给人以简单干净的感觉。

中铁香湖-85平-北欧风格-卫生间图.jpg

中铁香湖85平2居室北欧风格林凤装饰的卫生间采用蓝色为主,白色洗手盆与理石纹理的台面结合,简约大气。

中铁香湖-85平-北欧风格-厨房2图.jpg 中铁香湖-85平-北欧风格-厨房图.jpg

中铁香湖85平2居室北欧风格林凤装饰的是封闭式厨房,厨柜采用白色门板,米色的墙砖,让整个厨房空间简洁,干净。

中铁香湖-85平-北欧风格-门厅图.jpg 中铁香湖-85平-北欧风格-户型图.jpg

案例设计师

林凤设计师

设计师:林凤设计师

从业时间:10年

设计理念:以人为本

预约设计师

算算你家装修多少钱

报名即享丰厚赠品,享半价装修

免费报价
咨询热线:400-656-9909
20190221103704574636.jpg

精品设计案例

20180612134930523248.jpg 服务号二维码.jpg