立即预约 立即预约
免费定制整装家居

免费定制整装家居

一站置家 全程无忧 一省到底
hide.png

当前位置: 首页 > 装修案例效果图 > 金地铁西檀府

金地铁西檀府 103平 现代简约风格效果图

收藏
案例风格 现代简约 案例户型 三居 案例面积 103平米
楼盘名称 金地铁西檀府 设计师 林凤设计师 案例类型 改善性住宅

设计理念:现代风格,一种简约又不失时尚的美。简约而不简单,是现代设计风格的主流。

客厅
第1张
第2张
第3张
第4张
第5张
餐厅
第1张
第2张
第3张
卧室
第1张
卫生间
第1张
厨房
第1张
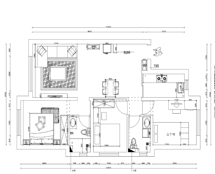
户型图
第1张
  • 案例详情

金地铁西檀府-103平-现在风格-客厅 (2).jpg 金地铁西檀府-103平-现在风格-客厅 (1).jpg 金地铁西檀府-103平-现在风格-客厅 (3).jpg 首图.jpg 金地铁西檀府-103平-现在风格-客厅 (4).jpg

金地铁西檀府103平3居室现代风格林凤装饰的客厅属于现代风格,整体色系淡雅,简约,基础色为白色,电视柜和茶几家具类采用深色。深浅搭配,增添空间感。

金地铁西檀府-103平-现在风格-餐厅 (1).jpg 金地铁西檀府-103平-现在风格-餐厅 (2).jpg 金地铁西檀府-103平-现在风格-餐厅 (3).jpg

金地铁西檀府103平3居室现代风格林凤装饰的餐厅的设计主要在于餐桌背后的照片墙,简单大气的九小画,是与客厅照相呼应。高端上档次。

金地铁西檀府-103平-现在风格-卧室.jpg

金地铁西檀府103平3居室现代风格林凤装饰的主卧室作为起居室,还是一如既往的温馨路线。高软包的床头,在休闲看书的时候格外舒适,窗帘也是采用暖色,增加温馨感觉。

金地铁西檀府-103平-现在风格-卫生间.jpg

金地铁西檀府103平3居室现代风格林凤装饰的卫生间的设计,则与客厅对比明显,选用了灰色系,给你不一样的感觉。大块的理石砖,大气,刚性十足。

金地铁西檀府-103平-现在风格-厨房.jpg

金地铁西檀府103平3居室现代风格林凤装饰的厨房墙砖采用黄色理石纹理,搭配原木爱家板橱柜,温馨感十足。

金地铁西檀府-103平-现在风格-平面图.png

案例设计师

林凤设计师

设计师:林凤设计师

从业时间:7年

设计理念:合理划分空间,让设计融入生活。

预约设计师

算算你家装修多少钱

报名即享丰厚赠品,享半价装修

免费报价
咨询热线:400-656-9909
20190221103704574636.jpg

精品设计案例

20180612134930523248.jpg 服务号二维码.jpg