立即预约 立即预约
免费定制整装家居

免费定制整装家居

一站置家 全程无忧 一省到底
hide.png

当前位置: 首页 > 装修案例效果图 > 和平之门

和平之门 85平 北欧风格效果图

收藏
案例风格 北欧 案例户型 二居 案例面积 85平米
楼盘名称 和平之门 设计师 仲崇彤 案例类型 改善性住宅

设计理念:现如今大多数年轻人都比较追求极简主义,主张自由,大胆,崇尚简单,但又不能失去特点,北欧风格可以说是现在年轻人的主流.

客厅
第1张
第2张
第3张
第4张
餐厅
第1张
第2张
卧室
第1张
卫生间
第1张
厨房
第1张
户型图
第1张
  • 案例详情

中海和平之门-85平-北欧风格-客厅 (2).jpg 中海和平之门-85平-北欧风格-客厅.jpg 中海和平之门-85平-北欧风格-客厅 (3).jpg 中海和平之门-85平-北欧风格-首图.jpg

和平之门85平2居室北欧风格林凤装饰的客厅电视的背景的选用乳胶漆套色,充分表达了现在年轻人崇尚的自由主义,原木色的家具给整个空间增添色彩,给整个级简的空间,增添了一丝活跃.

中海和平之门-85平-北欧风格-餐厅 (2).jpg 中海和平之门-85平-北欧风格-餐厅 (4).jpg

和平之门85平2居室北欧风格林凤装饰的餐厅的依次吊灯,装饰画的黄颜色于其它空间形成了一个明显的过渡.

中海和平之门-85平-北欧风格-卧室.jpg

和平之门85平2居室北欧风格林凤装饰的主卧室相对而言就显得简单明了,原木色与白色相结合,淡淡的蓝颜色,使整体温馨而舒适.

中海和平之门-85平-北欧风格-卫生间.jpg

和平之门85平2居室北欧风格林凤装饰的卫生间真正的凸现了北欧风格的简约不简单,灰色的瓷砖黑色的沟缝,那样明显的对比,也显示出年轻人的独有风格.`

中海和平之门-85平-北欧风格-厨房.jpg

和平之门85平2居室北欧风格林凤装饰的厨房白色的橱柜,灰色的理石台面,更佳的凸显北风风格时尚感与年轻化!

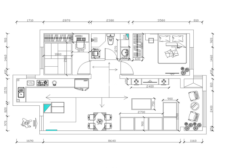
中海和平之门-85平-北欧风格-平面图.jpg

案例设计师

仲崇彤

设计师:仲崇彤

从业时间:15年

设计理念:设计就是着重于点、线、面的灵活运用,把整个环境营造出家的温馨。

预约设计师

算算你家装修多少钱

报名即享丰厚赠品,享半价装修

免费报价
咨询热线:400-656-9909
20190221103704574636.jpg

精品设计案例

20180612134930523248.jpg 服务号二维码.jpg