立即预约 立即预约
免费定制整装家居

免费定制整装家居

一站置家 全程无忧 一省到底
hide.png

当前位置: 首页 > 装修案例效果图 > 金水花城

金水花城 99平 现代简约风格效果图

收藏
案例风格 现代简约 案例户型 二居 案例面积 99平米
楼盘名称 金水花城 设计师 林凤设计师 案例类型 改善性住宅

设计理念:金水花城99平2居室现代轻奢风格林凤装饰设计师先充分了解客户的生活诉求和喜欢的风格后,对整个家庭结构作为综合,以实用为主,美貌为辅。结合实际来分析每个空间的储存性。建造出优化的空间形态,为客户提供舒适、实用的生活环境。

客厅
第1张
第2张
第3张
餐厅
第1张
第2张
卧室
第1张
卫生间
第1张
厨房
第1张
儿童房
第1张
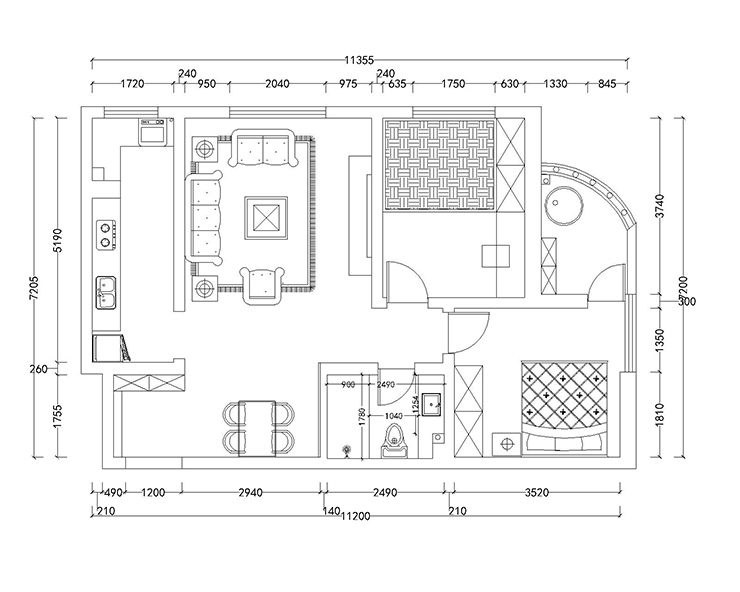
户型图
第1张
  • 案例详情

金水花城-99平-现代轻奢风格-客厅1.jpg 金水花城-99平-现代轻奢风格-客厅2.jpg 金水花城-99平-现代轻奢风格-首图.jpg

金水花城99平2居室现代轻奢风格林凤装饰的客厅整体墙面使用灰色乳胶漆,整个空间的特点在电视背景墙的位置,采用地砖上墙的手法与金属线条相结合,营造出轻奢舒适的氛围。在整体的软装搭配中使用跳跃的黄色座椅以及金属元素的茶几点缀,吊灯的搭配也很重要,使空间充满活力。

金水花城-99平-现代轻奢风格-餐厅1.jpg 金水花城-99平-现代轻奢风格-餐厅2.jpg

金水花城99平2居室现代轻奢风格林凤装饰的餐厅部分顶面与地面相呼应的设计手法来划分整个空间。使整个空间以现代轻奢为主,餐厅部分并没有过多的设计复杂造型,墙面装饰黄黑抽象挂画也是使与客厅空间相呼应。

金水花城-99平-现代轻奢风格-卧室.jpg

金水花城99平2居室现代轻奢风格林凤装饰的卧室主题以灰色系为主,颜色色系黑白灰使主卧安静舒适,在卧室背景墙上运用硬包的设计,使墙面更有层次感。地面采用现代灰棕色系强化复合地板,耐用耐磨,好打理。

金水花城-99平-现代轻奢风格-卫生间.jpg

金水花城99平2居室现代轻奢风格林凤装饰的卫生间地面与墙面使用文化石纹理的瓷砖设计,使整体得以协调,卫生间以干湿分离的形式展现。

金水花城-99平-现代轻奢风格-厨房.jpg

金水花城99平2居室现代轻奢风格林凤装饰的厨房的储物空间也是必不可少的,充分利用地柜吊柜的空间,使用白色烤漆面板,它有很强的视觉冲击力,美观又时尚而且防水性能强,抗污能力强,易打理。

金水花城-99平-现代轻奢风格-儿童房.jpg 金水花城-99平-现代轻奢风格-平面布局图.jpg

案例设计师

林凤设计师

设计师:林凤设计师

从业时间:8年

设计理念:设计界的一股清流,设计走心最重要。

预约设计师

算算你家装修多少钱

报名即享丰厚赠品,享半价装修

免费报价
咨询热线:400-656-9909
20190221103704574636.jpg

精品设计案例

20180612134930523248.jpg 服务号二维码.jpg