立即预约 立即预约
免费定制整装家居

免费定制整装家居

一站置家 全程无忧 一省到底
hide.png

当前位置: 首页 > 装修案例效果图 > 湖畔家园

湖畔家园 230平 港式风格效果图

收藏
案例风格 港式 案例户型 四居 案例面积 230平米
楼盘名称 湖畔家园 设计师 林凤设计师 案例类型 改善性住宅

设计理念:湖畔家园230平港式风格林凤装饰的客户经常出差喜欢住在酒店的感觉,本案是230平的四居室户型面积比较大,格局相对不错,通透亮堂,风格选择了港式风.

客厅
第1张
第2张
餐厅
第1张
卧室
第1张
第2张
卫生间
第1张
第2张
厨房
第1张
门厅
第1张
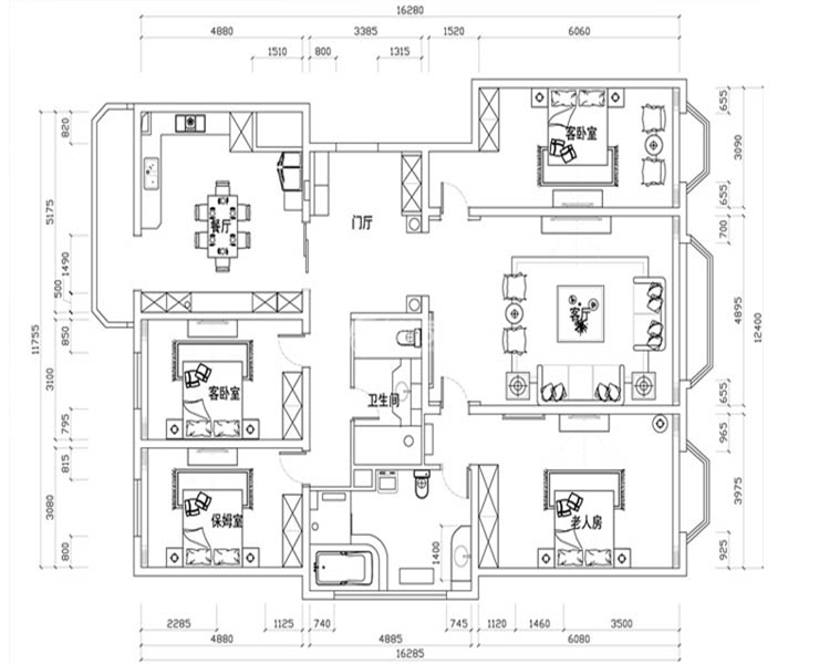
户型图
第1张
  • 案例详情

湖畔家园-230平-港式混搭风格-客厅1.jpg 湖畔家园-230平-港式混搭风格-首图.jpg

湖畔家园230平4居室港式风格林凤装饰的客厅整体采用了暗色调,米黄色大理石地砖,棕红色的木质材料,明度不高的褐色丝绒硬包,以及白色系的沙发和灰色系的花纹地毯...而在这些暗色调面积上行走和形成对比的点缀物,是大理石和金属饰品的不断运用。电视墙的金属线条及理石,边柜上的金属台灯...这些线条和石材分割并点缀着各个暗色系的区域,同时也增加了空间的奢华感!

湖畔家园-230平-港式混搭风格-餐厅及厨房.jpg

湖畔家园230平4居室港式风格林凤装饰的餐厅米色布艺餐椅配合大理石餐台,尽显雍容,中西厨操作餐台,展示业主精致的个人生活,有情趣才有家。有讲究才有品味。柜体设计删繁就简,保留了实木材质的敦厚去掉了老气的雕花线条。大气而历练。

湖畔家园-230平-港式混搭风格-次卧室.jpg 湖畔家园-230平-港式混搭风格-主卧室.jpg

湖畔家园230平4居室港式风格林凤装饰的卧室私密的空间更依从主人的内心,素色壁纸配合暗文理花纹,护墙板结合金属收边条,前者安静而有力量,后者大气而凝重,书香门第,清而静,雅而严。

湖畔家园-230平-港式混搭风格-次卫.jpg 湖畔家园-230平-港式混搭风格-主卫.jpg

湖畔家园230平4居室港式风格林凤装饰的卫生间采用大气、大空间 镶嵌式定制双手盆,独立的浴缸营造了高级酒店的沐浴氛围。不失是一种极致放松的生活享受。

湖畔家园-230平-港式混搭风格-餐厅及厨房.jpg 湖畔家园-230平-港式混搭风格-门厅.jpg 湖畔家园-230平-港式混搭风格-户型图.jpg

案例设计师

林凤设计师

设计师:林凤设计师

从业时间:0年

设计理念:

预约设计师

算算你家装修多少钱

报名即享丰厚赠品,享半价装修

免费报价
咨询热线:400-656-9909
20190221103704574636.jpg

精品设计案例

20180612134930523248.jpg 服务号二维码.jpg