立即预约 立即预约
免费定制整装家居

免费定制整装家居

一站置家 全程无忧 一省到底
hide.png

当前位置: 首页 > 装修案例效果图 > 阳光100

阳光100 120平 现代简约风格效果图

收藏
案例风格 现代简约 案例户型 二居 案例面积 120平米
楼盘名称 阳光100 设计师 林凤设计师 案例类型 改善性住宅

设计理念:奢华的大理石与金属的相遇,携手给空间带来放松的氛围,无形中达到一种微妙的平衡,每一物件的出现都和谐地在这个空间共存。

客厅
第1张
餐厅
第1张
卧室
第1张
第2张
卫生间
第1张
厨房
第1张
门厅
第1张
过廊
第1张
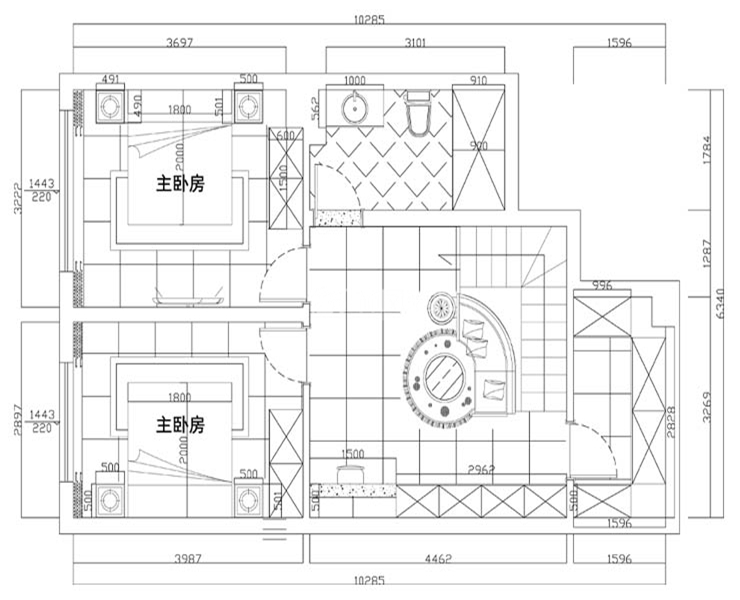
户型图
第1张
第2张
  • 案例详情

阳光100新城-120平-现代风格-首图.jpg

采用了视野开阔的开放式格局,时尚大气的高级定制家具和宽敞的空间演绎着空间的风度。力求“简“为道,简约精致,通过对材质,色彩,比列,造型,氛围等细节的着重拿捏,营造出质感生活空间,再追求材料,空间的表现深度与精确,运用最少的设计语言,表达出空间细节之处的精致。

阳光100新城-120平-现代风格-餐客厅.jpg 阳光100新城-120平-现代风格-次卧室.jpg 阳光100新城-120平-现代风格-卧室.jpg

以窗帘和壁纸相互衬托,又以地毯来点缀的壁纸与床,整体空间相互呼应。

阳光100新城-120平-现代风格-卫生间.jpg 阳光100新城-120平-现代风格-厨房.jpg 阳光100新城-120平-现代风格-门厅.jpg 阳光100新城-120平-现代风格-楼梯.jpg 阳光100新城-120平-现代风格-1楼户型图.jpg 阳光100新城-120平-现代风格-2楼户型图.jpg

案例设计师

林凤设计师

设计师:林凤设计师

从业时间:0年

设计理念:

预约设计师

算算你家装修多少钱

报名即享丰厚赠品,享半价装修

免费报价
咨询热线:400-656-9909
20190221103704574636.jpg

精品设计案例

20180612134930523248.jpg 服务号二维码.jpg