立即预约 立即预约
免费定制整装家居

免费定制整装家居

一站置家 全程无忧 一省到底
hide.png

当前位置: 首页 > 装修案例效果图 > 君源美村

君源美村 125平 现代简约风格效果图

收藏
案例风格 现代简约 案例户型 三居 案例面积 125平米
楼盘名称 君源美村 设计师 林凤装饰设计师 案例类型 改善性住宅

设计理念:现代风格以舒适温馨为主,黑白灰色调搭配灰蓝色装饰更加个性。让家更具设计跟品质感,给居住者更加个性的居住空间。

客厅
第1张
餐厅
第1张
卧室
第1张
第2张
第3张
第4张
卫生间
第1张
厨房
第1张
门厅
第1张
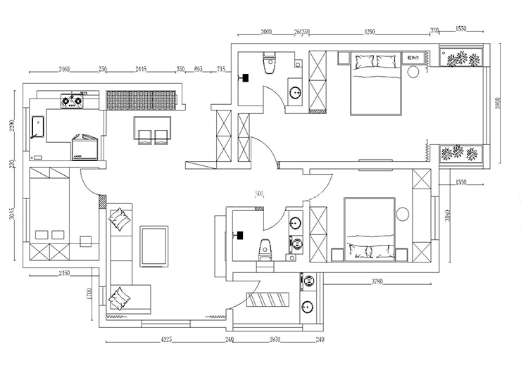
户型图
第1张
  • 案例详情

郡园美村-125-现代风格-首图.jpg

君源美村125平3居室现代风格林凤装饰的客厅纯皮沙发搭配深木色家具,是整个客厅空间更加稳重,加以淡蓝色浅灰色点缀 ,增加空间的色彩感.

郡园美村-125-现代风格-餐厅.jpg

君源美村125平3居室现代风格林凤装饰的餐厅区域深整体卡座设计,又加入的小酒柜,增加了整体的收纳型与实用性。

郡园美村-125-现代风格-次卧.jpg 郡园美村-125-现代风格-榻榻米.jpg 郡园美村-125-现代风格-主卧1.jpg 郡园美村-125-现代风格-主卧2.jpg

【主卧室说明】卧室空间采用了灰蓝色背景墙,皮质床头。加上阳台的落地地台,使阳台空间充分利用更加实用,提高生活品质感。

郡园美村-125-现代风格-卫生间.jpg

君源美村125平3居室现代风格林凤装饰的卫生间为整个家的私密空间,色调生采用灰色,整体浴室柜为灰色,让空间更加干净整洁

郡园美村-125-现代风格-厨房.jpg

君源美村125平3居室现代风格林凤装饰的厨房黑色地柜搭配白色吊柜。给女主人提供了安静的烹饪空间,让厨房更整体设计完美结合。

郡园美村-125-现代风格-玄关.jpg

君源美村125平3居室现代风格林凤装饰的玄关

郡园美村-125-现代风格-平面图.jpg

案例设计师

林凤装饰设计师

设计师:林凤装饰设计师

从业时间:8年

设计理念:好的设计是实用性,经济性,和艺术性的高度统一。

预约设计师

算算你家装修多少钱

报名即享丰厚赠品,享半价装修

免费报价
咨询热线:400-656-9909
20190221103704574636.jpg

精品设计案例

20180612134930523248.jpg 服务号二维码.jpg