立即预约 立即预约
免费定制整装家居

免费定制整装家居

一站置家 全程无忧 一省到底
hide.png

当前位置: 首页 > 装修案例效果图 > 金地檀府

金地檀府 86平 北欧风格效果图

收藏
案例风格 北欧 案例户型 二居 案例面积 86平米
楼盘名称 金地檀府 设计师 林凤设计师 案例类型 改善性住宅

设计理念:该房屋针对房主而言是改善性住房,业主给出的要求是舒适、 自然、恬静、实用。所以我根据以上要求作出的案例是北欧风格。北欧风格颜色从空间出发,针对都市上班族工作一天后,回到家感受到的另一番环境。

客厅
第1张
第2张
第3张
餐厅
第1张
第2张
卧室
第1张
卫生间
第1张
厨房
第1张
过廊
第1张
第2张
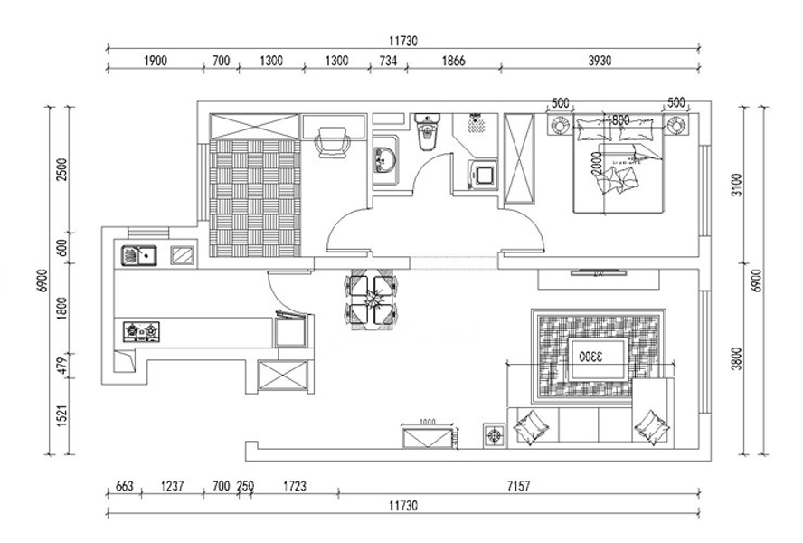
户型图
第1张
  • 案例详情

金地檀府-86平-北欧风格-客厅1.jpg 金地檀府-86平-北欧风格-客厅2.jpg 金地檀府-86平-北欧风格-首图.jpg

金地檀府86平2居室北欧风格林凤装饰的客厅的墙面是北欧风格近两年最常见的浅咖颜色,且使用最为经济实惠、性价比极高的乳胶漆,使空间看上去与其他白色墙面形成鲜明对比,加上装饰摆架更突出业主的随性化、自然化。亮黄色是典型的北欧颜色,在空间中突出亮化,即为空间的主轴,且又那么的自然。

金地檀府-86平-北欧风格-餐厅1.jpg 金地檀府-86平-北欧风格-餐厅2.jpg

金地檀府86平2居室北欧风格林凤装饰的餐厅的的餐桌和餐椅是由原木色的延伸色,餐桌上的粉色玫瑰让整个空间看起来更加色彩。让整个餐厅温馨起来,增加主人就餐的食欲。

金地檀府-86平-北欧风格-主卧室.jpg

金地檀府86平2居室北欧风格林凤装饰的卧室作为睡眠、休息的地方。窗帘选择黄色和灰色的搭色设计,床上的黄色搭毯与之呼应,布艺的灰色床视为空间的主轴,且不抢戏。让主人在休息的时候更加的舒心。

金地檀府-86平-北欧风格-卫生间.jpg

金地檀府86平2居室北欧风格林凤装饰的卫生间选用灰色的地砖和墙砖,体现出北欧风格的卫生间设计,简洁、舒适,搭上镜子和白色家电,使得整个空间没有那么压抑。

金地檀府-86平-北欧风格-厨房.jpg

金地檀府86平2居室北欧风格林凤装饰的厨房在颜色上以白色和原木色为主,没有华丽的装饰装点,吸塑板材的柜体,白色的理石台面,中间空档的白色为主带有黑色艺术纹理的墙砖,让整体显得简单雅素,凸显业主的对生活的热爱。

金地檀府-86平-北欧风格-过廊1.jpg 金地檀府-86平-北欧风格-过廊2.jpg

金地檀府86平2居室北欧风格林凤装饰的过廊

金地檀府-86平-北欧风格-平面图.jpg

案例设计师

林凤设计师

设计师:林凤设计师

从业时间:7年

设计理念:设计源于生活,生活映与本性

预约设计师

算算你家装修多少钱

报名即享丰厚赠品,享半价装修

免费报价
咨询热线:400-656-9909
20190221103704574636.jpg

精品设计案例

20180612134930523248.jpg 服务号二维码.jpg