立即预约 立即预约
免费定制整装家居

免费定制整装家居

一站置家 全程无忧 一省到底
hide.png

当前位置: 首页 > 装修案例效果图 > 保利大都会

保利大都会 95平 现代简约风格效果图

收藏
案例风格 现代简约 案例户型 二居 案例面积 95平米
楼盘名称 保利大都会 设计师 罗霄 案例类型 改善性住宅

设计理念:本案设计以简约不简单为主题,房主是一个积极进取,时时保持学的精神,远离在家里懒惰的格局,既美观又实用。

客厅
第1张
第2张
餐厅
第1张
第2张
卧室
第1张
第2张
卫生间
第1张
厨房
第1张
门厅
第1张
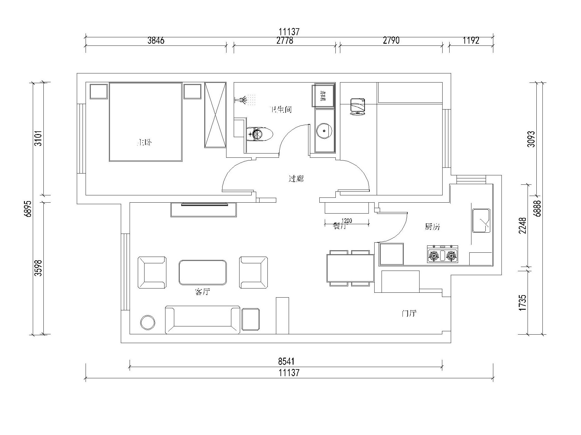
户型图
第1张
  • 案例详情

保利大都会-95平-现代简约-客厅.jpg 保利大都会-95平-现代简约-客厅背景.jpg

保利大都会95平2居室现代简约风格林凤装饰的客厅就是用简单的线条来勾画出房屋的空间感,用白色和胡桃色做出家具套色来丰富家里的色彩,房屋即有个空间又不单调。

保利大都会-95平-现代简约-餐厅2.jpg 保利大都会-95平-现代简约-餐厅.jpg

保利大都会95平2居室现代简约风格林凤装饰的餐厅用造型简单的餐桌加上酒柜来体现餐厅核心,不仅要美观,更重要的实用性,整体性。

保利大都会-95平-现代简约-主卧.jpg 保利大都会-95平-现代简约-次卧.jpg

保利大都会95平2居室现代简约风格林凤装饰的卧室的床头用灰色的壁纸作为主色,床头深灰色和褐色作为补色,叫整个房间融为一体。给人舒适感觉。

保利大都会-95平-现代简约-卫生间.jpg

保利大都会95平2居室现代简约风格林凤装饰的卫生间色彩以清洁感的冷色调为主,白色的瓷砖、浅灰色的洗脸台,不仅使空间视野开阔,而且愈加清雅洁净,怡心爽神。

保利大都会-95平-现代简约-厨房.jpg

保利大都会95平2居室现代简约风格林凤装饰的整个厨房都采用了黑白灰的设计,显得十分的简单大方。厨房的空间固然不大,但是配上齐全简单的厨房用具,让您品味小家温馨的滋味。

保利大都会-95平-现代简约-门厅2.jpg

保利大都会95平2居室现代简约风格林凤装饰的玄关

保利大都会25-10#1-21-2-Model.jpg

案例设计师

罗霄

设计师:罗霄

从业时间:17年

设计理念:唯有我的设计,方显你家的与众不同。

预约设计师

算算你家装修多少钱

报名即享丰厚赠品,享半价装修

免费报价
咨询热线:400-656-9909
20190221103704574636.jpg

精品设计案例

20180612134930523248.jpg 服务号二维码.jpg