立即预约 立即预约
免费定制整装家居

免费定制整装家居

一站置家 全程无忧 一省到底
hide.png

当前位置: 首页 > 装修案例效果图 > 金地檀府

金地檀府 116平 北欧风格效果图

收藏
案例风格 北欧 案例户型 三居 案例面积 116平米
楼盘名称 金地檀府 设计师 林凤装饰设计师 案例类型 改善性住宅

设计理念:此案设计中采用的是北欧风格, 女主比较喜欢简美风格,但是考虑到房子可能就是个过渡,所以设计师为了给客户降低成本,设计了北欧风格,这样后期房主也不会损失,同时也挺体现出了,简美的干净的特点.

客厅
第1张
第2张
餐厅
第1张
卧室
第1张
第2张
第3张
卫生间
第1张
厨房
第1张
书房
第1张
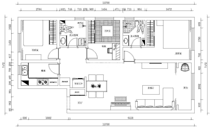
户型图
第1张
  • 案例详情

金地檀府-116㎡-北欧风格-客厅.jpg 金地檀府-116㎡-北欧风格-首图.jpg

金地檀府116平3居室北欧风格林凤装饰的客厅户型属于长方形,没有阳台,而且房主家里有一条狗,所以设计师设计了一个假的阳台,把客厅空间缩小,这样阳台既能晾晒衣物,又能养狗. 客厅中背景墙也没做过多的装饰,就是简单的电视柜和立式空调形成了装饰.凸显出北欧的简洁的特点。

金地檀府-116㎡-北欧风格-客厅2.jpg

金地檀府116平3居室北欧风格林凤装饰的餐厅由于户型属于细长型,餐桌的位置很难摆放,所以我把餐桌设计到在鞋柜的侧立面墙的位置,因为房主家还有一台钢琴,这样钢琴也起到了遮挡的作用,增加了客厅的私密性,让餐厅和客厅也形成了互动.

金地檀府-116㎡-北欧风格-次卧室.jpg 金地檀府-116㎡-北欧风格-卧室.jpg 金地檀府-116㎡-北欧风格-榻榻米.jpg

金地檀府116平3居室北欧风格林凤装饰的卧室是满足房主喜欢的简美风格特点,白色的皮质床头,搭配灰色的墙面 再加上美式的壁灯,整体让人感觉,一进卧室有一种很温馨的感觉.床下还给女房主设计了梳妆台,不用房主站在洗手盆前化妆,.这样也让房主增加了舒适性。

金地檀府-116㎡-北欧风格-卫生间.jpg

金地檀府116平3居室北欧风格林凤装饰的房主家有两个卫生间,其中一个我设计了浴屏,因为女主人整体喜欢干净,整洁的环境,所以我设计了当下最流行的浴屏,这样在收拾卫生上 也更加方便,颜色上全采用黑色的花洒和黑色的浴屏和黑色的浴室柜,搭配白色的座便和浅灰的墙砖,这样也形成了深浅颜色的对比.

金地檀府-116㎡-北欧风格-厨房.jpg

金地檀府116平3居室北欧风格林凤装饰的厨房空间比较小,所以设计师把厨房往外延伸了,但考虑到铺砖的费用,所以设计师把厨房区分了两部分,有点像中西厨,厨房内是洗菜盆和烟机,厨房外是镶嵌电器和冰箱 这样在操作上面更加便捷,从储物上看也增加了不少储物空间.

金地檀府-116㎡-北欧风格-书房.jpg

金地檀府116平3居室北欧风格林凤装饰的书房

金地檀府-116㎡-北欧风格-平面布局.jpg

案例设计师

林凤装饰设计师

设计师:林凤装饰设计师

从业时间:6年

设计理念:源于生活,生活因设计而改变!

预约设计师

算算你家装修多少钱

报名即享丰厚赠品,享半价装修

免费报价
咨询热线:400-656-9909
20190221103704574636.jpg

精品设计案例

20180612134930523248.jpg 服务号二维码.jpg