立即预约 立即预约
免费定制整装家居

免费定制整装家居

一站置家 全程无忧 一省到底
hide.png

当前位置: 首页 > 装修案例效果图 > 中航城

中航城 123平 现代简约风格效果图

收藏
案例风格 现代简约 案例户型 二居 案例面积 123平米
楼盘名称 中航城 设计师 李承成 案例类型 改善性住宅

设计理念:本案为现代极简得装修风格,从选材、色彩、软装配饰上入手,从繁到简,从简到精致,给人带来舒适度的同时又不失轻奢与时尚。

客厅
第1张
第2张
第3张
餐厅
第1张
卧室
第1张
第2张
卫生间
第1张
第2张
厨房
第1张
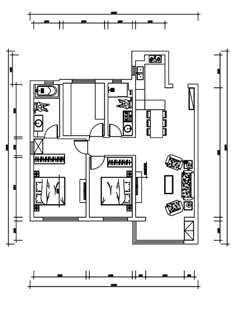
户型图
第1张
  • 案例详情

中航城-123-现代极简-客厅1.jpg 中航城-123-现代极简-客厅2.jpg 中航城-123-现代极简-首图.jpg

中航城123平2居室现代极简风格林凤装饰的客厅是主人休闲交流、接人待物的主要场所,客厅挑空背景墙选用质感强烈的天然理石咖色硬包对比搭配,彰显大气高雅,灰色的地面让人放松身心的同时又时尚自然,再利用软装色彩的调配和饰品的搭配使整个空间多了几分轻奢的贵气。

中航城-123-现代极简-餐厅.jpg

中航城123平2居室现代极简风格林凤装饰的沙发背景墙与餐厅相连,使整个空间瞬间增大,又多了一丝亮点,餐厅吊顶的设计完美的与门厅及开放式厨房相连,使原本狭小的空间看起来协调统一,意式极简的桌椅搭配原木色的墙板简约而时尚。

中航城-123-现代极简-次卧.jpg 中航城-123-现代极简-主卧.jpg

中航城123平2居室现代极简风格林凤装饰的主卧室硬包床头背景墙配以贵气十足的极简皮床,不仅现代感十足,而且使得整个卧室看起来舒适高雅。

中航城-123-现代极简-客卫生间.jpg 中航城-123-现代极简-主卫生间.jpg

主卫生间说明:卫生间相对较小,局部墙面采用爵士白的墙砖造型铺装,使整个空间更显开阔,洗面台一洗衣机完美融合,有效利用每一个角落。

中航城-123-现代极简-厨房.jpg

中航城123平2居室现代极简风格林凤装饰的厨房为开放式厨房

中航城-123-现代极简-平面图.jpg

案例设计师

李承成

设计师:李承成

从业时间:15年

设计理念:细节决定品质。

预约设计师

算算你家装修多少钱

报名即享丰厚赠品,享半价装修

免费报价
咨询热线:400-656-9909
20190221103704574636.jpg

精品设计案例

20180612134930523248.jpg 服务号二维码.jpg