立即预约 立即预约
免费定制整装家居

免费定制整装家居

一站置家 全程无忧 一省到底
hide.png

当前位置: 首页 > 装修案例效果图 > 名流印象

名流印象 150平 现代简约风格效果图

收藏
案例风格 现代简约 案例户型 三居 案例面积 150平米
楼盘名称 名流印象 设计师 林凤设计师 案例类型 改善性住宅

设计理念:本案是简约风格,主要化繁为简,不做多余的造型,线条感也是以黑色直线条为主,合理规划动线,和空间布局,为业主做出充足的收纳功能。

  • 案例详情

名流印象-150-现代简约-沙发背景.jpg 名流印象-150-现代简约-客厅1.jpg 名流印象-150-现代简约-客厅.jpg

名流印象150平三室两厅现代简约风格林凤装饰的客厅由于楼层高度高,光线明亮,屋内天地墙都没有采用特别深的颜色,以浅色系做基底,木制家具和门柜子的颜色以深色系做衬托。墙面以壁布为主,电视背景墙搭配理石纹理的壁纸。整体家具的线条感和灯具相呼应,客厅的单椅将整体的空间颜色提亮。

名流印象-150-现代简约-餐厅.jpg

名流印象150平三室两厅现代简约风格林凤装饰的餐厅空间倒台和餐桌相连,窗边搭配西厨电器,满足女主人对厨房的烹饪需求,餐桌采用和橱柜色系一致的深色木质餐桌,餐厅背景采用现代撞色大幅挂画。

名流印象-150-现代简约-次卧室.jpg 名流印象-150-现代简约-次卧室1.jpg 名流印象-150-现代简约-次卧室2.jpg 名流印象-150-现代简约-主卧室.jpg 名流印象-150-现代简约-次卧室3.jpg 名流印象-150-现代简约-主卧室1.jpg 名流印象-150-现代简约-主卧室2.jpg

【主卧室说明】主卧室吧卫生间空间缩小,增加了步入式衣帽间的空间,再搭配飘窗柜增加了女主人的梳妆台位置,底面搭配的鱼骨地板纹理和卧室背景相呼应,深蓝色的窗帘和梳妆柜让卧室的视觉感更深邃。

名流印象-150-现代简约-次卫浴.jpg 名流印象-150-现代简约-主卫浴.jpg 名流印象-150-现代简约-主卫浴1.jpg

【主卫生间说明】主卫生间墙面以灰色理石纹理为准,搭配白色洗漱柜,空间显得干净,时尚。次卫生间采用干湿分离的设计让卫生间的使用率得到放大,不会因为同时使用而显得拥挤。增加洗漱去壁龛省去了五金挂件,美观实用。

名流印象-150-现代简约-餐厅.jpg

名流印象150平三室两厅现代简约风格林凤装饰的厨房采用中西厨的方式,烹饪有严重的厨房用拉门相隔,外面的西厨和倒台更是为女主人增加了蒸烤箱的烹饪功能。

名流印象-150-现代简约-书房.jpg 名流印象-150-现代简约-书房1.jpg

名流印象150平三室两厅现代简约风格林凤装饰的书房

名流印象-150-现代简约-衣帽间.jpg

名流印象150平三室两厅现代简约风格林凤装饰的衣帽间

名流印象-150-现代简约-门厅.jpg 名流印象-150-现代简约-门厅1.jpg

名流印象150平三室两厅现代简约风格林凤装饰的玄关

名流印象-150-现代简约-过廊.jpg

过廊

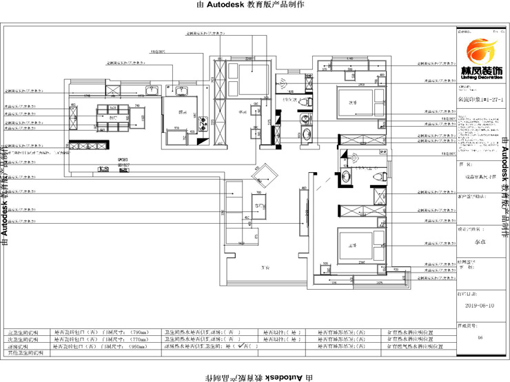
名流印象-150-现代简约-平面图.jpg

案例设计师

林凤设计师

设计师:林凤设计师

从业时间:5年

设计理念:经验和习惯的沉淀,时尚与美观的结合

预约设计师

算算你家装修多少钱

报名即享丰厚赠品,享半价装修

免费报价
咨询热线:400-656-9909
20190221103704574636.jpg

精品设计案例

20180612134930523248.jpg 服务号二维码.jpg