立即预约 立即预约
免费定制整装家居

免费定制整装家居

一站置家 全程无忧 一省到底
hide.png

当前位置: 首页 > 装修案例效果图 > 碧桂园凤凰城

碧桂园凤凰城 130平 北欧风格效果图

收藏
案例风格 北欧 案例户型 三居 案例面积 130平米
楼盘名称 碧桂园凤凰城 设计师 王松 案例类型 儿童房

设计理念:本案装修风格定位为北欧风格,源于北欧瑞典地区,是改进型北欧风格,融合了很多现代元素,保留了北欧风的原木材质和线条简洁性。

客厅
第1张
第2张
第3张
第4张
餐厅
第1张
第2张
卧室
第1张
卫生间
第1张
厨房
第1张
过廊
第1张
第2张
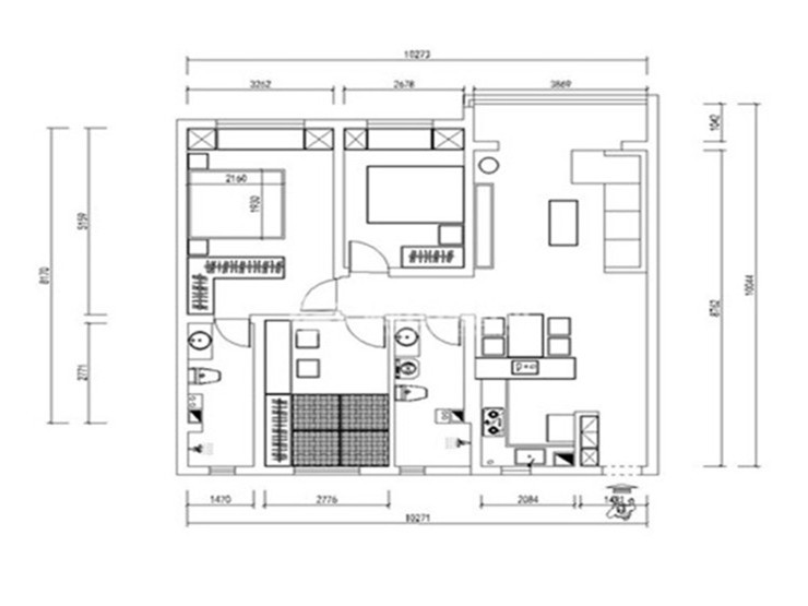
户型图
第1张
  • 案例详情

碧桂园凤凰城-117平-北欧风格-客厅 (3).jpg 碧桂园凤凰城-117平-北欧风格-客厅 (2).jpg 碧桂园凤凰城-117平-北欧风格-客厅 (4).jpg 碧桂园凤凰城-117平-北欧风格-客厅.jpg

碧桂园凤凰城130平三室两厅北欧风格林凤装饰的客厅电视背景墙上的设计是为了满足女业主大面积储物为主的设计,采用了左右对称及二八定律的设计理念,既有储藏空间也不显着很闷。

碧桂园凤凰城-117平-北欧风格-餐厅.jpg 碧桂园凤凰城-117平-北欧风格-餐厅 (2).jpg

碧桂园凤凰城130平三室两厅北欧风格林凤装饰的餐厅

碧桂园凤凰城-117平-北欧风格-卧室.jpg

碧桂园凤凰城130平三室两厅北欧风格林凤装饰的北卧的设计也是满足客户储物的需求点,还有就是客户家是两个孩子,所以需要同时两个孩子学习的空间及大量放书的空间,故选择榻榻米的设计方案。

碧桂园凤凰城-117平-北欧风格-卫生间.jpg

碧桂园凤凰城130平三室两厅北欧风格林凤装饰的卫生间的户型因为是长条形,所以在瓷砖的选择上 采用了有拉伸效果的条形纹理的瓷砖,合理的划分了每个位置的使用空间。

碧桂园凤凰城-117平-北欧风格-厨房.jpg

碧桂园凤凰城130平三室两厅北欧风格林凤装饰的厨房是选择了开放式的设计,因为这样可以最大化的实现储物空间及视野开阔的效果,可以让女主人在做饭的时候也可以照顾到客厅中玩耍的孩子们。

碧桂园凤凰城-117平-北欧风格-过廊 (2).jpg 碧桂园凤凰城-117平-北欧风格-过廊.jpg

碧桂园凤凰城130平三室两厅北欧风格林凤装饰的过廊

碧桂园凤凰城-117平-北欧风格- 平面图.jpg

案例设计师

王松

设计师:王松

从业时间:10年

设计理念:品味生活,从家开始

预约设计师

算算你家装修多少钱

报名即享丰厚赠品,享半价装修

免费报价
咨询热线:400-656-9909
20190221103704574636.jpg

精品设计案例

20180612134930523248.jpg 服务号二维码.jpg