立即预约 立即预约
免费定制整装家居

免费定制整装家居

一站置家 全程无忧 一省到底
hide.png

当前位置: 首页 > 装修案例效果图 > 远洋大河宸章

远洋大河宸章 89平 北欧风格效果图

收藏
案例风格 北欧 案例户型 二居 案例面积 89平米
楼盘名称 远洋大河宸章 设计师 林凤设计师 案例类型 改善性住宅

设计理念:整体设计是以北欧简约造型,现代北欧家具为主,整个空间设计明亮大方原木色十足,比较温馨的设计。

客厅
第1张
第2张
餐厅
第1张
第2张
卧室
第1张
卫生间
第1张
厨房
第1张
阳台
第1张
门厅
第1张
过廊
第1张
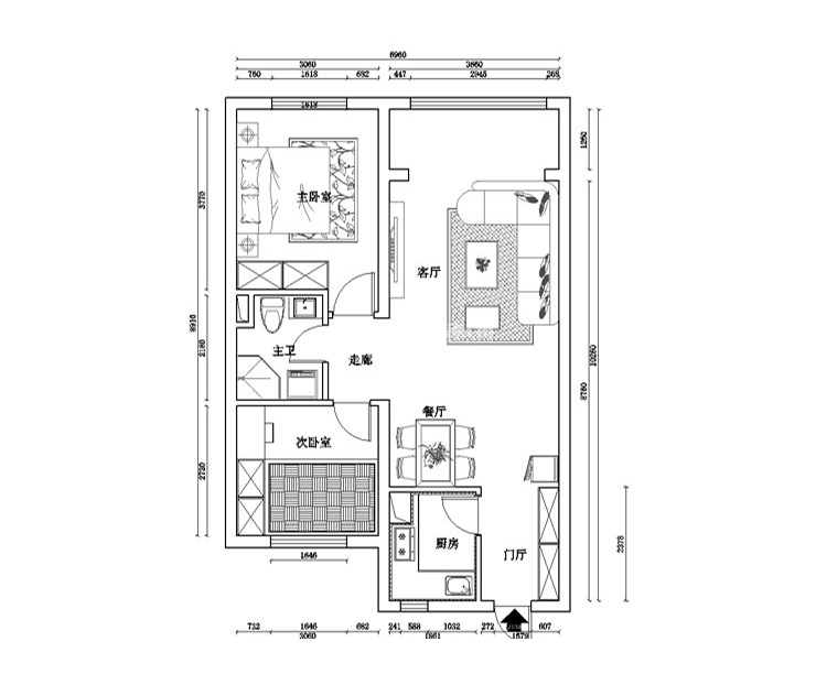
户型图
第1张
  • 案例详情

远洋大河宸章-89平-北欧-客厅.jpg 远洋大河宸章-89平-北欧-首图.jpg

远洋大河宸章89m²两室两厅北欧风格林凤装饰的客厅以原木为主,北欧元素为辅,家具材质采用现代家具,增加家里现代的感觉,棚面与墙面都做了比较简单的造型,墙面采用了新颖蓝灰色色彩拼块护壁纸,让整体空间显得不那么发黄,让整个客厅空间大气稳重,又略显时尚。

远洋大河宸章-89平-北欧-餐厅.jpg 远洋大河宸章-89平-北欧-客餐厅.jpg

远洋大河宸章89m²两室两厅北欧风格林凤装饰的餐厅空间,但是餐厅空间比较小,因此在墙角处的位置坐了一小酒柜,酒柜置物柜颜色与家具呼应,让主人用餐更加方便和增加了储物功能!

远洋大河宸章-89平-北欧-主卧室.jpg

远洋大河宸章89m²两室两厅北欧风格林凤装饰的卧室空间墙面采用孔雀蓝为主色调,搭配白色的柜子,让卧室空间温馨的同时更多的是干净整洁感。

远洋大河宸章-89平-北欧-卫生间.jpg

远洋大河宸章89m²两室两厅北欧风格林凤装饰的卫生间空间,采用白加黑净版瓷砖,配合地面地板砖,在视觉上让卫生间的空间显得更加精致更加温馨。让空间北欧风十足。

远洋大河宸章-89平-北欧-厨房.jpg

远洋大河宸章89m²两室两厅北欧风格林凤装饰的厨房的墙砖为爵士白色地砖为深灰色,橱柜采用上浅下深的配色,让空间更有层次感,更有对比感。

远洋大河宸章-89平-北欧-阳台.jpg

远洋大河宸章89m²两室两厅北欧风格林凤装饰的阳台

远洋大河宸章-89平-北欧-玄关.jpg

远洋大河宸章89m²两室两厅北欧风格林凤装饰的玄关

远洋大河宸章-89平-北欧-过道.jpg

远洋大河宸章89m²两室两厅北欧风格林凤装饰的过廊

远洋大河宸章-89平-北欧-平面图.jpg

案例设计师

林凤设计师

设计师:林凤设计师

从业时间:7年

设计理念:设计源于生活 且高于生活

预约设计师

算算你家装修多少钱

报名即享丰厚赠品,享半价装修

免费报价
咨询热线:400-656-9909
20190221103704574636.jpg

精品设计案例

20180612134930523248.jpg 服务号二维码.jpg