立即预约 立即预约
免费定制整装家居

免费定制整装家居

一站置家 全程无忧 一省到底
hide.png

当前位置: 首页 > 装修案例效果图 > 金地铁西檀府

金地铁西檀府 125平 现代简约风格效果图

收藏
案例风格 现代简约 案例户型 三居 案例面积 125平米
楼盘名称 金地铁西檀府 设计师 林凤集团设计师 案例类型 改善性住宅

设计理念:现代风格的主要特征多以简洁,大方,精致为主,追求现代化,黑白灰的主色调,更能彰显时尚气息。

客厅
第1张
餐厅
第1张
卧室
第1张
第2张
第3张
卫生间
第1张
厨房
第1张
过廊
第1张
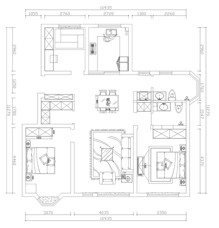
户型图
第1张
  • 案例详情

S1-王浩羽-金地铁西潭府-125-首图.jpg

金地铁西檀府125㎡三室两厅现代风格林凤装饰的电视背景墙使用灰色的壁纸,使整个空间通透大气,简约而不失时尚,背景墙选用黑色边框的装饰画,显示着现代风格的明朗与时尚。

S1-王浩羽-金地铁西潭府-125-餐厅.jpg

生活在快节奏的都市,金地铁西檀府125㎡三室两厅现代风格林凤装饰的餐区是家里必不可少的一部分,把客厅和办餐厅在一起,黑色餐桌搭配皮质餐椅,显示着主人翁的独特品味。

S1-王浩羽-金地铁西潭府-125-次卧室.jpg S1-王浩羽-金地铁西潭府-125-主卧室.jpg S1-王浩羽-金地铁西潭府-125-榻榻米.jpg

【主卧室说明】主卧室不被风格所限制,采用独特的设计理念,改变传统主灯设计,选用筒灯,整体简约时尚,为现代风格的主导。

S1-王浩羽-金地铁西潭府-125-卫生间.jpg

金地铁西檀府125㎡三室两厅现代风格林凤装饰的卫生间选用白色理石与黑色美缝的勾勒的整体结合,完美衬托出简约现代的特点,展现了现代风格与众不同的简约美感。

S1-王浩羽-金地铁西潭府-125-厨房.jpg

金地铁西檀府125㎡三室两厅现代风格林凤装饰的厨房

S1-王浩羽-金地铁西潭府-125-过道.jpg

金地铁西檀府125㎡三室两厅现代风格林凤装饰的过道

S1-王浩羽-金地铁西潭府-125-平面图.jpg

案例设计师

林凤集团设计师

设计师:林凤集团设计师

从业时间:9年

设计理念:用空间铸造你的梦想

预约设计师

算算你家装修多少钱

报名即享丰厚赠品,享半价装修

免费报价
咨询热线:400-656-9909
20190221103704574636.jpg

精品设计案例

20180612134930523248.jpg 服务号二维码.jpg