立即预约 立即预约
免费定制整装家居

免费定制整装家居

一站置家 全程无忧 一省到底
hide.png

当前位置: 首页 > 装修案例效果图 > 龙湖西府原著

龙湖西府原著 140平 美式风格效果图

收藏
案例风格 美式 案例户型 三居 案例面积 140平米
楼盘名称 龙湖西府原著 设计师 杨达 案例类型 改善性住宅

设计理念:简美风格装饰韵味既含有古典美式的华贵又有现代风格的简约。简美风格给人感觉无比洒脱。

客厅
第1张
第2张
餐厅
第1张
卧室
第1张
第2张
卫生间
第1张
第2张
厨房
第1张
书房
第1张
过廊
第1张
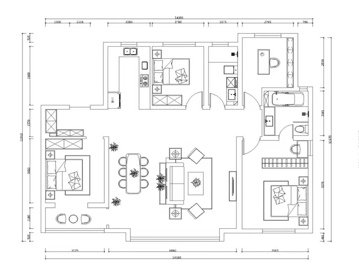
户型图
第1张
  • 案例详情

龙湖西府原著-140平-简美风格-首图.jpg 龙湖西府原著-140平-简美风格-客厅.jpg

龙湖西府原著140平三室两厅简美风格林凤装饰的电视背景墙运用理石上墙,使整个空间大气,理石的整体性比之地砖上墙更加的时尚自然,搭配浅灰色护墙板使整体显现出端庄大气。

龙湖西府原著-140平-简美风格-餐厅 (2).jpg

龙湖西府原著140平三室两厅简美风格林凤装饰的餐厅是由简单的六人位餐桌,搭配石膏线围框背景墙和地面的波打线相呼应,看起来非常和谐。

龙湖西府原著-140平-简美风格-卧室 (2).jpg 龙湖西府原著-140平-简美风格-卧室.jpg

龙湖西府原著140平三室两厅简美风格林凤装饰的主卧室背景墙运用米灰色风景画,呈现着一片洁净雅致之感,地面铺棕红色的木地板,与墙、顶面的白色形成了显明的对比,给人舒适的视觉感。

龙湖西府原著-140平-简美风格-卫生间.jpg 龙湖西府原著-140平-简美风格-卫生间 (2).jpg

龙湖西府原著140平三室两厅简美风格林凤装饰的卫生间

龙湖西府原著-140平-简美风格-餐厅.jpg

龙湖西府原著140平三室两厅简美风格林凤装饰的厨房U型橱柜,具备比较强大又比较简单耐用的厨房装备和足够的作态台面,干净整洁又好打理。

龙湖西府原著-140平-简美风格-书房.jpg

龙湖西府原著140平三室两厅简美风格林凤装饰的书房

龙湖西府原著-140平-简美风格-过廊.jpg

龙湖西府原著140平三室两厅简美风格林凤装饰的过廊

龙湖西府原著-140平-简美风格-户型图.jpg

案例设计师

杨达

设计师:杨达

从业时间:10年

设计理念:精雕细琢,返璞归真。

预约设计师

算算你家装修多少钱

报名即享丰厚赠品,享半价装修

免费报价
咨询热线:400-656-9909
20190221103704574636.jpg

精品设计案例

20180612134930523248.jpg 服务号二维码.jpg