立即预约 立即预约
免费定制整装家居

免费定制整装家居

一站置家 全程无忧 一省到底
hide.png

当前位置: 首页 > 装修案例效果图 > 金辉优步学府

金辉优步学府 110平 现代简约风格效果图

收藏
案例风格 现代简约 案例户型 三居 案例面积 110平米
楼盘名称 金辉优步学府 设计师 林凤设计师 案例类型 改善性住宅

设计理念:金辉优步学府110平三室两厅户型以简单的风格,不失质感的设计。以灰色系为主色调,运用现代风格的设计方式,使整个空间精致与舒适并存。

客厅
第1张
第2张
第3张
卧室
第1张
第2张
卫生间
第1张
第2张
厨房
第1张
书房
第1张
门厅
第1张
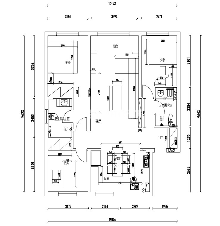
户型图
第1张
  • 案例详情

金辉优步学府-110平-现代风格-客厅.jpg 金辉优步学府-110平-现代风格-客厅2.jpg 金辉优步学府-110平-现代风格-首图.jpg

金辉优步学府110平三室两厅现代风格林凤装饰的客厅整体区域,线条简洁硬朗,简约灰墙体与灰色理石文理地砖上下呼应,巧妙搭配出质感的公共空间。

金辉优步学府-110平-现代风格-次卧室.jpg 金辉优步学府-110平-现代风格-主卧室.jpg

金辉优步学府110平三室两厅现代风格林凤装饰的卧室主要灰色床与棕色背景墙整体搭配,整个空间给人以温馨大气的感觉,诠释着主人对美的品味追求。

金辉优步学府-110平-现代风格-次卫生间.jpg 金辉优步学府-110平-现代风格-主卫生间.jpg

金辉优步学府110平三室两厅现代风格林凤装饰的卫生间运用灰色大理石瓷砖,洗手台大理石与墙地面的大理石瓷砖浑然一体,扩大了视觉空间,有一种淡雅质感的气息。

金辉优步学府-110平-现代风格-厨房.jpg

金辉优步学府110平三室两厅现代风格林凤装饰的厨房采用开放式白色与胡桃木色整体橱柜设计,空间简洁,整洁而富有层次感。

金辉优步学府-110平-现代风格-书房.jpg

金辉优步学府110平三室两厅现代风格林凤装饰的书房

金辉优步学府-110平-现代风格-门厅.jpg

金辉优步学府110平三室两厅现代风格林凤装饰的玄关

金辉优步学府-110平-现代风格-平面图.jpg

案例设计师

林凤设计师

设计师:林凤设计师

从业时间:10年

设计理念:以人为本

预约设计师

算算你家装修多少钱

报名即享丰厚赠品,享半价装修

免费报价
咨询热线:400-656-9909
20190221103704574636.jpg

精品设计案例

20180612134930523248.jpg 服务号二维码.jpg