立即预约 立即预约
免费定制整装家居

免费定制整装家居

一站置家 全程无忧 一省到底
hide.png

当前位置: 首页 > 装修案例效果图 > 碧桂园繁华里

碧桂园繁华里 99平 轻奢风格效果图

收藏
案例风格 轻奢 案例户型 三居 案例面积 99平米
楼盘名称 碧桂园繁华里 设计师 郑婷婷 案例类型 改善性住宅

设计理念:有限的空间,做无限的设计,客户的需求有时候无法用语言表达,但是作为设计师却可以用设计呈现出来。

客厅
第1张
第2张
第3张
第4张
餐厅
第1张
卧室
第1张
第2张
第3张
卫生间
第1张
厨房
第1张
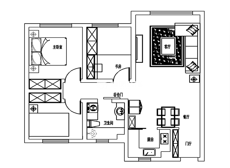
户型图
第1张
  • 案例详情

碧桂园 繁华里-99平-轻奢-客餐厅.jpg 碧桂园 繁华里-99平-轻奢-客厅.jpg 碧桂园 繁华里-99平-轻奢-客厅2.jpg 碧桂园 繁华里-99平-轻奢-首图.jpg

碧桂园繁华里99平三室两厅轻奢风格林凤装饰的客厅摆放的三人位布艺沙发灰色的墙面,窗帘的颜色,整体的色彩和材质的运用形成一个呼应,整体不失美感和视觉上的舒适度。

碧桂园 繁华里-99平-轻奢-餐厅.jpg

碧桂园繁华里99平三室两厅轻奢风格林凤装饰的餐厅摆放的是四人位的桌子,白色的理石台面,灰色的皮质椅子,和客厅看似分离实际又是一个整体,颜色搭配的恰到好处。

碧桂园 繁华里-99平-轻奢-卧室.jpg 碧桂园 繁华里-99平-轻奢-卧室1.jpg 碧桂园 繁华里-99平-轻奢-卧室2.jpg

碧桂园繁华里99平三室两厅轻奢风格林凤装饰的主卧以白色和灰色为主,看着简单,实际却不简单,局部的小调色让整个空间开阔起来。

碧桂园 繁华里-99平-轻奢-卫生间.jpg

碧桂园繁华里99平三室两厅轻奢风格林凤装饰的卫生间整体以灰色瓷砖为主,搭配白色的洗漱柜看着•简单有高大上。

碧桂园 繁华里-99平-轻奢-厨房.jpg

碧桂园繁华里99平三室两厅轻奢风格林凤装饰的厨房上柜和台面是白色,下柜是黑色,整体显得很有层次感。

碧桂园 繁华里-99平-轻奢-户型图.jpg

案例设计师

郑婷婷

设计师:郑婷婷

从业时间:9年

设计理念:用心与住宅对话,交织出住宅中的灵魂所属

预约设计师

算算你家装修多少钱

报名即享丰厚赠品,享半价装修

免费报价
咨询热线:400-656-9909
20190221103704574636.jpg

精品设计案例

20180612134930523248.jpg 服务号二维码.jpg