立即预约 立即预约
免费定制整装家居

免费定制整装家居

一站置家 全程无忧 一省到底
hide.png

当前位置: 首页 > 装修案例效果图 > 旭辉东樾城

旭辉东樾城 350平 轻奢风格效果图

收藏
案例风格 轻奢 案例户型 五居 案例面积 350平米
楼盘名称 旭辉东樾城 设计师 罗霄 案例类型 改善性住宅

设计理念:本案设计风格为现代轻奢,整体色调以灰色与金色为主,暖色的灯光调节气氛,为业主打造一个优雅舒适的家。

客厅
第1张
第2张
卧室
第1张
卫生间
第1张
厨房
第1张
书房
第1张
休闲区
第1张
衣帽间
第1张
过廊
第1张
第2张
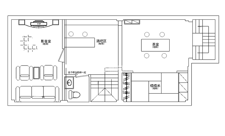
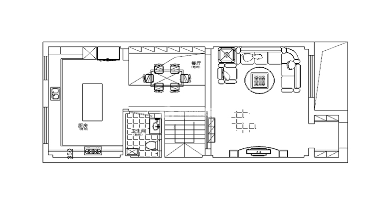
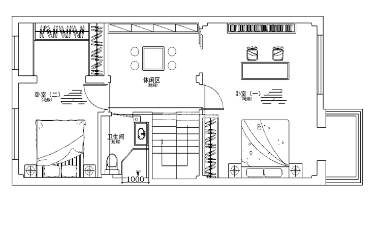
户型图
第1张
第2张
第3张
第4张
第5张
旭辉东樾城-500平-现代轻奢-客厅.jpg 旭辉东樾城-500平-现代轻奢-首图.jpg

旭辉东樾城350平5居室现代轻奢风格林凤装饰的客厅地面铺设灰色花纹大理石,简约又纯净,凸显气质,与背景墙的背景照相呼应,沙发采用灰色和爱马仕橙,与餐椅颜色相呼应,巧妙运用色彩,金属饰品的点缀使整体更有质感。

旭辉东樾城-500平-现代轻奢-卧室.jpg

旭辉东樾城350平5居室现代轻奢风格林凤装饰的卧室整体为灰色,米色的窗帘为卧室营造温馨舒适的感觉,沉稳而不沉闷,使业主进其空间内心情放松,可以得到良好的休息。

旭辉东樾城-500平-现代轻奢-卫生间.jpg

旭辉东樾城350平5居室现代轻奢风格林凤装饰的卫生间整体以白色为主,洗手台白色纹理的台面灰色柜身,整个空间简约通透,干净且舒适。

旭辉东樾城-500平-现代轻奢-厨房.jpg

旭辉东樾城350平5居室现代轻奢风格林凤装饰的厨房灰色理石纹做台面,深灰色门板,吊柜采用白色连接原木色酒柜,干净又不失高雅,非常有使用感同时提升生活仪式感。

旭辉东樾城-500平-现代轻奢-书房.jpg

旭辉东樾城350平5居室现代轻奢风格林凤装饰的书房

旭辉东樾城-500平-现代轻奢-影音室.jpg

旭辉东樾城350平5居室现代轻奢风格林凤装饰的影音区

旭辉东樾城-500平-现代轻奢-衣帽间.jpg

旭辉东樾城350平5居室现代轻奢风格林凤装饰的衣帽间

旭辉东樾城-500平-现代轻奢-过廊.jpg 旭辉东樾城-500平-现代轻奢-过廊1.jpg

旭辉东樾城350平5居室现代轻奢风格林凤装饰的过廊

旭辉东樾城-500平-现代轻奢-户型图1 拷贝.jpg 旭辉东樾城-500平-现代轻奢-户型图2.jpg 旭辉东樾城-500平-现代轻奢-户型图4.jpg 旭辉东樾城-500平-现代轻奢-户型图3.jpg 旭辉东樾城-500平-现代轻奢-户型图5 .jpg

案例设计师

罗霄

设计师:罗霄

从业时间:17年

设计理念:唯有我的设计,方显你家的与众不同。

预约设计师

算算你家装修多少钱

报名即享丰厚赠品,享半价装修

免费报价
咨询热线:400-656-9909
20190221103704574636.jpg

精品设计案例

20180612134930523248.jpg 服务号二维码.jpg