立即预约 立即预约
免费定制整装家居

免费定制整装家居

一站置家 全程无忧 一省到底
hide.png

当前位置: 首页 > 装修案例效果图 > 美好奉玺台

美好奉玺台 108平 轻奢风格效果图

收藏
案例风格 轻奢 案例户型 三居 案例面积 108平米
楼盘名称 美好奉玺台 设计师 林凤设计师 案例类型 改善性住宅

设计理念:本案整体风格为现代轻奢风格,简洁明快自然大方,背景墙理石上墙更突显视觉感,整体色调以灰白为主,贴切年轻人的品味。

客厅
第1张
第2张
第3张
餐厅
第1张
卧室
第1张
第2张
卫生间
第1张
厨房
第1张
阳台
第1张
门厅
第1张
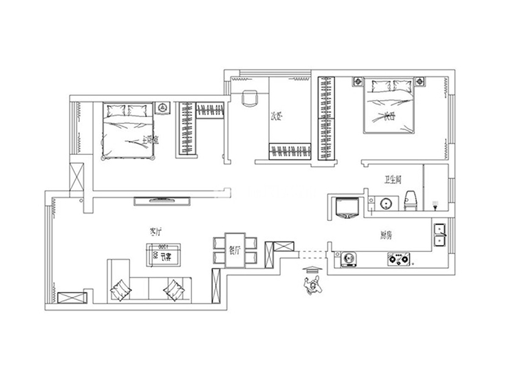
户型图
第1张
  • 案例详情

美好奉玺臺-108-现代轻奢风格-客厅.jpg 美好奉玺臺-108-现代轻奢风格-客厅(2).jpg 美好奉玺臺-108-现代轻奢风格-首图.jpg

美好奉玺台108平三室两厅现代轻奢风格林凤装饰的客厅和外阳台打通,拉伸客厅的空间,背景墙采用理石搭配线条,提升空间感,沙发等均是按实物进行搭配,墙面铺贴壁纸,空间不显得单调。

美好奉玺臺-108-现代轻奢风格-餐厅.jpg

美好奉玺台108平三室两厅现代轻奢风格林凤装饰的餐厅受于户型影响,餐厅设计在客厅与门厅中间,巧妙的利用了这一空间,且面积符合标准,餐桌边定制装饰一体鞋柜,功能两用。

美好奉玺臺-108-现代轻奢风格-卧室(2).jpg 美好奉玺臺-108-现代轻奢风格-卧室.jpg

美好奉玺台108平三室两厅现代轻奢风格林凤装饰的主卧飘窗保留,并设计了衣帽间,业主需要衣帽间,所以在主卧设计了一个小型衣帽间,即使这样主卧同样能放下一个一米八的双人床。

美好奉玺臺-108-现代轻奢风格-卫生间.jpg

美好奉玺台108平三室两厅现代轻奢风格林凤装饰的卫生间没有改动,手盆马桶淋浴正常设计摆放,洗衣机放置在厨房。

美好奉玺臺-108-现代轻奢风格-厨房.jpg

美好奉玺台108平三室两厅现代轻奢风格林凤装饰的厨房呈一字型排列,空间满足基本厨房需求。且冰箱设计在橱柜对侧,互不影响,既美观又方便。

美好奉玺臺-108-现代轻奢风格-阳台.jpg

美好奉玺台108平三室两厅现代轻奢风格林凤装饰的阳台

美好奉玺臺-108-现代轻奢风格-门厅.jpg

美好奉玺台108平三室两厅现代轻奢风格林凤装饰的玄关

美好奉玺臺-108-现代轻奢风格-平面布置图.jpg

案例设计师

林凤设计师

设计师:林凤设计师

从业时间:13年

设计理念:无论含蓄还是奢华,能贴合主人味道,传达主人性格的房子才是我所追求的设计

预约设计师

算算你家装修多少钱

报名即享丰厚赠品,享半价装修

免费报价
咨询热线:400-656-9909
20190221103704574636.jpg

精品设计案例

20180612134930523248.jpg 服务号二维码.jpg