立即预约 立即预约
免费定制整装家居

免费定制整装家居

一站置家 全程无忧 一省到底
hide.png

当前位置: 首页 > 装修案例效果图 > 绿城全运村玉兰花园

绿城全运村玉兰花园 118平 现代简约风格效果图

收藏
案例风格 现代简约 案例户型 三居 案例面积 118平米
楼盘名称 绿城全运村玉兰花园 设计师 林凤设计师 案例类型 改善性住宅

设计理念:本案是一套二手房改造,业主夫妻二人都是上班族,有一个可爱的女儿。重点改造是空间的合理布局,整合更多的收纳空间。色调以黑白灰为主,局部点缀跳色,使空间更加灵动,增添一份趣味性。

客厅
第1张
第2张
卧室
第1张
第2张
第3张
卫生间
第1张
第2张
厨房
第1张
儿童房
第1张
第2张
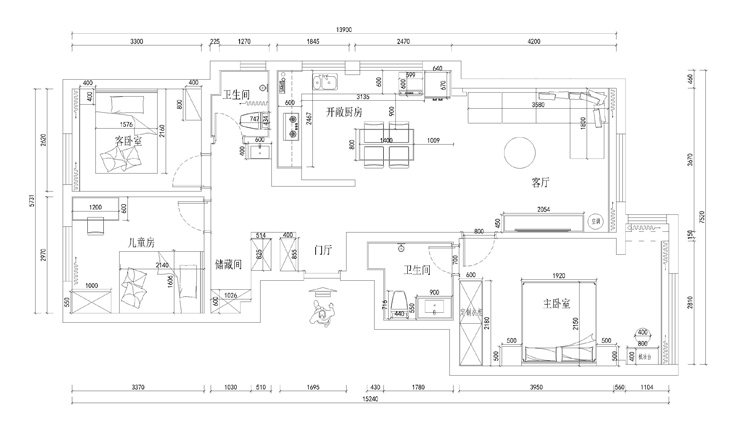
户型图
第1张
  • 案例详情

绿城玉兰花园-118-现代风格-客厅.jpg 绿城玉兰花园-118-现代风格-首图.jpg

绿城全运村玉兰花园118平三室两厅现代风格林凤装饰的客厅是一家人休闲交流的主要场所,硬包背景墙维空间增添了温馨奢华的氛围,低饱和的蓝灰色作为跳色,贯穿于窗帘,抱枕,茶几和装饰画,碰撞出优雅的绅士风度。

绿城玉兰花园-118-现代风格-客卧室.jpg 绿城玉兰花园-118-现代风格-主卧2.jpg 绿城玉兰花园-118-现代风格-主卧室.jpg

绿城全运村玉兰花园118平三室两厅现代风格林凤装饰的主卧室空间比较大,淡绿色的背景墙,调起了整个空间的视觉感。定制衣柜与床的搭配尤为重要,梳妆台的设置提升了女主人的生活质量。

绿城玉兰花园-118-现代风格-卫生间.jpg 绿城玉兰花园-118-现代风格-客卫生间.jpg

绿城全运村玉兰花园118平三室两厅现代风格林凤装饰的主卫坐便采用挂厕的方式,更容易打理,挂厕上方设置了收纳柜,增加了更多的收纳空间。

绿城玉兰花园-118-现代风格-厨房.jpg

绿城全运村玉兰花园118平三室两厅现代风格林凤装饰的开敞厨房,规划出环形动线,视觉更加通透,超长L形台面,操作更加方便。涵盖了洗衣机,释放了卫生间的空间。餐厅位于开敞厨房的中心,这块的拆改是本案设计的核心思维,拆除了无用的墙体,整个空间变得更加通透。餐厅与客厅的想通,增加了家人之间的互动。

绿城玉兰花园-118-现代风格-女儿房.jpg 绿城玉兰花园-118-现代风格-女儿房2.jpg

绿城全运村玉兰花园118平三室两厅现代风格林凤装饰的女儿房

绿城玉兰花园-118-现代风格-平面图.jpg

户型图

案例设计师

林凤设计师

设计师:林凤设计师

从业时间:8年

设计理念:一切随心,用心去感悟空间

预约设计师

算算你家装修多少钱

报名即享丰厚赠品,享半价装修

免费报价
咨询热线:400-656-9909
20190221103704574636.jpg

精品设计案例

20180612134930523248.jpg 服务号二维码.jpg