立即预约 立即预约
免费定制整装家居

免费定制整装家居

一站置家 全程无忧 一省到底
hide.png

当前位置: 首页 > 装修案例效果图 > 世茂五里河

世茂五里河 160平 现代简约风格效果图

收藏
案例风格 现代简约 案例户型 三居 案例面积 160平米
楼盘名称 世茂五里河 设计师 林凤设计师 案例类型 改善性住宅

设计理念:本案采用黑白灰以及跳色的设计手法.就像一个外表静默淡然,内里热情跳跃的人.开放式的布局,阳光从窗户洒入,遍布室内每一个角落.

客厅
第1张
餐厅
第1张
第2张
卧室
第1张
第2张
第3张
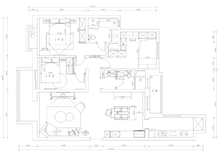
户型图
第1张
  • 案例详情

世茂五里河-160平-现代风格-客厅.jpg

世茂五里河160平三室两厅现代风格林凤装饰的推开门,首先映入眼帘的是凹凸的木色护墙板,长条深灰色的电视柜,灰色的壁布三者结合,构成电视背景的主要视觉表现。

世茂五里河-160平-现代风格-餐厅.jpg 世茂五里河-160平-现代风格-餐厅-首图.jpg

世茂五里河160平三室两厅现代风格林凤装饰的餐厅橘色的餐椅灰色的地砖,米灰色的多功能储物柜和白色的大理石餐台交相呼应,通过色彩的变化让空间富有层次感。

世茂五里河-160平-现代风格-北卧.jpg 世茂五里河-160平-现代风格-南卧.jpg 世茂五里河-160平-现代风格-主卧.jpg

【主卧室说明】主卧室的设计就一个字“静”.繁忙的都市生活,紧张的工作再回家后能有一个恬静的休息港湾,看书学习品味人生。【榻榻米卧室说明】打破千篇一律的榻榻米的固化印象,地台形式的北卧传递更自由的生活状态及收藏功能;衣柜与书柜结合,下位的长柜门拉手更能增加时尚感。

世茂五里河-160平-现代风格-平面图.jpg

户型图

案例设计师

林凤设计师

设计师:林凤设计师

从业时间:0年

设计理念:

预约设计师

算算你家装修多少钱

报名即享丰厚赠品,享半价装修

免费报价
咨询热线:400-656-9909
20190221103704574636.jpg

精品设计案例

20180612134930523248.jpg 服务号二维码.jpg