立即预约 立即预约
免费定制整装家居

免费定制整装家居

一站置家 全程无忧 一省到底
hide.png

当前位置: 首页 > 装修案例效果图 > 龙湖西府原著

龙湖西府原著 245平 新中式风格效果图

收藏
案例风格 新中式 案例户型 三居 案例面积 245平米
楼盘名称 龙湖西府原著 设计师 林凤设计师 案例类型 改善性住宅

设计理念:本案的风格是新中式风格,新中式风格的装修元素大多取自于传统中式风格,简洁的线条勾画出空间层次感,再配上具有古典气质的家具及现代风格的简洁,极大的满足了现代人追求的时尚感和实用的原则。将传统的元素赋予现代的设计中,让人既体会到现代设计的科技性,又体会到传统的中国韵味。

客厅
第1张
第2张
餐厅
第1张
卧室
第1张
第2张
第3张
卫生间
第1张
厨房
第1张
书房
第1张
儿童房
第1张
户型图
第1张
第2张
  • 案例详情

s8-钱昱皓-龙湖西府原著-245平-新中式风格-客厅.jpg s8-钱昱皓-龙湖西府原著-245平-新中式风格-客厅2.jpg

龙湖西府原著245平三室两厅新中式风格林凤装饰的客厅的空间色调以浅灰色为主,沙发背景墙运用几条金属条整体的质感提升。墙面挂着一副大气的墙画,增添色彩感。茶几运用两个倒圆三角形字母造型,使用性能强,倒角更能保护孩子平时的刮碰。吊顶加了一条灯带,和筒灯电使得空间更加明亮。电视柜以实用性为主,旁边加了一个有造型的装饰品。

s8-钱昱皓-龙湖西府原著-245平-新中式风格-餐厅.jpg

龙湖西府原著245平三室两厅新中式风格林凤装饰的餐厅区餐桌采用了大理石台面加金属包边整理高贵大气,六把黑胡桃木的椅子和整体家具颜色相呼应。餐厅地面采用波导线的设计是餐厅和客厅的区域明显划分开,

s8-钱昱皓-龙湖西府原著-245平-新中式风格-次卧.jpg s8-钱昱皓-龙湖西府原著-245平-新中式风格-次卧2.jpg s8-钱昱皓-龙湖西府原著-245平-新中式风格-主卧.jpg

龙湖西府原著245平三室两厅新中式风格林凤装饰的卧室

s8-钱昱皓-龙湖西府原著-245平-新中式风格-卫生间.jpg

龙湖西府原著245平三室两厅新中式风格林凤装饰的卫生间采用灰色花纹瓷砖,手盆做定制巧妙地放入了洗衣机,节约空间,整理美观简约。

s8-钱昱皓-龙湖西府原著-245平-新中式风格-厨房.jpg

龙湖西府原著245平三室两厅新中式风格林凤装饰的厨房采用的是u形灶台。厨房的功能性和实用性加强。黑胡桃木的柜体强调了本次的装修风格。显得整体沉稳大气。墙地面选用的是灰色纹理的瓷砖,与整理相呼应。

s8-钱昱皓-龙湖西府原著-245平-新中式风格-书房.jpg

龙湖西府原著245平三室两厅新中式风格林凤装饰的书房 做了一墙定制书柜加一组衣柜,储物空间大大增加。 柜体颜色与客厅的电视柜、餐厅的餐桌台面相呼应,板面使用白色板材,使得书房空间简约明亮。考虑小主人练习钢琴。把钢琴放置到书房中,学习培养兴趣两不误 。

s8-钱昱皓-龙湖西府原著-245平-新中式风格-儿童房.jpg

龙湖西府原著245平三室两厅新中式风格林凤装饰的儿童房

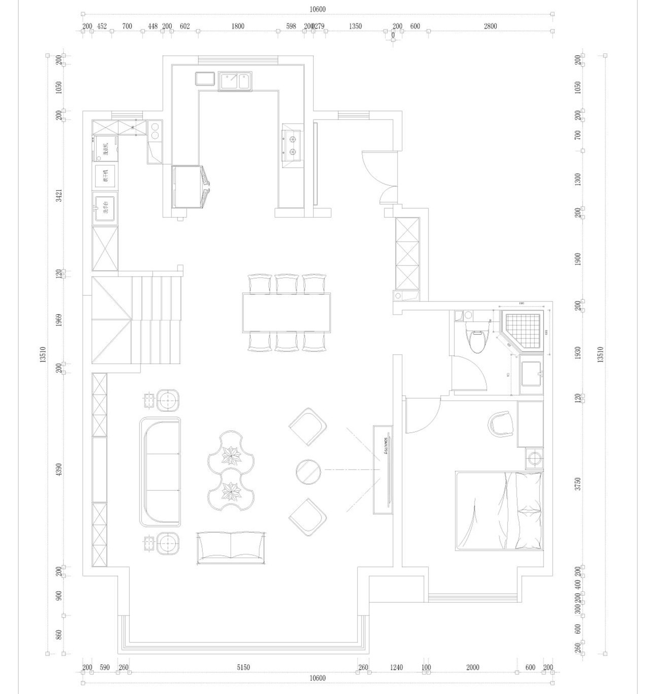
s8-钱昱皓-龙湖西府原著-245平-新中式风格-二层平面图.jpg s8-钱昱皓-龙湖西府原著-245平-新中式风格-平面图.jpg

户型图

案例设计师

林凤设计师

设计师:林凤设计师

从业时间:10年

设计理念:知行合一

预约设计师

算算你家装修多少钱

报名即享丰厚赠品,享半价装修

免费报价
咨询热线:400-656-9909
20190221103704574636.jpg

精品设计案例

20180612134930523248.jpg 服务号二维码.jpg