立即预约 立即预约
免费定制整装家居

免费定制整装家居

一站置家 全程无忧 一省到底
hide.png

当前位置: 首页 > 装修案例效果图 > 越秀星汇云锦

越秀星汇云锦 168平 新中式风格效果图

收藏
案例风格 新中式 案例户型 三居 案例面积 168平米
楼盘名称 越秀星汇云锦 设计师 林凤设计师 案例类型 改善性住宅

设计理念:本案以稳重的中式原木色家具搭配现代层次分明的现代吊棚,地面以柔光的棕灰色地砖搭配边线突出空间层级,几副中式装饰画结合素色壁纸搭配‘营造出一个悠闲舒适、清雅的中式风格。

客厅
第1张
第2张
第3张
餐厅
第1张
第2张
第3张
卧室
第1张
卫生间
第1张
厨房
第1张
过廊
第1张
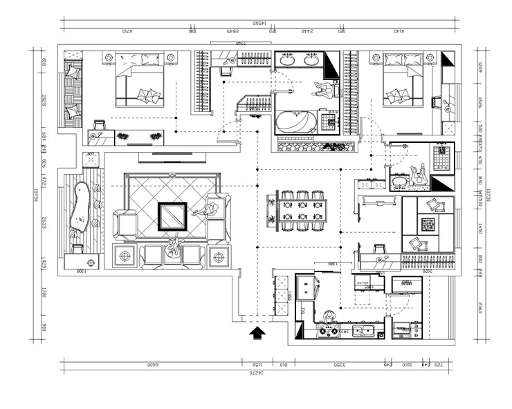
户型图
第1张
  • 案例详情

越秀星汇云锦-168㎡-客厅(1).jpg 越秀星汇云锦-168㎡-客厅(2).jpg 越秀星汇云锦-168㎡-首图.jpg

越秀星汇云锦168平三室两厅新中式风格林凤装饰的客厅沙发背景墙采用壁布似山水画的设计外加大理石背景墙,从而体现出一种低调的新中式,阳台部分做成茶室,下面是榻榻米的暗格,同时增添了收纳空间,榻榻米上方做成展示柜,凸显出新中式的气息。

越秀星汇云锦-168㎡-餐厅(2).jpg 越秀星汇云锦-168㎡-餐厅(3).jpg 越秀星汇云锦-168㎡-餐厅.jpg

越秀星汇云锦168平三室两厅新中式风格林凤装饰的餐厅餐桌为了搭配整体的色系,采用深色纯实木的餐桌,侧面放置壁画,餐厅和客厅区域用小屏风相隔开,使整体看起来更简洁。

越秀星汇云锦-168㎡-卧室.jpg

越秀星汇云锦168平三室两厅新中式风格林凤装饰的主卧室做成套房的设计,床头搭配全包背景墙,床头上面放置中式点缀作为卧室空间整体文化的设计亮点。

越秀星汇云锦-168㎡-卫生间.jpg

越秀星汇云锦168平三室两厅新中式风格林凤装饰的卫生间主卫采用双手盆,方便二人使用,大纹理的理石背景墙,让整个卫生间看起来更宽敞,高档大气。

越秀星汇云锦-168㎡-厨房.jpg

越秀星汇云锦168平三室两厅新中式风格林凤装饰的厨房采用哑光香槟金色的橱柜面板,搭配点缀白色台板,作用冰箱电器一体柜,整体抬高了厨房的档次。

越秀星汇云锦-168㎡-过廊.jpg

越秀星汇云锦168平三室两厅新中式风格林凤装饰的过廊

越秀星汇云锦-168㎡-平面图.jpg

户型图

案例设计师

林凤设计师

设计师:林凤设计师

从业时间:10年

设计理念:用心观察生活,感悟人生真谛,让设计与生活互动。

预约设计师

算算你家装修多少钱

报名即享丰厚赠品,享半价装修

免费报价
咨询热线:400-656-9909
20190221103704574636.jpg

精品设计案例

20180612134930523248.jpg 服务号二维码.jpg